199,000,000 Ft
522,000 €
- 103m²
- 4 Rooms
- 1st floor
Panorámás lakás a 3. kerület egyik legkedveltebb részén
Modern, új építésű otthon, ahol a kényelem és a minőség találkozik!
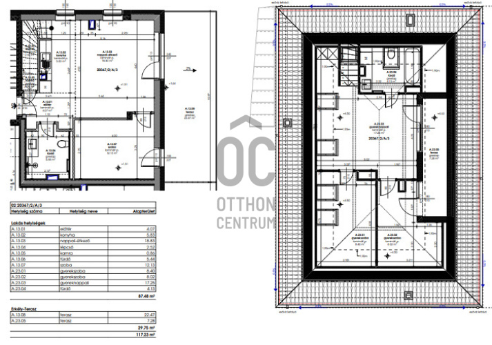
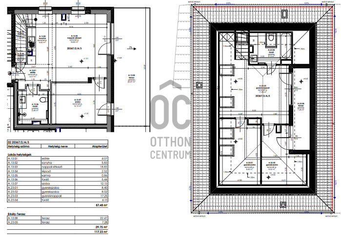
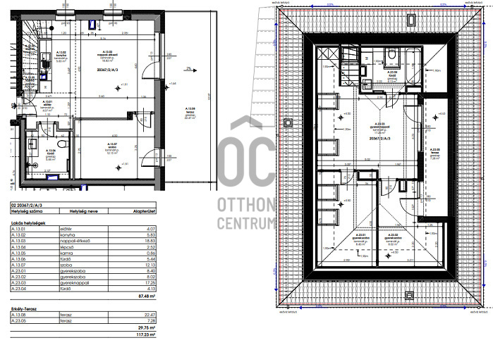
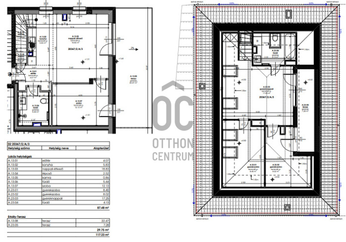
A 3. kerület Jablonka úton, egy 2024-ben épült, mindössze 2x4 lakásos, exkluzív társasházban kínálunk eladásra egy 4 szobás, 2 fürdőszobás, magas műszaki tartalommal megépített, világos, tágas belső kétszintes lakást. Az ingatlan egy 87,5 nm-es belső alapterületű lakótérrel, valamint egy 22,5 nm-es panorámás terasszal és egy 7,5 nm-es erkéllyel rendelkezik.
A lakás tartozéka egy modern, teljesen felszerelt konyhabútor, amely már benne foglaltatik az árban.
Kiemelt műszaki tartalom:
* Hőszivattyús **mennyezeti és padlófűtés/hűtés** rendszer – környezetbarát, energiatakarékos és rendkívül kényelmes
* Kiváló szigetelés, alacsony rezsiköltségek
* Modern burkolatok, igényes kivitelezés
* Teremgarázs hely (további– 15 millió Ft)
Miért különleges ez a lakás?
A hőszivattyús rendszer a legkorszerűbb fűtési-hűtési megoldások egyike: környezetbarát módon hasznosítja a környezet energiáját, így jelentős energiamegtakarítást eredményez. A mennyezeti és padló hőleadásnak köszönhetően a lakásban egyenletes hőmérséklet uralkodik, nincs szükség radiátorokra, ami esztétikailag is sokkal letisztultabb enteriőrt eredményez.
Lokáció – Életminőség kompromisszumok nélkül
A Jablonka út a 3. kerület egyik legkeresettebb része: csendes, zöldövezeti környezet, mégis közel a városi infrastruktúrához. A közelben óvodák, iskolák, bevásárlási lehetőségek, túraútvonalak és sportolási lehetőségek is megtalálhatók. A közlekedés kiváló – autóval és tömegközlekedéssel is gyorsan elérhető a belváros.
Kinek ajánljuk?
*Családoknak, akik értékelik a nyugodt, zöld környezetet, mégis szeretnének a városhoz közel maradni.
*Befektetőknek, akik keresik a modern , jól kiadható ingatlanokat.
*Pároknak vagy idősebbeknek, akik modern, energiatakarékos otthonra vágynak.
Ár-érték arányban kivételes lehetőség**
Ez a lakás nem csupán egy új otthon, hanem egy értékálló befektetés is. A kiváló lokáció, az alacsony fenntartási költségek és a prémium kivitelezés miatt hosszú távon is megtérülő választás. Az ár (199,9millió Ft + 15 millió garázs) a környék és a minőség figyelembevételével kiemelkedően versenyképes a hasonló kategóriájú újépítésű ingatlanok között.
Ne hagyja ki ezt a különleges lehetőséget!
További információért és megtekintésért keressen bizalommal!
Díjmentes, bankfüggetlen hiteltanácsadással támogatjuk vevő ügyfeleinket a számukra legelőnyösebb finanszírozási döntések meghozatalában. Igény szerint megbízható ügyvédi háttérrel, energetikai tanúsítvánnyal, villamos biztonsági felülvizsgálattal és home staging szolgáltatással is támogatjuk Önt abban, hogy az adásvétel folyamata gördülékeny, valamint a lehető legelőnyösebb legyen az Ön számára.
A 3. kerület Jablonka úton, egy 2024-ben épült, mindössze 2x4 lakásos, exkluzív társasházban kínálunk eladásra egy 4 szobás, 2 fürdőszobás, magas műszaki tartalommal megépített, világos, tágas belső kétszintes lakást. Az ingatlan egy 87,5 nm-es belső alapterületű lakótérrel, valamint egy 22,5 nm-es panorámás terasszal és egy 7,5 nm-es erkéllyel rendelkezik.
A lakás tartozéka egy modern, teljesen felszerelt konyhabútor, amely már benne foglaltatik az árban.
Kiemelt műszaki tartalom:
* Hőszivattyús **mennyezeti és padlófűtés/hűtés** rendszer – környezetbarát, energiatakarékos és rendkívül kényelmes
* Kiváló szigetelés, alacsony rezsiköltségek
* Modern burkolatok, igényes kivitelezés
* Teremgarázs hely (további– 15 millió Ft)
Miért különleges ez a lakás?
A hőszivattyús rendszer a legkorszerűbb fűtési-hűtési megoldások egyike: környezetbarát módon hasznosítja a környezet energiáját, így jelentős energiamegtakarítást eredményez. A mennyezeti és padló hőleadásnak köszönhetően a lakásban egyenletes hőmérséklet uralkodik, nincs szükség radiátorokra, ami esztétikailag is sokkal letisztultabb enteriőrt eredményez.
Lokáció – Életminőség kompromisszumok nélkül
A Jablonka út a 3. kerület egyik legkeresettebb része: csendes, zöldövezeti környezet, mégis közel a városi infrastruktúrához. A közelben óvodák, iskolák, bevásárlási lehetőségek, túraútvonalak és sportolási lehetőségek is megtalálhatók. A közlekedés kiváló – autóval és tömegközlekedéssel is gyorsan elérhető a belváros.
Kinek ajánljuk?
*Családoknak, akik értékelik a nyugodt, zöld környezetet, mégis szeretnének a városhoz közel maradni.
*Befektetőknek, akik keresik a modern , jól kiadható ingatlanokat.
*Pároknak vagy idősebbeknek, akik modern, energiatakarékos otthonra vágynak.
Ár-érték arányban kivételes lehetőség**
Ez a lakás nem csupán egy új otthon, hanem egy értékálló befektetés is. A kiváló lokáció, az alacsony fenntartási költségek és a prémium kivitelezés miatt hosszú távon is megtérülő választás. Az ár (199,9millió Ft + 15 millió garázs) a környék és a minőség figyelembevételével kiemelkedően versenyképes a hasonló kategóriájú újépítésű ingatlanok között.
Ne hagyja ki ezt a különleges lehetőséget!
További információért és megtekintésért keressen bizalommal!
Díjmentes, bankfüggetlen hiteltanácsadással támogatjuk vevő ügyfeleinket a számukra legelőnyösebb finanszírozási döntések meghozatalában. Igény szerint megbízható ügyvédi háttérrel, energetikai tanúsítvánnyal, villamos biztonsági felülvizsgálattal és home staging szolgáltatással is támogatjuk Önt abban, hogy az adásvétel folyamata gördülékeny, valamint a lehető legelőnyösebb legyen az Ön számára.
Registration Number
H511013
Property Details
Sales
for sale
Legal Status
used
Character
apartment
Construction Method
brick
Net Size
103 m²
Gross Size
103 m²
Size of Terrace / Balcony
29.7 m²
Heating
heat pump
Ceiling Height
275 cm
Number of Levels Within the Property
2
Orientation
South-East
View
city view
Staircase Type
enclosed staircase
Condition
Excellent
Condition of Facade
Excellent
Condition of Staircase
Excellent
Neighborhood
quiet, good transport, green
Year of Construction
2024
Number of Bathrooms
2
Position
garden-facing
Garage
Separately purchasable
Water
Available
Electricity
Available
Sewer
Available
Rooms
open-plan kitchen and living room
25 m²
terrace
22.47 m²
bathroom-toilet
5.5 m²
room
12.13 m²
room
8.4 m²
room
8 m²
balcony
8 m²
living room
17.25 m²
bathroom-toilet
5 m²
Gerber Dorottya
Credit Expert