104,000,000 Ft
275,000 €
- 40m²
- 1 Rooms
- 7th floor
Szuper kislakás a belvárosban
Képzeld el, hogy valaki jobbat tervezett mint amit kitalálnál. Minden új, minden szép és minden készen van. Csak arra vár, hogy birtokba vedd. Tévedsz ha azt gondolod, hogy eladásra készült, akkor nem költöttek volna rá ennyit. Da van olyan, hogy az élet másként alakul,és ez teremti a különleges lehetőségeket.
Lehet hogy Te leszel az, akinek 40 m2-en is van elegendő tárolóhelye? Akinek egyedi tervek alapján készült bútorai lesznek? Aki érzi hogy az egész lakását körülöleli az ergonómia,a színek harmóniája és a kényelem. Ahová jó megérkezni , de ha elmész otthonról, akkor is minden közel van. A Dunapart, a bevásárlás, a közlekedés, vagy a szórakozás.
És mindezt egy liftes, rendezett ház 7. emeletén találod, ahol a magasság csendet, fényt és egy kis plusz panorámát is jelent. A lakás így nemcsak komfortos, hanem kimondottan kellemes hangulatú .
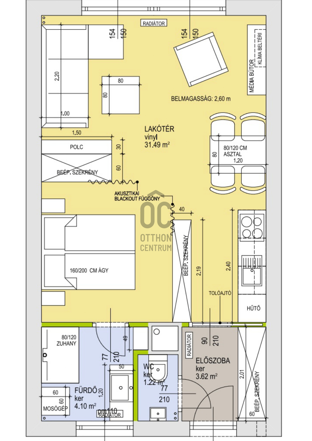
Az előszobába lépve hatalmas tükrös gardrob fogad, ami nemcsak befogad minden kabátot és cipőt, hanem tágas térérzetet ad mindjárt a megérkezéskor. Balra a mosdó aminek hangulatos design csempéje üde színeket ad a helyiségnek. Szemben tovább haladva a gépesített konyhába érkezünk , amely az egész lakás egyedileg gyártott bútoraihoz hasonlóan törtfehér és finom zöld színekben lett kialakítva. A lakás tulajdonképpen egyterű, de a belsőépítész által tervezett bútorok körbehatárolják a konyhát, illetve egy hálószobát, ahol a hatalmas, 180 cm széles kényelmes ágy kapott helyet. A hálóból nyílik a zuhanyzós és ablakos fürdőszoba , ahol mosó-szárítógép is helyet kapott, melynek segítségével nem kell a lakásban ruhaszárítót kerülgetni. Aki már lakott kis lakásban, tudja milyen fontos ez.
A nappaliban kényelmes kanapé, led világításos könyvespolc, melynek hátsó oldala a háló gardróbja , és kényelmes méretű étkezőasztal kapott helyet.
A lakás klimatizált.A közös költség mindössze 28.000 Ft, amely magában foglalja a fűtést, valamint a hideg- és melegvíz-fogyasztást is.
A vételár a teljes berendezést , és a háztartási gépeket is tartalmazza.
Ha a belvárosba költöznél, vagy csak kell egy hely a belvárosban is, amivel nincs gond, ami mindenben a kényelmedre törekszik és ahová tényleg csak a bőröndödet kell hozni,hívj és nézzük meg együtt!
Lehet hogy Te leszel az, akinek 40 m2-en is van elegendő tárolóhelye? Akinek egyedi tervek alapján készült bútorai lesznek? Aki érzi hogy az egész lakását körülöleli az ergonómia,a színek harmóniája és a kényelem. Ahová jó megérkezni , de ha elmész otthonról, akkor is minden közel van. A Dunapart, a bevásárlás, a közlekedés, vagy a szórakozás.
És mindezt egy liftes, rendezett ház 7. emeletén találod, ahol a magasság csendet, fényt és egy kis plusz panorámát is jelent. A lakás így nemcsak komfortos, hanem kimondottan kellemes hangulatú .
Az előszobába lépve hatalmas tükrös gardrob fogad, ami nemcsak befogad minden kabátot és cipőt, hanem tágas térérzetet ad mindjárt a megérkezéskor. Balra a mosdó aminek hangulatos design csempéje üde színeket ad a helyiségnek. Szemben tovább haladva a gépesített konyhába érkezünk , amely az egész lakás egyedileg gyártott bútoraihoz hasonlóan törtfehér és finom zöld színekben lett kialakítva. A lakás tulajdonképpen egyterű, de a belsőépítész által tervezett bútorok körbehatárolják a konyhát, illetve egy hálószobát, ahol a hatalmas, 180 cm széles kényelmes ágy kapott helyet. A hálóból nyílik a zuhanyzós és ablakos fürdőszoba , ahol mosó-szárítógép is helyet kapott, melynek segítségével nem kell a lakásban ruhaszárítót kerülgetni. Aki már lakott kis lakásban, tudja milyen fontos ez.
A nappaliban kényelmes kanapé, led világításos könyvespolc, melynek hátsó oldala a háló gardróbja , és kényelmes méretű étkezőasztal kapott helyet.
A lakás klimatizált.A közös költség mindössze 28.000 Ft, amely magában foglalja a fűtést, valamint a hideg- és melegvíz-fogyasztást is.
A vételár a teljes berendezést , és a háztartási gépeket is tartalmazza.
Ha a belvárosba költöznél, vagy csak kell egy hely a belvárosban is, amivel nincs gond, ami mindenben a kényelmedre törekszik és ahová tényleg csak a bőröndödet kell hozni,hívj és nézzük meg együtt!
Registration Number
H510986
Property Details
Sales
for sale
Legal Status
used
Character
apartment
Construction Method
brick
Net Size
40 m²
Gross Size
40 m²
Heating
unmetered central heating
Ceiling Height
260 cm
Number of Levels Within the Property
1
Orientation
South-West
Staircase Type
circular corridor
Condition
Excellent
Condition of Facade
Good
Condition of Staircase
Good
Neighborhood
central
Year of Construction
1980
Number of Bathrooms
1
Position
courtyard-facing
Common Costs
28000
Water
Available
Gas
Available
Electricity
Available
Sewer
Available
Rooms
room
31.49 m²
bathroom
4.1 m²
toilet
1.22 m²
entryway
2.62 m²
Ruczek János
Credit Expert