data_sheet.details.realestate.section.main.otthonstart_flag.label
For sale panel apartment,
H510809
Budapest XXI. kerület, Csillagtelep, Rakéta utca
62,900,000 Ft
165,000 €
- 62m²
- 3 Rooms
- 4th floor
Fedezze fel álmai otthonát Csillagtelepen – 3 szobás lakás várja Önt Budapesten!
Eladó Csepelen, Csillagtelep közkedvelt, zöldövezeti részén egy napfényes, 62 m²-es, erkélyes, 2+1 szobás, jó állapotú panellakás – alacsony rezsivel, rendezett házban!
A lakás egy négyemeletes, folyamatosan karbantartott társasház legfelső szintjén található, mindkét irányba zöldre néző, kellemes kilátással és kiváló benapozottsággal.
A keleti fekvésű konyha és két szoba, valamint a nyugati tájolású nappali miatt a lakás egész nap világos és élhető.
Főbb jellemzők:
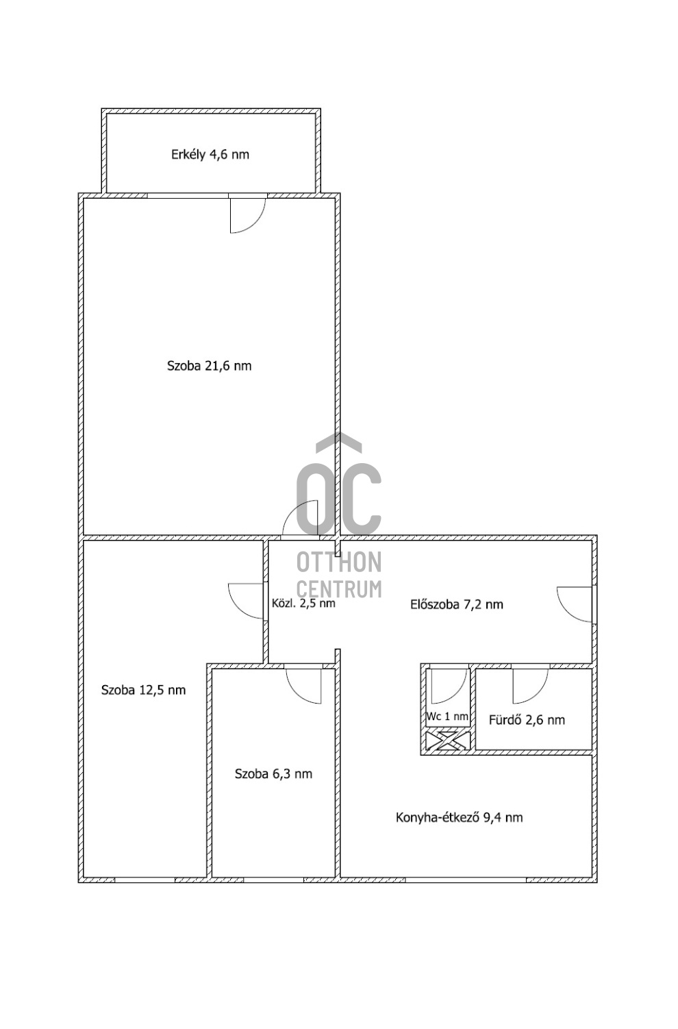
-62 m², jól kialakított alaprajz
-Erkélyes, 20 m² feletti nappali (nyugati tájolás, napellenző)
-12 m²-es hálószoba
-6,3 m²-es félszoba
-Ablakos konyha, beépített bútorokkal
-Felújított, zuhanyzós fürdő, külön WC
-Tágas előszoba nagy beépített szekrénnyel
-Fa nyílászárók, a keleti oldalon redőnnyel és szúnyoghálóval
-A nyugati oldalon szúnyogháló + az erkélyen napellenző
-Egy éves klíma a nappaliban
-Távfűtés
-Burkolatok: két szoba parkettás, egy szoba szőnyeges, a többi helyiség járólapos
-Több ponton záródó, biztonsági bejárati ajtó
-Nagy méretű saját tároló + közös tárolók
A társasház:
-Rendezett, rendszeresen karbantartott épület
-Frissen felújított lépcsőház (burkolat + festés)
-Stabil anyagi háttér, tartalékkal
-Nyugodt, biztonságos környezet sok zölddel
Költségek és parkolás:
-Közös költség: 12 000 Ft
-Parkolás ingyenes a ház előtt
Infrastruktúra:
-Kiváló közlekedés
-A közelben: több iskola, óvoda, üzletek, orvosi rendelő, gyógyszertár, játszóterek
-Családbarát, élhető környék
Tulajdoni viszonyok:
-1/1 tulajdon
-Tehermentes
A lakás egy négyemeletes, folyamatosan karbantartott társasház legfelső szintjén található, mindkét irányba zöldre néző, kellemes kilátással és kiváló benapozottsággal.
A keleti fekvésű konyha és két szoba, valamint a nyugati tájolású nappali miatt a lakás egész nap világos és élhető.
Főbb jellemzők:
-62 m², jól kialakított alaprajz
-Erkélyes, 20 m² feletti nappali (nyugati tájolás, napellenző)
-12 m²-es hálószoba
-6,3 m²-es félszoba
-Ablakos konyha, beépített bútorokkal
-Felújított, zuhanyzós fürdő, külön WC
-Tágas előszoba nagy beépített szekrénnyel
-Fa nyílászárók, a keleti oldalon redőnnyel és szúnyoghálóval
-A nyugati oldalon szúnyogháló + az erkélyen napellenző
-Egy éves klíma a nappaliban
-Távfűtés
-Burkolatok: két szoba parkettás, egy szoba szőnyeges, a többi helyiség járólapos
-Több ponton záródó, biztonsági bejárati ajtó
-Nagy méretű saját tároló + közös tárolók
A társasház:
-Rendezett, rendszeresen karbantartott épület
-Frissen felújított lépcsőház (burkolat + festés)
-Stabil anyagi háttér, tartalékkal
-Nyugodt, biztonságos környezet sok zölddel
Költségek és parkolás:
-Közös költség: 12 000 Ft
-Parkolás ingyenes a ház előtt
Infrastruktúra:
-Kiváló közlekedés
-A közelben: több iskola, óvoda, üzletek, orvosi rendelő, gyógyszertár, játszóterek
-Családbarát, élhető környék
Tulajdoni viszonyok:
-1/1 tulajdon
-Tehermentes
Registration Number
H510809
Property Details
Sales
for sale
Legal Status
used
Character
apartment
Construction Method
panel
Net Size
62 m²
Gross Size
65 m²
Size of Terrace / Balcony
4 m²
Heating
district heating
Ceiling Height
260 cm
Orientation
South-West
Staircase Type
enclosed staircase
Condition
Good
Condition of Facade
Good
Condition of Staircase
Good
Basement
Shared
Year of Construction
1987
Number of Bathrooms
1
Position
street-facing
Common Costs
12000
Water
Available
Electricity
Available
Sewer
Available
Rooms
living room
21.6 m²
kitchen
9.4 m²
bathroom
2.6 m²
toilet
1 m²
entryway
7.2 m²
room
6.3 m²
room
12.5 m²
balcony
4.6 m²
Helembai Dávid
Credit Expert