data_sheet.details.realestate.section.main.otthonstart_flag.label
For sale row house, H510684
Budapest XVIII. kerület, Belsőmajor

122,650,000 Ft

320,000 €

  • 115m²
  • 4 Rooms

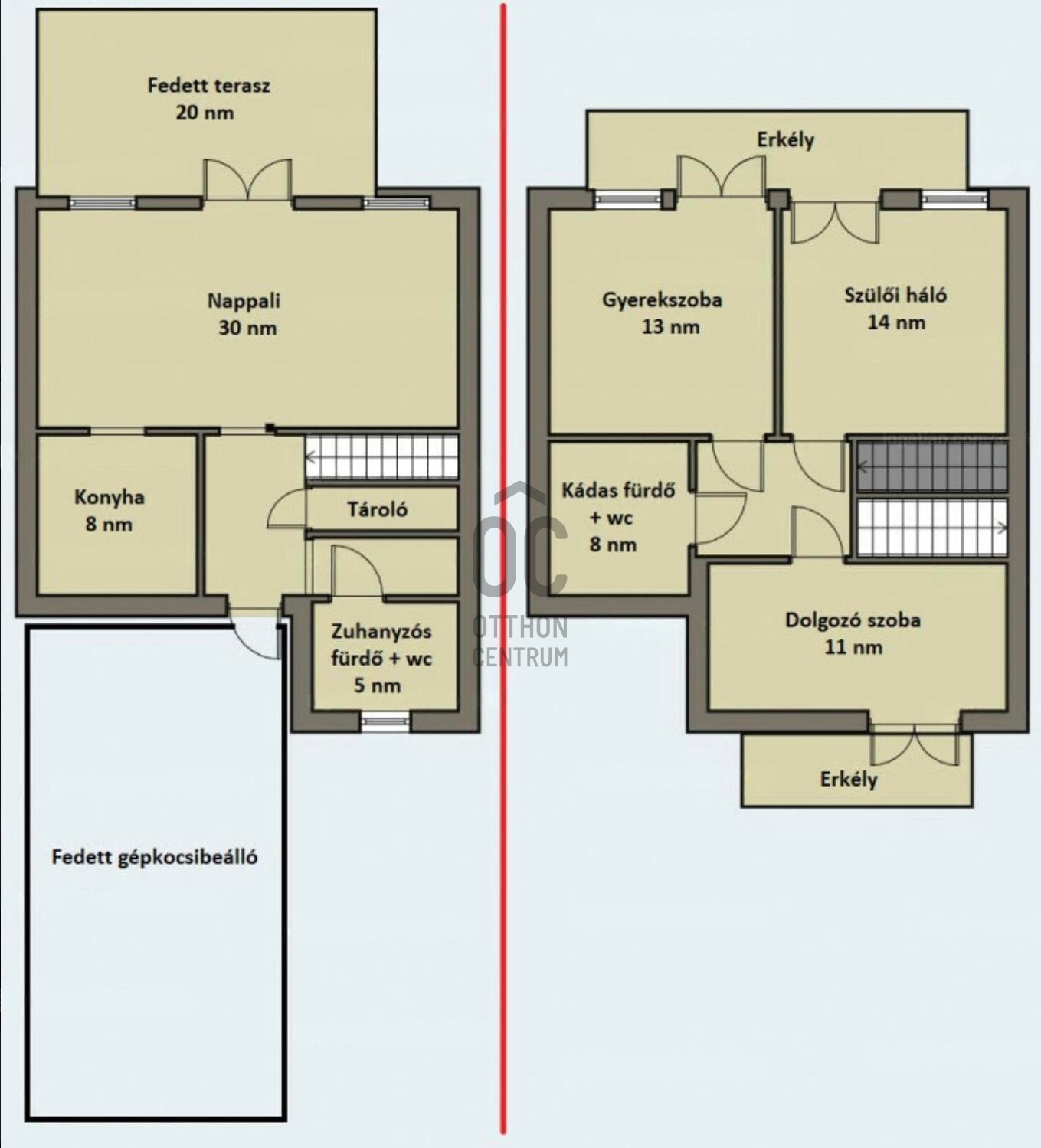
**For Sale: Townhouse in one of the most sought-after, quiet areas of District XVIII** I am offering for sale a well-maintained, double-comfort, 115 m² townhouse in a calm, traffic-free street of the Belsőmajor residential complex. The house can be occupied shortly and is available from a discerning owner. **What is worth knowing about the building?** - Classic townhouse design, connected to neighboring buildings, but with excellent sound insulation. - 30 cm brick + 5 cm dryvit insulation, compliant with 2009 building requirements. - Sealed combustion Saunier Duval gas boiler, as well as cooling-heating LG inverter air conditioning (down to -15 °C). - A 2 kW solar panel system that significantly reduces utility costs. - Motorized, remote-controlled blinds in several rooms. - Stable, timber roof structure; the attic is approximately 80% usable and boarded. **Utility Costs (12-month average)** - Gas: 7,800 HUF/month - Electricity: 5,040 HUF/month (annual balance) - Total utilities: approximately 12,000 HUF/month --- **Room Distribution** **Ground Floor** - Spacious, sunny 30 m² living room (southeast) - Separate kitchen - Shower bathroom + WC - Convenient storage under the stairs **Upper Floor** - 14 m² master bedroom (southeast) - 13 m² children's room (southeast) - 10 m² study (northwest) - Bathroom with bathtub, containing the boiler - Two separate balconies --- **Outdoor Spaces** - Approximately 50 m² front garden with a covered carport and bicycle storage - Approximately 120 m² private garden at the back, with a large wooden shed (workshop + storage) - Comfortable 20 m² covered terrace – perfect for relaxation --- **Infrastructure – Everything is within a 10–15 minute walk** Kindergartens, schools, medical care, and shopping options are all nearby: - Lidl, SPAR, smaller shops - Nurseries, kindergartens, primary schools - General practitioner and pediatric clinics - Local mini shopping center --- **Transportation** - Határ road: 20 minutes by bus - Boráros Square: 30 minutes - Western Railway Station: 35–40 minutes by train --- **The Area** A particularly quiet, green, family-friendly environment. The residential complex is well-maintained, with no through traffic; the playground is nearby but not disruptive. The community is active and cohesive, with frequent joint events.

Registration Number

H510684

Property Details

Sales
for sale
Legal Status
used
Character
house
Construction Method
brick
Net Size
115 m²
Gross Size
115 m²
Plot Size
220 m²
Size of Terrace / Balcony
20 m²
Garden Size
170 m²
Heating
Gas circulator
Ceiling Height
220 cm
Number of Levels Within the Property
2
Orientation
South-East
Condition
Good
Condition of Facade
Good
Year of Construction
2009
Number of Bathrooms
2
Condominium Garden
yes
Number of Covered Parking Spots
1
Water
Available
Gas
Available
Electricity
Available
Sewer
Available

Rooms

living room
30 m²
kitchen
8 m²
bathroom-toilet
5 m²
entryway
2 m²
storage
1.5 m²
corridor
2 m²
room
14 m²
room
13 m²
room
11 m²
bathroom-toilet
8 m²
Torday Tibor
Torday Tibor

Credit Expert

From Our Office Listings - XVII. kerület - Cinkotai út

eladó családi ház

Index image
13

eladó ikerház

Index image
Elérhető Otthon Start hitellel
12

eladó családi ház

Index image
Elérhető Otthon Start hitellel
26

eladó családi ház

Index image
Elérhető Otthon Start hitellel
13

eladó lakás

Index image
14