94,800,000 Ft
247,000 €
- 59m²
- 3 Rooms
- ground floor
Fedezze fel álmai otthonát: nyugalom és biztonság – 3 szobás lakás Rómaifürdőn várja Önt!
Kiváló vételi lehetőség: két hálószobás, amerikai konyhás lakás kiváló lokációban, zöld környezetben – Római-part közelében
+ garázs + nagy tároló + kerti beálló + biztonságos belső udvar
Fontos információ: Olyan vevők jelentkezését várjuk, akik nyitottak arra, hogy az adásvételt követően a lakást 1 évre visszabérlésre biztosítsák az eladók számára.
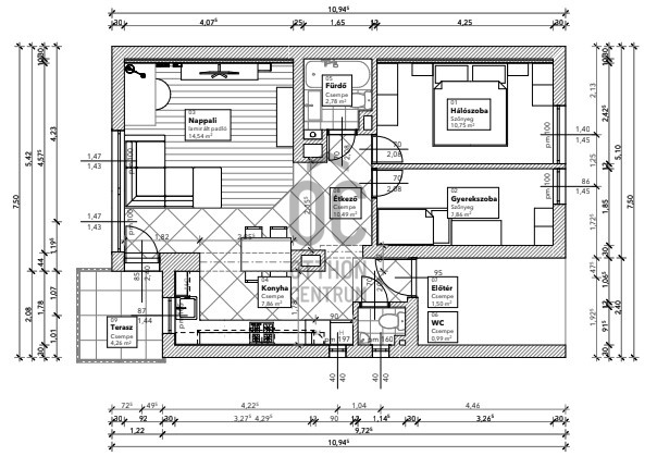
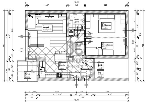
A Rómaifürdő kedvelt, zöldövezeti részén megvételre kínálunk egy jó állapotú, két hálószobás, amerikai konyhás-étkezős-nappalis lakást, amelyet rendezett, mindössze 6 lakásos társasház, valamint biztonságos, zárt, gondozott belső kert vesz körül. A kert ideális pihenésre és családi időtöltésre; közösségi használatú zöldfelület, játszóelemek helyezhetők ki, a lakóközösség pedig összetartó és aktívan gondozza a környezetét.
A lakás jól átgondolt elrendezésű:
- két külön nyíló hálószoba
- amerikai konyhás nappali-étkező
- két WC (az egyik a kádas fürdőben)
- 4 m²-es hangulatos terasz, a belső kertre néző kilátással
A lakás műszaki felszereltsége korszerű: légkondicionáló a nappali-étkező-konyha térben, modern gázkazán, részben padlófűtés, szúnyoghálóval és redőnnyel ellátott nyílászárók, valamint jó állapotú beépített bútorok.
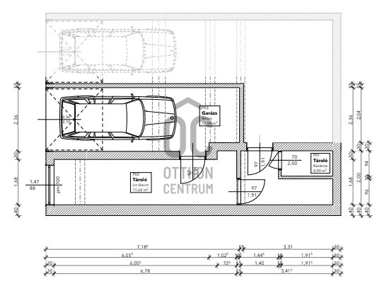
Kiemelkedő tárolási lehetőségek:
A lakáshoz az ingatlan árán felül kötelezően megvásárolandó:
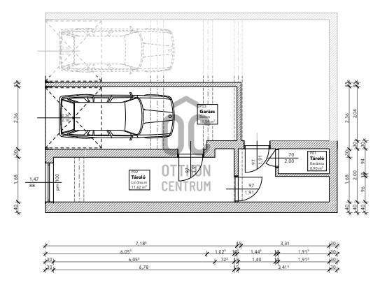
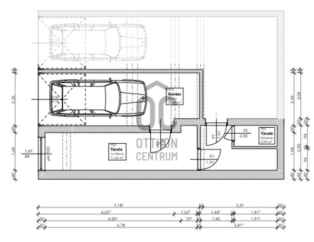
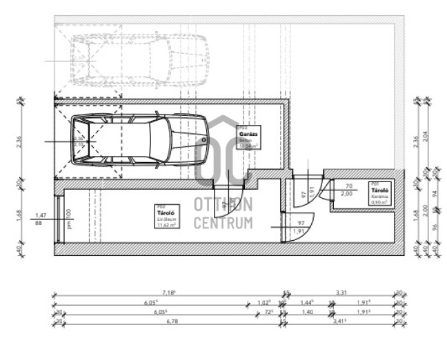
- 16 m²-es garázs
- 11 m²-es külön tároló
melyek együtt kiemelkedően jó tárolási kapacitást biztosítanak. ( Együtt: 15 000 000.-Ft.)
A terasz alatti murvás kerti beálló használati joga a vásárlóhoz kerül.
A lakás földszinti elhelyezkedése rendkívül kényelmessé teszi a mindennapokat idősek és kisgyermekes családok számára, hiszen a kocsibeállótól pár lépéssel megközelíthető. A teraszról és a nappaliból rálátás nyílik a belső udvarra, így a gyerekek biztonságban szem előtt tarthatók játék közben.
Lokáció – a Római-part minden előnyével:
A környék zöld, hangulatos, kifejezetten élhető.
- Duna-part: 15 perc séta
- Rómaifürdő HÉV-megálló: 5 perc
- Rómaifürdői Strandfürdő: 5 perc
- Bevásárlási lehetőségek, óvoda, iskola, szolgáltatások rövid sétatávolságon belül
A környék nyugodt, mégis jól megközelíthető – sokak számára olyan, mintha egy üdülőövezetben élnének.
Hívjon most, tekintse meg a lehető leghamarabb -ne szalassza el a lehetőséget!
+ garázs + nagy tároló + kerti beálló + biztonságos belső udvar
Fontos információ: Olyan vevők jelentkezését várjuk, akik nyitottak arra, hogy az adásvételt követően a lakást 1 évre visszabérlésre biztosítsák az eladók számára.
A Rómaifürdő kedvelt, zöldövezeti részén megvételre kínálunk egy jó állapotú, két hálószobás, amerikai konyhás-étkezős-nappalis lakást, amelyet rendezett, mindössze 6 lakásos társasház, valamint biztonságos, zárt, gondozott belső kert vesz körül. A kert ideális pihenésre és családi időtöltésre; közösségi használatú zöldfelület, játszóelemek helyezhetők ki, a lakóközösség pedig összetartó és aktívan gondozza a környezetét.
A lakás jól átgondolt elrendezésű:
- két külön nyíló hálószoba
- amerikai konyhás nappali-étkező
- két WC (az egyik a kádas fürdőben)
- 4 m²-es hangulatos terasz, a belső kertre néző kilátással
A lakás műszaki felszereltsége korszerű: légkondicionáló a nappali-étkező-konyha térben, modern gázkazán, részben padlófűtés, szúnyoghálóval és redőnnyel ellátott nyílászárók, valamint jó állapotú beépített bútorok.
Kiemelkedő tárolási lehetőségek:
A lakáshoz az ingatlan árán felül kötelezően megvásárolandó:
- 16 m²-es garázs
- 11 m²-es külön tároló
melyek együtt kiemelkedően jó tárolási kapacitást biztosítanak. ( Együtt: 15 000 000.-Ft.)
A terasz alatti murvás kerti beálló használati joga a vásárlóhoz kerül.
A lakás földszinti elhelyezkedése rendkívül kényelmessé teszi a mindennapokat idősek és kisgyermekes családok számára, hiszen a kocsibeállótól pár lépéssel megközelíthető. A teraszról és a nappaliból rálátás nyílik a belső udvarra, így a gyerekek biztonságban szem előtt tarthatók játék közben.
Lokáció – a Római-part minden előnyével:
A környék zöld, hangulatos, kifejezetten élhető.
- Duna-part: 15 perc séta
- Rómaifürdő HÉV-megálló: 5 perc
- Rómaifürdői Strandfürdő: 5 perc
- Bevásárlási lehetőségek, óvoda, iskola, szolgáltatások rövid sétatávolságon belül
A környék nyugodt, mégis jól megközelíthető – sokak számára olyan, mintha egy üdülőövezetben élnének.
Hívjon most, tekintse meg a lehető leghamarabb -ne szalassza el a lehetőséget!
Registration Number
H510275
Property Details
Sales
for sale
Legal Status
used
Character
apartment
Construction Method
brick
Net Size
59 m²
Gross Size
61 m²
Size of Terrace / Balcony
4 m²
Heating
Gas circulator
Ceiling Height
275 cm
Number of Levels Within the Property
1
Orientation
West
Staircase Type
enclosed staircase
Condition
Good
Condition of Facade
Average
Condition of Staircase
Average
Neighborhood
quiet, good transport, green
Year of Construction
1983
Number of Bathrooms
1
Position
garden-facing
Condominium Garden
yes
Common Costs
10000
Garage
Mandatory to buy
Garage Spaces
1
Water
Available
Gas
Available
Electricity
Available
Sewer
Available
Storage
Mandatory to buy
Rooms
living room
17 m²
open-plan kitchen and dining room
8 m²
room
11 m²
room
8 m²
bathroom-toilet
3 m²
toilet
1 m²
terrace
4 m²