89,900,000 Ft
232,000 €
- 51m²
- 2 Rooms
- 4th floor
XIII. Béke tér közelében, kiváló állapotú újszerű otthon
Modern, újszerű lakás a XIII. kerületben, Béke tér közelében
Eladásra kínálunk egy igényesen kialakított, kiváló állapotú, kertre néző lakást Angyalföld központi részén,
egy 2012-ben épült, gondosan karbantartott társasház 4. emeletén.
Az ingatlan minden kényelmet biztosít, így ideális választás lehet fiatal pároknak, egyedülállóknak vagy befektetőknek is.
???? Főbb jellemzők
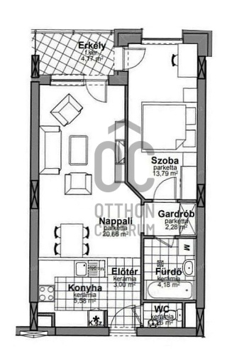
Alapterület: 51 m²
Erkély: 4 m², hangulatos, kerti panorámával
Elosztás: tágas nappali, kényelmes hálószoba, külön konyha- és étkezőrész
Fürdőszoba: modern kialakítás, elektromos törölközőszárítóval és mosógéppel
Külön WC kézmosóval
Gardrób biztosítja a praktikus tárolást
Hőszigetelt nyílászárók és modern gépészet
Házközponti fűtés egyedi mérőkkel – minden fogyasztás alapján fizetendő
Közös költség: 24 000 Ft/hó
Tulajdonviszony: 1/1 tulajdon
Az ár tartalmazza a beépített bútorokat és a konyhai gépeket.
???? A társasházról
A ház hét emeletes, modern építésű, aktív közös képviselettel és barátságos lakóközösséggel.
A közös terek tiszták, rendezettek, a ház műszaki állapota igen jó.
???? Elhelyezkedés
Az ingatlan Angyalföld szívében, a Béke tér közelében található. A környék csendes, mégis központi elhelyezkedésű, számos szolgáltatás, iskola, óvoda, üzlet, étterem és sportolási lehetőség elérhető néhány perces sétával.
A XIII. kerület az utóbbi években Budapest egyik legnépszerűbb és leggyorsabban fejlődő városrésze, ahol a modern városi életstílus és a zöld környezet tökéletes egyensúlyt alkot.
???? Közlekedés
Buszmegálló (20E, 30, 30A, 230): kb. 300 méterre – közvetlen kapcsolat a Keleti pályaudvarral
14-es villamos: Béke téri megálló, kb. 7 perc séta
Vasútállomás: mindössze 8 perc gyalog
A belváros és a főbb csomópontok könnyen és gyorsan megközelíthetők.
✨ Ez a lakás kiváló választás mindazoknak, akik modern, azonnal költözhető otthont keresnek egy rendezett, zöld környezetben, Budapest egyik legkedveltebb kerületében.
Eladásra kínálunk egy igényesen kialakított, kiváló állapotú, kertre néző lakást Angyalföld központi részén,
egy 2012-ben épült, gondosan karbantartott társasház 4. emeletén.
Az ingatlan minden kényelmet biztosít, így ideális választás lehet fiatal pároknak, egyedülállóknak vagy befektetőknek is.
???? Főbb jellemzők
Alapterület: 51 m²
Erkély: 4 m², hangulatos, kerti panorámával
Elosztás: tágas nappali, kényelmes hálószoba, külön konyha- és étkezőrész
Fürdőszoba: modern kialakítás, elektromos törölközőszárítóval és mosógéppel
Külön WC kézmosóval
Gardrób biztosítja a praktikus tárolást
Hőszigetelt nyílászárók és modern gépészet
Házközponti fűtés egyedi mérőkkel – minden fogyasztás alapján fizetendő
Közös költség: 24 000 Ft/hó
Tulajdonviszony: 1/1 tulajdon
Az ár tartalmazza a beépített bútorokat és a konyhai gépeket.
???? A társasházról
A ház hét emeletes, modern építésű, aktív közös képviselettel és barátságos lakóközösséggel.
A közös terek tiszták, rendezettek, a ház műszaki állapota igen jó.
???? Elhelyezkedés
Az ingatlan Angyalföld szívében, a Béke tér közelében található. A környék csendes, mégis központi elhelyezkedésű, számos szolgáltatás, iskola, óvoda, üzlet, étterem és sportolási lehetőség elérhető néhány perces sétával.
A XIII. kerület az utóbbi években Budapest egyik legnépszerűbb és leggyorsabban fejlődő városrésze, ahol a modern városi életstílus és a zöld környezet tökéletes egyensúlyt alkot.
???? Közlekedés
Buszmegálló (20E, 30, 30A, 230): kb. 300 méterre – közvetlen kapcsolat a Keleti pályaudvarral
14-es villamos: Béke téri megálló, kb. 7 perc séta
Vasútállomás: mindössze 8 perc gyalog
A belváros és a főbb csomópontok könnyen és gyorsan megközelíthetők.
✨ Ez a lakás kiváló választás mindazoknak, akik modern, azonnal költözhető otthont keresnek egy rendezett, zöld környezetben, Budapest egyik legkedveltebb kerületében.
Registration Number
H509607
Property Details
Sales
for sale
Legal Status
used
Character
apartment
Construction Method
brick
Net Size
51 m²
Gross Size
55.1 m²
Size of Terrace / Balcony
4.1 m²
Heating
central heating
Ceiling Height
270 cm
Orientation
North-East
Staircase Type
enclosed staircase
Condition
Good
Condition of Facade
Good
Condition of Staircase
Good
Neighborhood
quiet, good transport, central
Year of Construction
2012
Number of Bathrooms
1
Position
garden-facing
Common Costs
24000
Water
Available
Electricity
Available
Sewer
Available
Elevator
available
Rooms
open-plan living and dining room
20.66 m²
bedroom
13.79 m²
kitchen
5.58 m²
bathroom
4.18 m²
toilet-washbasin
1.26 m²
wardrobe
2.28 m²
entryway
3 m²
balcony
4.18 m²
Vitéz Kornél
Credit Expert