109,900,000 Ft
282,000 €
- 55m²
- 2 Rooms
- 1st floor













Fedezze fel Budapest szívében ezt a kényelmes, 2 szobás lakást a Palotanegyedben!
A VIII. kerület legszebb, kiemelkedően kedvelt Palotanegyed városrészében kínálom eladásra ezt a nagyon egyedi stílusban felújított 55 nm-es 2 szobás, emeleti, liftes, rendezett házban lévő ingatlant.
A jó állapotú liftes, polgári jellegű tégla építésű társasház rendezett. Lakóközössége nyugodt, csendes.
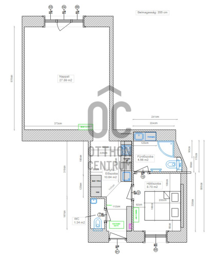
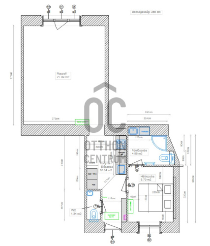
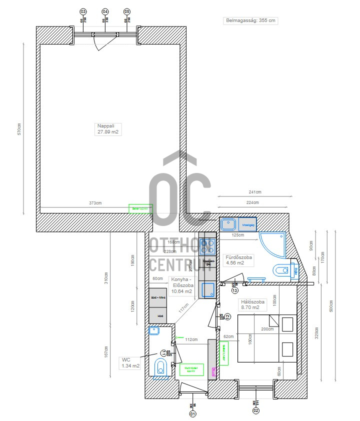
A lakás teljes felújításon esett át. Mint a képeken is látható, minden új. Nagyon jó az alaprajza, mert a háló és a fürdő egy intim teret ad, a konyha tágas, helyet kapott egy vendég WC is, ill a nappali az óriási méretével lehetőséget ad minden funkció valódi kihasználásra. Vendégek fogadása esetén is kényelmes.
A lokáció páratlan, hiszen 2 perc a Blaha Lujza tér, ugyanakkor egy belvárostól szokatlanul csendes utcában vagyunk.
A lakás fenntartása kedvező nagyon. Akár kiadásra, akár saját célra is tökéletes választás lehet!
Keressen és tekintsük meg még ma!
A jó állapotú liftes, polgári jellegű tégla építésű társasház rendezett. Lakóközössége nyugodt, csendes.
A lakás teljes felújításon esett át. Mint a képeken is látható, minden új. Nagyon jó az alaprajza, mert a háló és a fürdő egy intim teret ad, a konyha tágas, helyet kapott egy vendég WC is, ill a nappali az óriási méretével lehetőséget ad minden funkció valódi kihasználásra. Vendégek fogadása esetén is kényelmes.
A lokáció páratlan, hiszen 2 perc a Blaha Lujza tér, ugyanakkor egy belvárostól szokatlanul csendes utcában vagyunk.
A lakás fenntartása kedvező nagyon. Akár kiadásra, akár saját célra is tökéletes választás lehet!
Keressen és tekintsük meg még ma!
Registration Number
H508497
Property Details
Sales
for sale
Legal Status
used
Character
apartment
Construction Method
brick
Net Size
55 m²
Gross Size
56 m²
Size of Terrace / Balcony
1 m²
Heating
values.realestate.futes.26
Ceiling Height
350 cm
Number of Levels Within the Property
1
Orientation
East
Staircase Type
suspended corridor
Condition
Excellent
Condition of Facade
Excellent
Condition of Staircase
Excellent
Neighborhood
good transport, central
Year of Construction
1910
Number of Bathrooms
1
Position
street-facing
Common Costs
19195
Water
Available
Electricity
Available
Sewer
Available
Elevator
available
Rooms
entryway
4 m²
bedroom
9 m²
bathroom-toilet
4 m²
toilet-washbasin
2 m²
kitchen
4 m²
open-plan living and dining room
27 m²