data_sheet.details.realestate.section.main.otthonstart_flag.label
For sale family house, H508214
Egyek

13,000,000 Ft

34,000 €

  • 75m²
  • 2 Rooms
Exclusive Contract

Don't miss it! Excellent value for money at Lake Tisza!

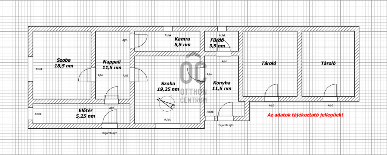
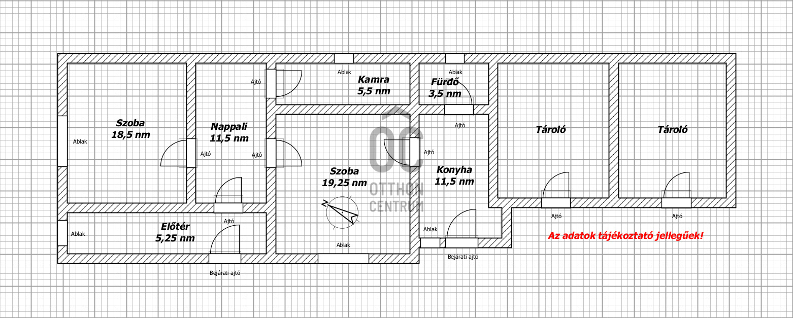
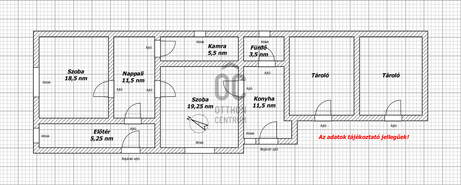
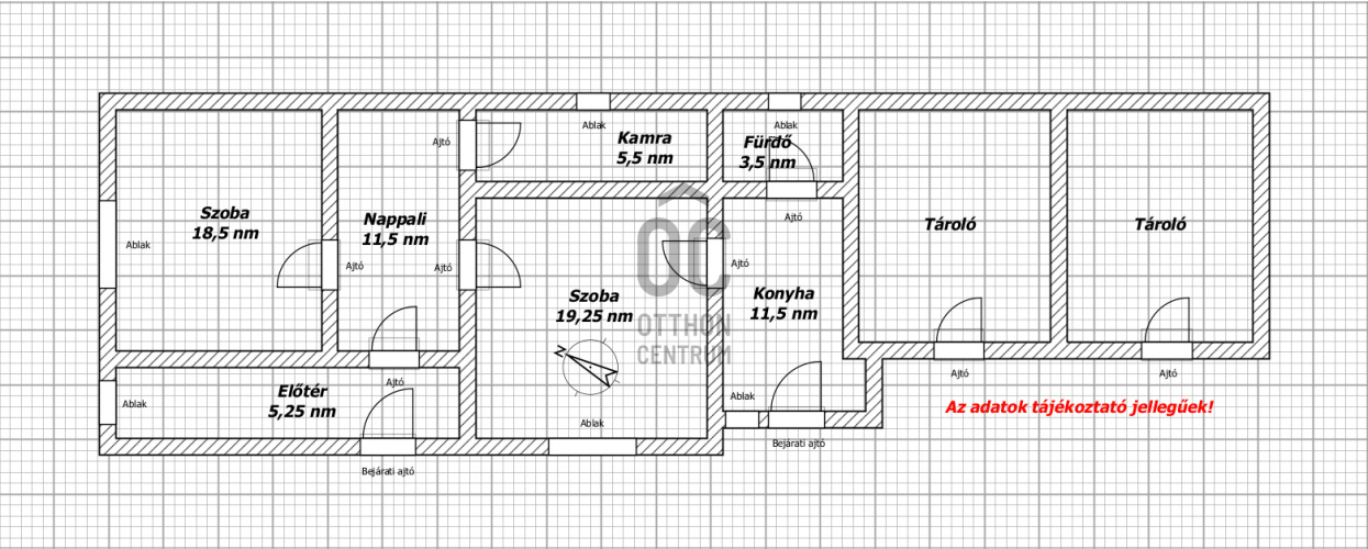
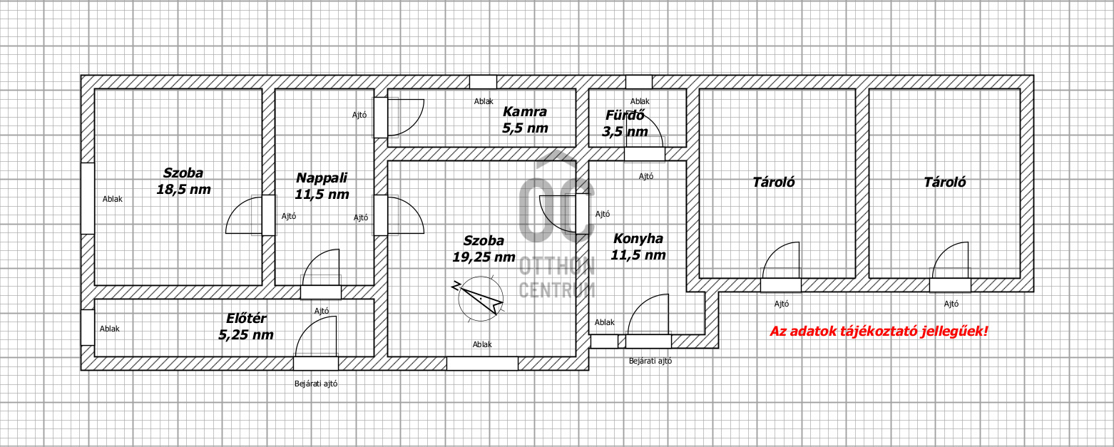
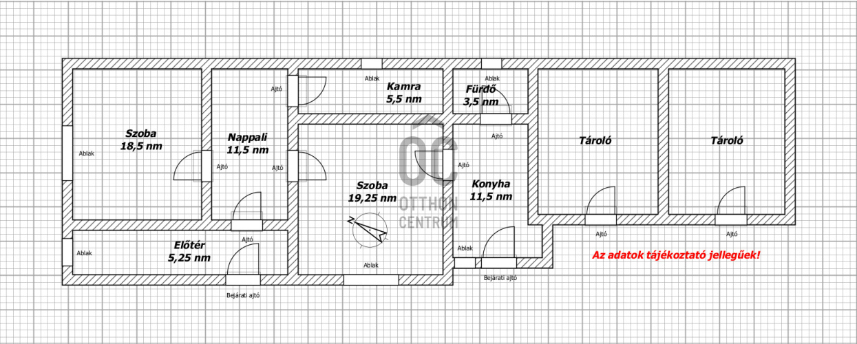
Located in Egyek, nestled between the living Tisza River and the Hortobágy, just 10 km from the 'capital' of Lake Tisza, Tiszafüred, in a quiet, well-connected neighborhood, a family house is FOR SALE in a friendly street! The village has everything necessary for a family's life, including a school, kindergarten, nursery, sports field with a playground, pastry shop, medical office, and pharmacy. Additionally, the RURAL CSOK (a government housing subsidy) is available, so the future owner can consider this option as well! This fully serviced, built on a concrete foundation, clay-brick house, in excellent structural and aesthetic condition, is 75 square meters and awaits its future owner on a well-defined plot of 1143 square meters! The house features 2 bedrooms, a living-dining room, kitchen, bathroom, hallway, and a pantry. It can be moved into immediately in its current condition, needing only a bit of cleaning and painting! It is an ideal choice for families, the elderly, and anyone who needs to move quickly, preferably without renovation, especially before the winter season!!! The house has a not necessary, but good to have camera system, and gas convectors provide warmth. There is also an outbuilding that can be converted into a garage! The yard is equipped with shelters suitable for keeping animals and has a storage area! Due to the size of the plot, it is excellent for planting fruit trees, establishing a vegetable garden, and there is also space for a playground for children and a venue for family and friend gatherings, including a grilling and partying area! The real estate market is changing rapidly, but I am here and available to help! If I have piqued your interest, call me TODAY and let’s take a look together! I also provide comprehensive loan administration and the necessary legal background for the property purchase for prospective buyers. For more information and to arrange a viewing, please refer to the H508214 reference number!

Registration Number

H508214

Property Details

Sales
for sale
Legal Status
used
Character
house
Construction Method
adobe
Net Size
75 m²
Gross Size
100 m²
Plot Size
1,143 m²
Heating
gas convector
Ceiling Height
265 cm
Orientation
South-West
Condition
Average
Condition of Facade
Average
Year of Construction
1961
Number of Bathrooms
1
Water
Available
Gas
Available
Electricity
Available
Sewer
Available
Storage
Independent

Rooms

room
18.5 m²
room
19.25 m²
open-plan living and dining room
11.5 m²
kitchen
11.5 m²
bathroom
3.5 m²
entryway
5.25 m²
pantry
5.5 m²
Pomaházi Pál
Pomaházi Pál

Credit Expert

From Our Office Listings - Tiszafüred

for sale family house

Index image
data_sheet.details.realestate.section.main.otthonstart_flag.label
30

for sale family house

Index image
data_sheet.details.realestate.section.main.otthonstart_flag.label
17

for sale family house

Index image
data_sheet.details.realestate.section.main.otthonstart_flag.label
18

for sale family house

Index image
data_sheet.details.realestate.section.main.otthonstart_flag.label
17

for sale family house

Index image
data_sheet.details.realestate.section.main.otthonstart_flag.label
29

for sale family house

Index image
data_sheet.details.realestate.section.main.otthonstart_flag.label
24

for sale family house

Index image
data_sheet.details.realestate.section.main.otthonstart_flag.label
27

for sale family house

Index image
data_sheet.details.realestate.section.main.otthonstart_flag.label
18

for sale family house

Index image
data_sheet.details.realestate.section.main.otthonstart_flag.label
24

for sale family house

Index image
data_sheet.details.realestate.section.main.otthonstart_flag.label
21