459,900,000 Ft
1,182,000 €
- 400m²
- 5 Rooms


























Energiatakarékos, korszerű álomotthon Sasadon!
Exkluzív, panorámás családi villa – minimális rezsivel!
1300 m²-es, intim, örökpanorámás telken: 3 szint, 3 szoba, 5 fürdőszoba, márványburkolatok, télikert és tágas, napfényes terek.
400 m²-es villa prémium anyagokból épült: márvány lépcsők és burkolatok, kovácsoltvas korlátok, trópusi fa nyílászárók, padlófűtés és egyedi belső dekorelemek, hangulatos kandalló, tágas teraszok és 1.300 m2 intim kert gondoskodnak a pihenésről, garantálják a luxusérzetet.
A ház teljes energetikai korszerűsítésen esett át: hőszivattyú, napelemek, kandalló és hybrid fan-coil valamint okos vezérlőrendszer biztosítja, gondoskodik a rendkívül alacsony fenntartási költségekről.
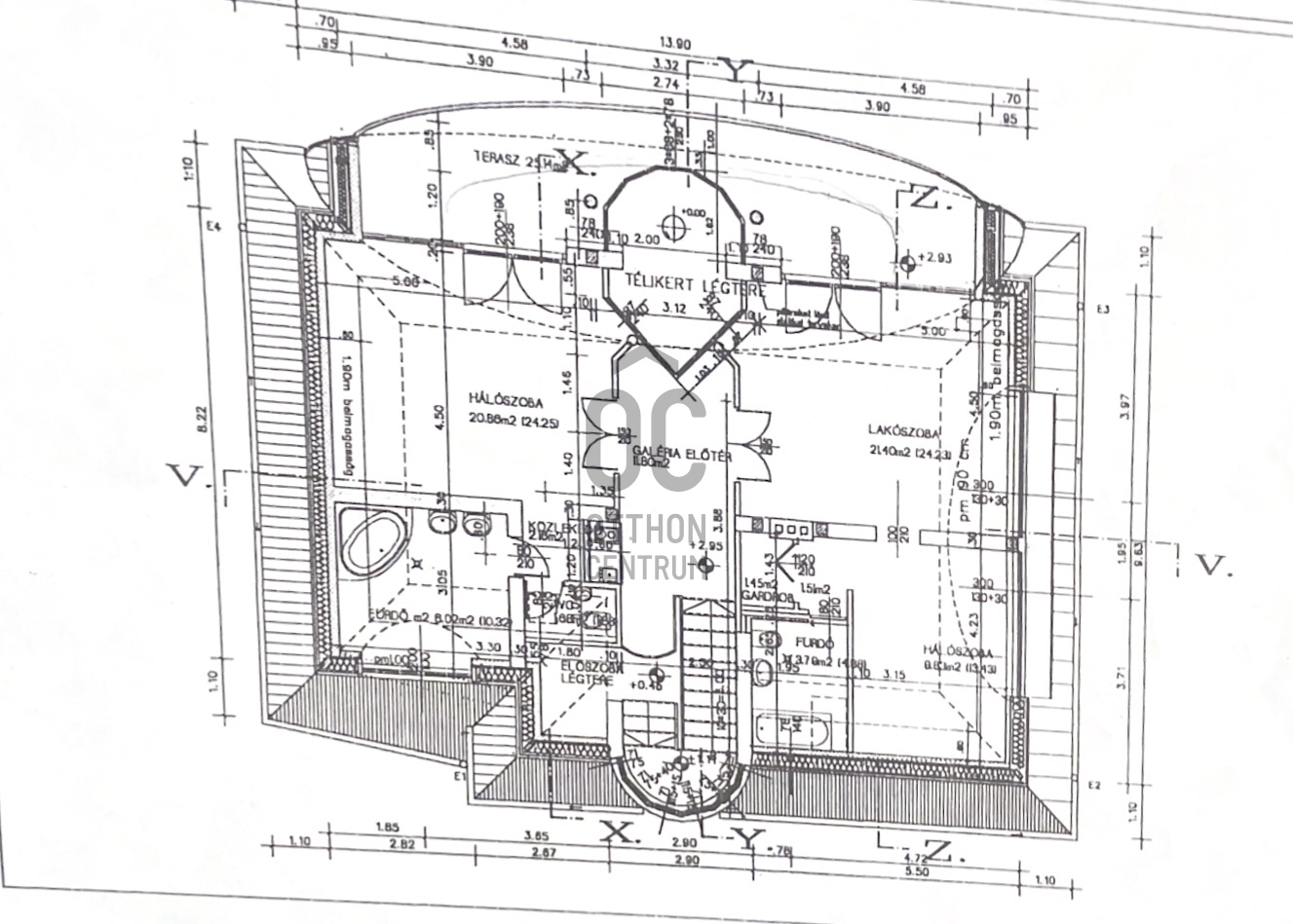
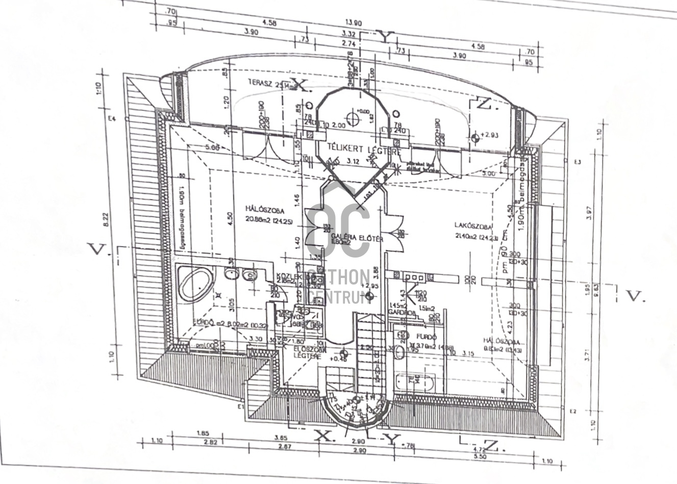
Elrendezés
nappali szint – amerikai konyhás nappali, dolgozószoba, gardrób, fürdő
felső szint – 3 hálószoba, 2 fürdő, erkélyek,
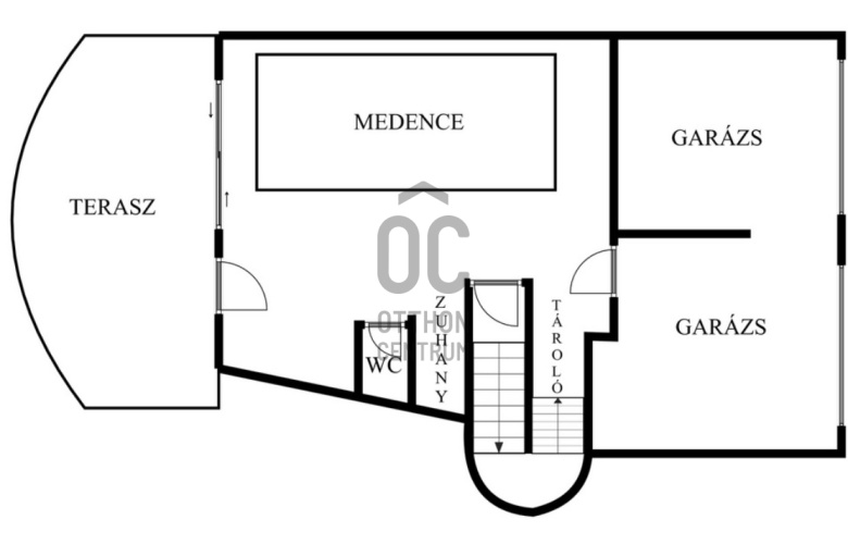
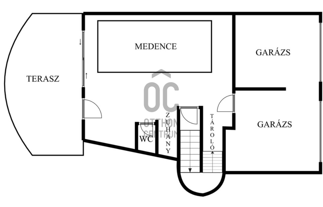
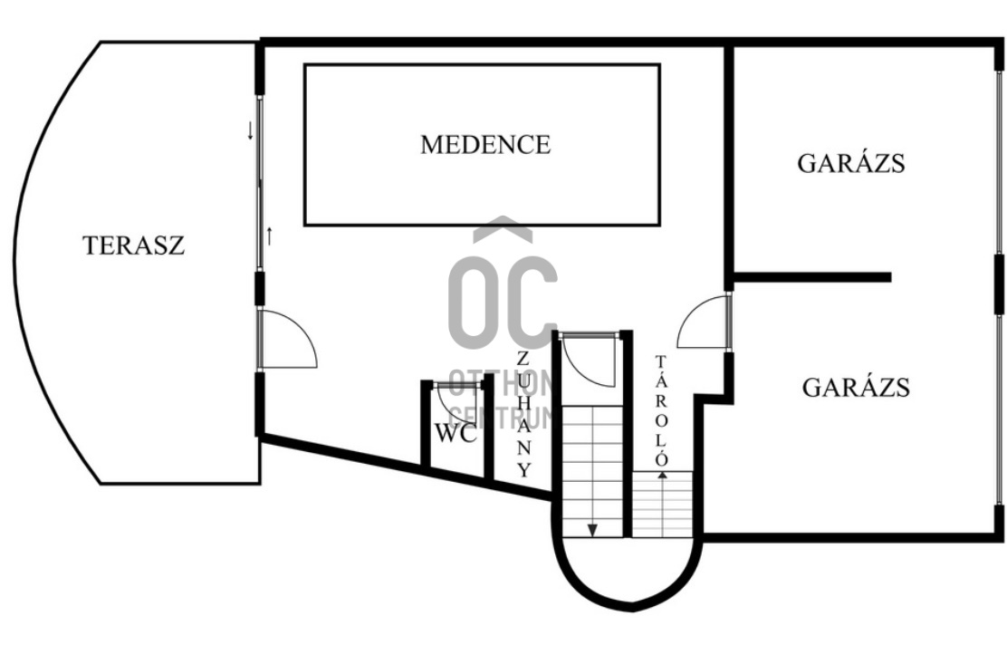
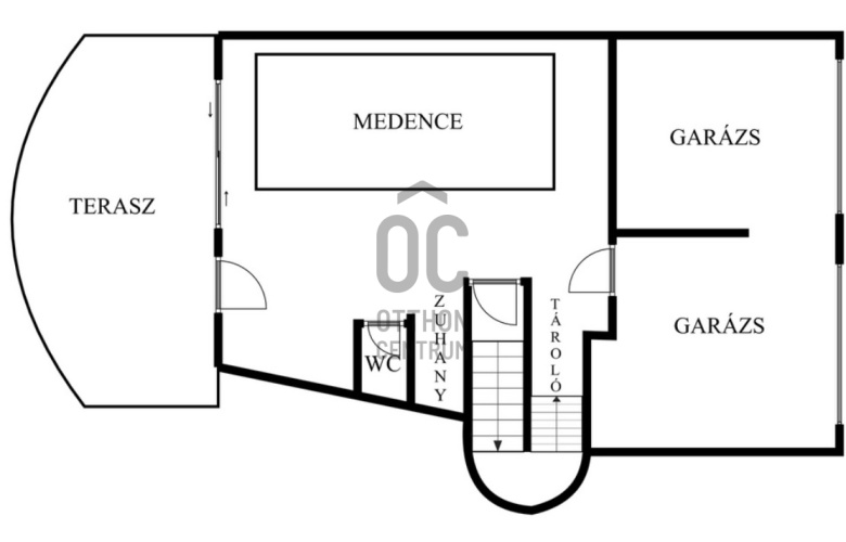
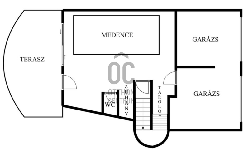
kertszint – garázs, tárolók, wellnessrészleg.
Wellnessrészleg feszített víztükrös medencével és szauna-előkészítéssel.
3 autóbeálló garázs, fűthető felhajtó, gyönyörű kert, hatalmas teraszok és csodás panoráma – minden adott a luxus és a kényelem tökéletes harmóniájához.
Biztonság: nyitás-, törés- és mozgásérzékelő rádiós riasztórendszer, automata öntözőrendszer.
Kiváló lokáció: bevásárlás, gyógyszertár, posta sétatávolságra, M1/M7 gyorsan elérhető.
Akiknek ajánlom...
1. Környezettudatos, prémium vásárlók
– Akik luxusotthont szeretnének, de fontos számukra a fenntarthatóság és az alacsony rezsi.
– Magas jövedelmű családok, akik értékelik a modern technológiát és a zöld megoldásokat.
2. Diplomáciai képviseletek, nagykövetségek
– A ház mérete, reprezentatív megjelenése, nagy terei és a csendes, biztonságos környék miatt kiválóan alkalmas rezidenciának vagy nagykövetségi irodának.
3. Vállalkozók, üzletemberek
– Akik reprezentatív otthont szeretnének, ahol akár vendégeket, üzleti partnereket is fogadhatnak.
– A wellnessrészleg és a panoráma exkluzív környezetet ad, ami státuszszimbólum is.
4. Nagycsaládosok
– Az 5 szoba, 4 fürdőszoba, nagy nappali és a kert lehetővé teszi, hogy kényelmesen éljen együtt több generáció.
5. Befektetők / bérbeadók
– A nagykövetségi vagy expat bérlők számára magas hozammal, hosszú távon kiadható.
Ez a ház ideális választás családnak, nagykövetségnek vagy rezidenciának – igazi ritkaság a piacon!
A házról és a környékről minden további részletet valamint a felmerülő kérdésekre a megtekintés alatt tudok választ adni.
1300 m²-es, intim, örökpanorámás telken: 3 szint, 3 szoba, 5 fürdőszoba, márványburkolatok, télikert és tágas, napfényes terek.
400 m²-es villa prémium anyagokból épült: márvány lépcsők és burkolatok, kovácsoltvas korlátok, trópusi fa nyílászárók, padlófűtés és egyedi belső dekorelemek, hangulatos kandalló, tágas teraszok és 1.300 m2 intim kert gondoskodnak a pihenésről, garantálják a luxusérzetet.
A ház teljes energetikai korszerűsítésen esett át: hőszivattyú, napelemek, kandalló és hybrid fan-coil valamint okos vezérlőrendszer biztosítja, gondoskodik a rendkívül alacsony fenntartási költségekről.
Elrendezés
nappali szint – amerikai konyhás nappali, dolgozószoba, gardrób, fürdő
felső szint – 3 hálószoba, 2 fürdő, erkélyek,
kertszint – garázs, tárolók, wellnessrészleg.
Wellnessrészleg feszített víztükrös medencével és szauna-előkészítéssel.
3 autóbeálló garázs, fűthető felhajtó, gyönyörű kert, hatalmas teraszok és csodás panoráma – minden adott a luxus és a kényelem tökéletes harmóniájához.
Biztonság: nyitás-, törés- és mozgásérzékelő rádiós riasztórendszer, automata öntözőrendszer.
Kiváló lokáció: bevásárlás, gyógyszertár, posta sétatávolságra, M1/M7 gyorsan elérhető.
Akiknek ajánlom...
1. Környezettudatos, prémium vásárlók
– Akik luxusotthont szeretnének, de fontos számukra a fenntarthatóság és az alacsony rezsi.
– Magas jövedelmű családok, akik értékelik a modern technológiát és a zöld megoldásokat.
2. Diplomáciai képviseletek, nagykövetségek
– A ház mérete, reprezentatív megjelenése, nagy terei és a csendes, biztonságos környék miatt kiválóan alkalmas rezidenciának vagy nagykövetségi irodának.
3. Vállalkozók, üzletemberek
– Akik reprezentatív otthont szeretnének, ahol akár vendégeket, üzleti partnereket is fogadhatnak.
– A wellnessrészleg és a panoráma exkluzív környezetet ad, ami státuszszimbólum is.
4. Nagycsaládosok
– Az 5 szoba, 4 fürdőszoba, nagy nappali és a kert lehetővé teszi, hogy kényelmesen éljen együtt több generáció.
5. Befektetők / bérbeadók
– A nagykövetségi vagy expat bérlők számára magas hozammal, hosszú távon kiadható.
Ez a ház ideális választás családnak, nagykövetségnek vagy rezidenciának – igazi ritkaság a piacon!
A házról és a környékről minden további részletet valamint a felmerülő kérdésekre a megtekintés alatt tudok választ adni.
Registration Number
H507706
Property Details
Sales
for sale
Legal Status
used
Character
house
Construction Method
brick
Net Size
400 m²
Gross Size
400 m²
Plot Size
1,321 m²
Size of Terrace / Balcony
61 m²
Garden Size
1 m²
Heating
heat pump
Ceiling Height
320 cm
Number of Levels Within the Property
1
Orientation
South-West
View
city view, Green view
Condition
Excellent
Condition of Facade
Good
Basement
Independent
Neighborhood
quiet, good transport, green, central
Year of Construction
2001
Number of Bathrooms
3
Condominium Garden
yes
Garage
Included in the price
Garage Spaces
3
Water
Available
Gas
Available
Electricity
Available
Sewer
Available
Multi-Generational
yes
Storage
Independent
Rooms
entryway
10 m²
study
18 m²
dining room
25 m²
bathroom-toilet
8 m²
kitchen
20 m²
living room
30 m²
other room
5 m²
pantry
7 m²
winter garden
15 m²
shower
7 m²
terrace
46 m²
room
20 m²
room
25 m²
bedroom
30 m²
bathroom-toilet
10 m²
laundry room
12 m²
bathroom
15 m²
cellar
30 m²

Örvössy Tamás
Credit Expert