239,000,000 Ft
613,000 €
- 308m²
- 6 Rooms





















Medencés családi ház Cinkotán – várja Önt és családját!
CINKOTA csendes, barátságos részén, Ilonatelepen eladó egy tágas terekkel, jó elosztással rendelkező 2 SZINTES családi ház!
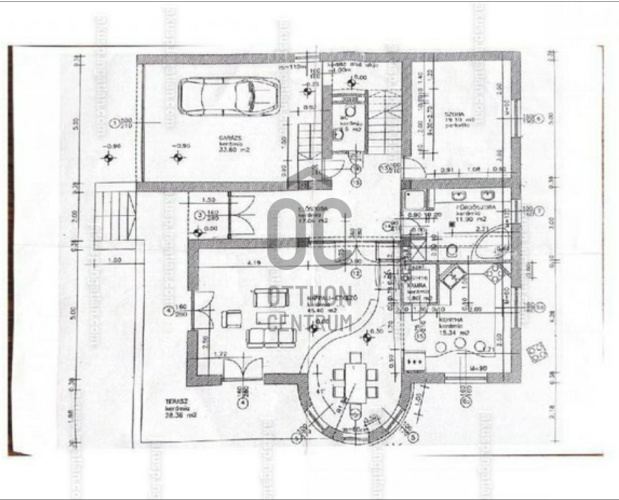
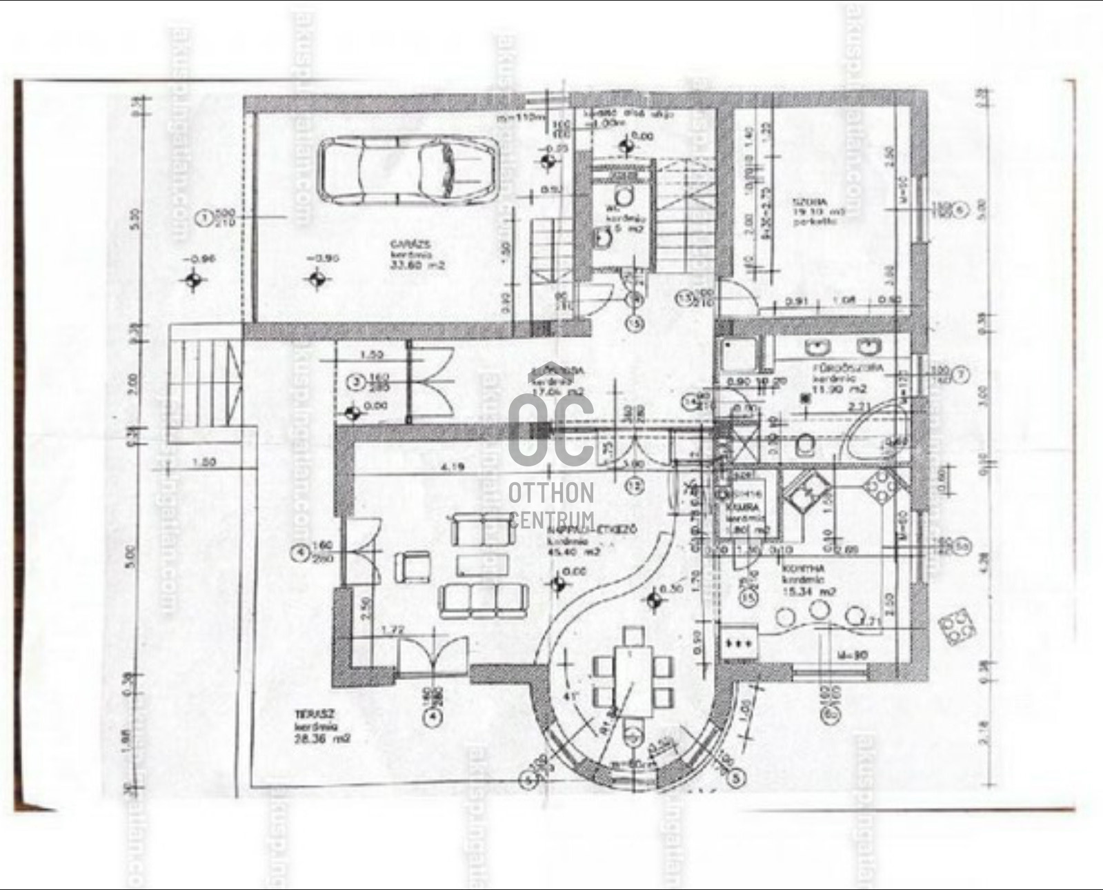
Az AUTOMATA KERTKAPUN keresztül jutunk be a rendezett kertbe, ahol a FŰTHETŐ burkolatú GÉPKOCSI FELHAJTÓN érjük el a házat és egyből be is állhatunk a KÉTÁLLÁSOS fűtött GARÁZSBA.
A földszinten HATALMAS, az emelettel EGYBENYITOTT világos NAPPALI, külön étkező résszel, praktikus konyha, a hozzátartozó kamrával, vendég HÁLÓSZOBA és természetesen fürdőszoba található. A lépcsőházból diszkréten nyílik a GARDÓB helyiség, amelyben egy kisebb ruhabolt teljes áruválasztéka beleférhet.
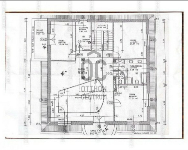
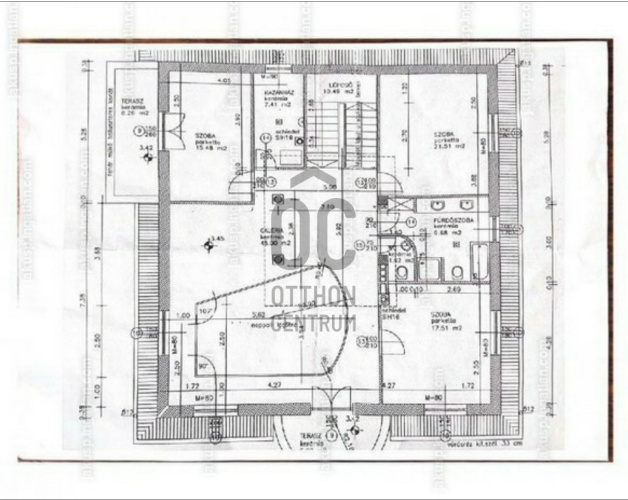
Az emeleti galériáról nyílik a 3 fenti HÁLÓSZOBA, amelyek közül kettőnek saját TERASZA is van szép panorámával a környékre.
Az egész házat a MINŐSÉGI anyaghasználat jellemzi, egyedi világítás megoldásokkal, gépészettel, központi porszívóval, klímával. A biztonságérzetet a kamera- és riasztórendszer támogatja.
Az udvaron feszített víztükrű MEDENCEjó szolgálatot tesz a nagy melegben, ráadásul a vizét napkollektor segítségével is felmelegíthetjük. Van itt még egy kb 30 m2-es FEDETT SZALETLI, sütögetési lehetőséggel, kerti asztalokkal, mosogatóval, ha összegyűlik a nagy család, vagy a baráti kör. Miközben a gyerekek a kertben játszanak, a BOROS PINCÉBŐL előkerülhetnek a házigazda jóféle itókái is.
Ha a belvárosban van dolga és a kocsit lerakja, a H8-as HÉV Ilonatelepi megállója sétatávolságra található, akárcsak a 44, 45, 92, 176E buszok megállója.
Ha felkeltettem érdeklődését, vagy további információra van szüksége, várom hívását!
Az AUTOMATA KERTKAPUN keresztül jutunk be a rendezett kertbe, ahol a FŰTHETŐ burkolatú GÉPKOCSI FELHAJTÓN érjük el a házat és egyből be is állhatunk a KÉTÁLLÁSOS fűtött GARÁZSBA.
A földszinten HATALMAS, az emelettel EGYBENYITOTT világos NAPPALI, külön étkező résszel, praktikus konyha, a hozzátartozó kamrával, vendég HÁLÓSZOBA és természetesen fürdőszoba található. A lépcsőházból diszkréten nyílik a GARDÓB helyiség, amelyben egy kisebb ruhabolt teljes áruválasztéka beleférhet.
Az emeleti galériáról nyílik a 3 fenti HÁLÓSZOBA, amelyek közül kettőnek saját TERASZA is van szép panorámával a környékre.
Az egész házat a MINŐSÉGI anyaghasználat jellemzi, egyedi világítás megoldásokkal, gépészettel, központi porszívóval, klímával. A biztonságérzetet a kamera- és riasztórendszer támogatja.
Az udvaron feszített víztükrű MEDENCEjó szolgálatot tesz a nagy melegben, ráadásul a vizét napkollektor segítségével is felmelegíthetjük. Van itt még egy kb 30 m2-es FEDETT SZALETLI, sütögetési lehetőséggel, kerti asztalokkal, mosogatóval, ha összegyűlik a nagy család, vagy a baráti kör. Miközben a gyerekek a kertben játszanak, a BOROS PINCÉBŐL előkerülhetnek a házigazda jóféle itókái is.
Ha a belvárosban van dolga és a kocsit lerakja, a H8-as HÉV Ilonatelepi megállója sétatávolságra található, akárcsak a 44, 45, 92, 176E buszok megállója.
Ha felkeltettem érdeklődését, vagy további információra van szüksége, várom hívását!
Registration Number
H506462
Property Details
Sales
for sale
Legal Status
used
Character
house
Construction Method
brick
Net Size
308 m²
Gross Size
308 m²
Plot Size
1,371 m²
Size of Terrace / Balcony
36 m²
Heating
gas boiler
Ceiling Height
300 cm
Number of Levels Within the Property
2
Orientation
South-East
View
Green view
Condition
Good
Condition of Facade
Good
Basement
Independent
Neighborhood
quiet
Year of Construction
1985
Number of Bathrooms
2
Garage
Included in the price
Garage Spaces
2
Water
Available
Gas
Available
Electricity
Available
Sewer
Available
Rooms
open-plan living and dining room
45.4 m²
bedroom
19.5 m²
kitchen
15.3 m²
pantry
1.5 m²
bathroom-toilet
11.8 m²
toilet-washbasin
1.5 m²
garage
32.6 m²
entryway
17 m²
wardrobe
45 m²
terrace
28.3 m²
gallery
15 m²
bedroom
21.5 m²
bedroom
17.5 m²
bedroom
15.4 m²
bathroom-toilet
9 m²
toilet-washbasin
1.5 m²
boiler room
7.4 m²
terrace
8 m²
terrace
2.5 m²
corridor
15 m²

Pongó Miklós
Credit Expert