data_sheet.details.realestate.section.main.otthonstart_flag.label
For sale farmhouse,
H506383
Szekszárd, Felsőváros
15,000,000 Ft
39,000 €
- 90m²
- 2 Rooms















Eladó nagyobb méretű gazdasági épület
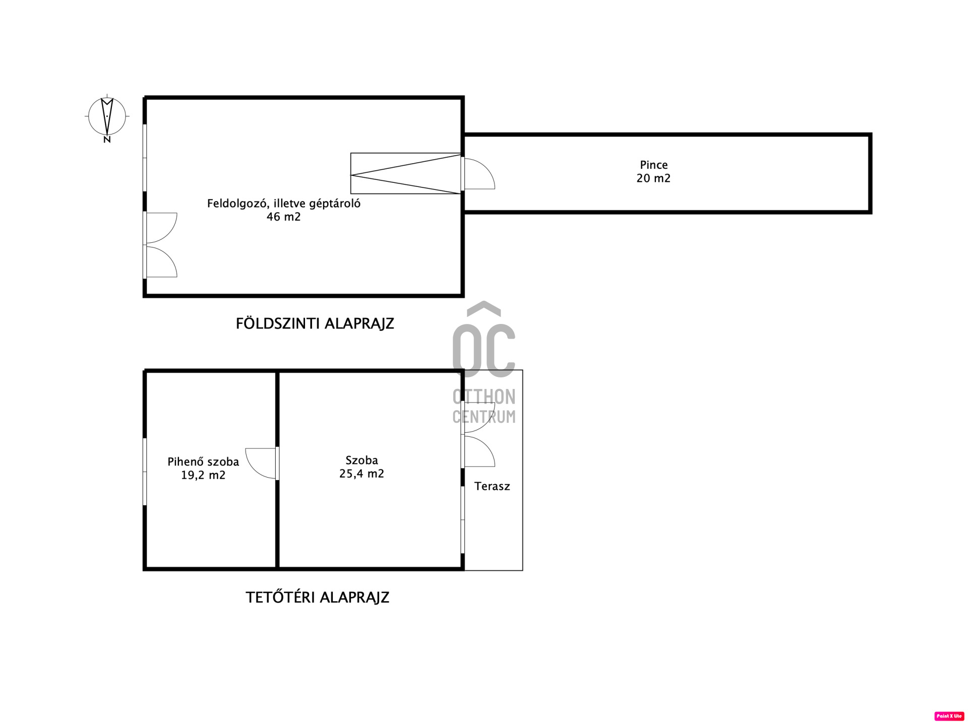
Szekszárdon a Kisbödő hegyen eladó 4120 m2-es telken 90 m2-es alapterületű ház (alsó szint 46 m2, felső szint 44 m2 bruttó).
A tanya tégla épület, 270 cm-es belmagasságú, ipari árammal ellátott.
Az esővizet 4 m3-es beton ciszternában tárolják, a terasz alatt.
Beton úton megközelíthető.
10 méter hosszú téglázott pince, és további 2 m földpince tartozik a gazdasági épülethez.
A területen bor szőlő és csemege szőlő is található, illetve a telek felső részén egy konyhakert is van.
A telek méretéből adódóan alkalmas annyi növény megtermelésére, ami egy család megélhetését tudja biztosítani.
A tanya alsó szintje garázsként is használható a nagyméretű kapunak, és az egyben 46 m2 alapterületnek.
Menjünk nézzük meg!
A tanya tégla épület, 270 cm-es belmagasságú, ipari árammal ellátott.
Az esővizet 4 m3-es beton ciszternában tárolják, a terasz alatt.
Beton úton megközelíthető.
10 méter hosszú téglázott pince, és további 2 m földpince tartozik a gazdasági épülethez.
A területen bor szőlő és csemege szőlő is található, illetve a telek felső részén egy konyhakert is van.
A telek méretéből adódóan alkalmas annyi növény megtermelésére, ami egy család megélhetését tudja biztosítani.
A tanya alsó szintje garázsként is használható a nagyméretű kapunak, és az egyben 46 m2 alapterületnek.
Menjünk nézzük meg!
Registration Number
H506383
Property Details
Sales
for sale
Legal Status
used
Character
house
Construction Method
brick
Net Size
90 m²
Gross Size
90 m²
Plot Size
4,120 m²
Heating
tile stove (mixed)
Ceiling Height
272 cm
Orientation
East
View
Green view
Condition
Good
Condition of Facade
Good
Basement
Independent
Neighborhood
quiet, good transport, green
Year of Construction
1988
Garage Spaces
2
Electricity
Available
Rooms
other room
46 m²
room
19.2 m²
room
25.4 m²

Moczok Ágnes
Credit Expert