data_sheet.details.realestate.section.main.otthonstart_flag.label
For sale family house,
H504504
Halásztelek
46,990,000 Ft
121,000 €
- 45m²
- 2 Rooms













Eladó Halásztelken kétgenerációs családi ház csendes, jól megközelíthető környezetben!
Halásztelken található ez az ideális otthon mindazok számára, akik kisebb házat keresnek, de fontos számukra a külön lakrész, a tágas kert és a kiváló elhelyezkedés.
Ingatlan jellemzői:
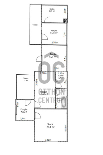
Főépület: 45 m²-es nettó alapterületű téglaépítésű ház, cserép tetőfedéssel.
Helyiségek: konyha, nappali, hálószoba, fürdőszoba, kamra.
Betonfödém, a tető nem szigetelt.
Közművek: Teljes közművel ellátott (víz, villany, gáz, csatorna).
Különálló lakrész:
Alapterület: 20,9 m².
Közművek: Víz és villany bekötve.
Fűtés: Fatüzeléssel megoldott.
Tároló: A ház mellett található 13,3 m²-es tároló.
Telek: 576 m²-es, tágas, gondozható kert.
Kert és környezet:
A ház egy 576 m²-es kerttel rendelkezik, amely tágas teret biztosít kertészkedéshez, szabadidős tevékenységekhez vagy akár további fejlesztésekhez.
Az ingatlan összközműves, így minden modern kényelmi szolgáltatás rendelkezésre áll.
Elhelyezkedés:
Kiváló infrastruktúra: Az ingatlan közelében található általános iskola, könyvtár, játszótér, étterem, valamint buszmegálló, amelyek mind pár perc sétával elérhetők.
Csendes környék: az utcában nyugodt, családbarát környezet várja az új lakókat.
Ne hagyja ki ezt a remek lehetőséget!
Bővebb információért és megtekintésért hívjon bizalommal! Amennyiben hitelre van szüksége, bankfüggetlen kollégáim díjmentesen állnak rendelkezésére!
Eza z ingatlan egyedi konstrukcióban elérhető, további információk a honlapunkon: https://www.oc.hu/felezocsomag
Halásztelken található ez az ideális otthon mindazok számára, akik kisebb házat keresnek, de fontos számukra a külön lakrész, a tágas kert és a kiváló elhelyezkedés.
Ingatlan jellemzői:
Főépület: 45 m²-es nettó alapterületű téglaépítésű ház, cserép tetőfedéssel.
Helyiségek: konyha, nappali, hálószoba, fürdőszoba, kamra.
Betonfödém, a tető nem szigetelt.
Közművek: Teljes közművel ellátott (víz, villany, gáz, csatorna).
Különálló lakrész:
Alapterület: 20,9 m².
Közművek: Víz és villany bekötve.
Fűtés: Fatüzeléssel megoldott.
Tároló: A ház mellett található 13,3 m²-es tároló.
Telek: 576 m²-es, tágas, gondozható kert.
Kert és környezet:
A ház egy 576 m²-es kerttel rendelkezik, amely tágas teret biztosít kertészkedéshez, szabadidős tevékenységekhez vagy akár további fejlesztésekhez.
Az ingatlan összközműves, így minden modern kényelmi szolgáltatás rendelkezésre áll.
Elhelyezkedés:
Kiváló infrastruktúra: Az ingatlan közelében található általános iskola, könyvtár, játszótér, étterem, valamint buszmegálló, amelyek mind pár perc sétával elérhetők.
Csendes környék: az utcában nyugodt, családbarát környezet várja az új lakókat.
Ne hagyja ki ezt a remek lehetőséget!
Bővebb információért és megtekintésért hívjon bizalommal! Amennyiben hitelre van szüksége, bankfüggetlen kollégáim díjmentesen állnak rendelkezésére!
Eza z ingatlan egyedi konstrukcióban elérhető, további információk a honlapunkon: https://www.oc.hu/felezocsomag
Registration Number
H504504
Property Details
Sales
for sale
Legal Status
used
Character
house
Construction Method
brick
Net Size
45 m²
Gross Size
52 m²
Plot Size
576 m²
Size of Terrace / Balcony
7 m²
Heating
gas convector
Ceiling Height
270 cm
Orientation
South-East
Condition
Average
Condition of Facade
Average
Year of Construction
1980
Number of Bathrooms
1
Water
Available
Gas
Available
Electricity
Available
Sewer
Available
Storage
Independent
Distance to Waterfront
500 meters
Rooms
kitchen
7.8 m²
living room
11.62 m²
room
20.4 m²
bathroom-toilet
2.7 m²
pantry
2.43 m²

Joó Krisztina
Credit Expert