data_sheet.details.realestate.section.main.otthonstart_flag.label
For sale apartment,
H504465
Simontornya
26,500,000 Ft
69,000 €
- 85m²
- 3 Rooms
- 1st floor



















Tolna megye, Simontornyán tégla lakás eladó
Tolna vármegyében , Simontornyán, egy kedves Sió parti kisvárosban, első emeleti tégla lakás eladó.
A lakás csendes utcában, de mégis központhoz közel, fekszik
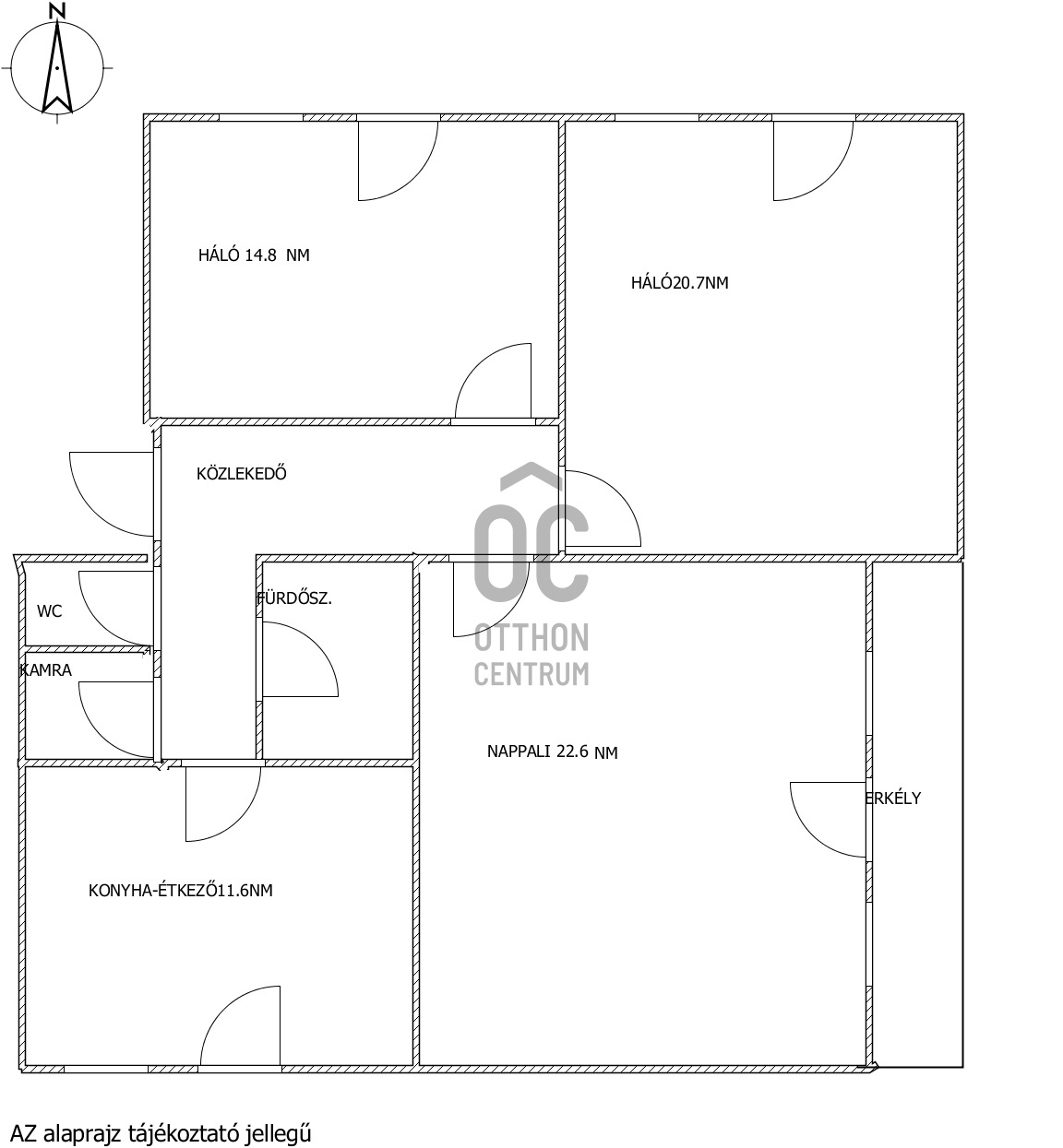
A 85nm-es, első emeleti lakásban van 3 nagy méretű szoba, étkező-konyha, kamra, fürdőszoba, külön wc, egy nagyobb méretű erkély. A lakáshoz garázs is tartozik, a társasház udvarán.
A lakás melegéről télen hőtárolós elektromoskályhák, illetve egy inverteres klíma felel, mely gondoskodik a nyári melegben a hűtésről is. A külső nyílászárók korszerű műanyagra vannak cserélve. A belső tér felújítást igényel, de igény esetén jelen állapotban is beköltözhető.
A társasház nagyobb kert közepén fekszik, kellemes zöld környezetben, árnyat adó fákkal.
Amennyiben felkeltettem érdeklődését, kérem hívjon a megadott számon.
Teljes körű pénzügyi megoldások ügyintézése díjmentesen.
Minden élethelyzetre végzünk pénzügyi elemzést - ha vásárolni szeretnél, segítünk, hogy ezt a legjobb feltételek mellett tedd; ha eladni szeretnéd ingatlanod, nézzük meg, hátha érdemes meglévő hiteledet átváltani.
Keress bizalommal, szakértők vagyunk.
A lakás csendes utcában, de mégis központhoz közel, fekszik
A 85nm-es, első emeleti lakásban van 3 nagy méretű szoba, étkező-konyha, kamra, fürdőszoba, külön wc, egy nagyobb méretű erkély. A lakáshoz garázs is tartozik, a társasház udvarán.
A lakás melegéről télen hőtárolós elektromoskályhák, illetve egy inverteres klíma felel, mely gondoskodik a nyári melegben a hűtésről is. A külső nyílászárók korszerű műanyagra vannak cserélve. A belső tér felújítást igényel, de igény esetén jelen állapotban is beköltözhető.
A társasház nagyobb kert közepén fekszik, kellemes zöld környezetben, árnyat adó fákkal.
Amennyiben felkeltettem érdeklődését, kérem hívjon a megadott számon.
Teljes körű pénzügyi megoldások ügyintézése díjmentesen.
Minden élethelyzetre végzünk pénzügyi elemzést - ha vásárolni szeretnél, segítünk, hogy ezt a legjobb feltételek mellett tedd; ha eladni szeretnéd ingatlanod, nézzük meg, hátha érdemes meglévő hiteledet átváltani.
Keress bizalommal, szakértők vagyunk.
Registration Number
H504465
Property Details
Sales
for sale
Legal Status
used
Character
apartment
Construction Method
brick
Net Size
85 m²
Gross Size
85 m²
Size of Terrace / Balcony
2.2 m²
Heating
electric stove
Ceiling Height
270 cm
Orientation
East
Staircase Type
enclosed staircase
Condition
Good
Condition of Facade
Good
Condition of Staircase
Good
Year of Construction
1980
Number of Bathrooms
1
Position
street-facing
Garage
Included in the price
Garage Spaces
1
Water
Available
Electricity
Available
Sewer
Available
Rooms
room
13.84 m²
room
20.24 m²
room
22.56 m²
open-plan kitchen and dining room
11.4 m²
entryway
5.73 m²
bathroom
3.8 m²
toilet
1.2 m²
pantry
1.4 m²
balcony
2.22 m²

Fábián Sándorné
Credit Expert