data_sheet.details.realestate.section.main.otthonstart_flag.label
For sale semi-detached house,
H504087
Szigethalom
84,400,000 Ft
218,000 €
- 84m²
- 5 Rooms
















Eladó energiatakarékos, modern otthon terasszal és kerttel – kényelmes családi élet nyugodt környezetben!
Olyan otthont keresel, ahol alacsony rezsi mellett élhetsz modern környezetben, saját kerttel és terasszal? Ez a 85 m²-es, nappali + 4 szobás, kiváló hangszigetelésű ikerház pontosan ezt kínálja – masszív vakolt falakkal, amelyek valóban önálló ház érzetét nyújtják!
Amit imádni fogsz benne:
Kiváló elosztás:
-4 szoba + nappali, külön fürdő és WC, kamra, – ideális családoknak.
Modern extrák:
– Antracit alumínium redőnyök, elektromos redőny a teraszajtón
– Szúnyoghálók mindenhol
– Padlófűtés a kényelemért minden évszakban
Energiatakarékosság és alacsony rezsi:
-15 cm grafitszigetelés, padlásszigetelés – télen-nyáron kellemes hőmérséklet, alacsony fűtési költségek.
Saját autóbeálló:
-Összesen 3 parkolóhely, így mindig kényelmesen meg tudsz állni.
Rendezett kert és 14 m²-es terasz:
-Tökéletes hely grillezéshez, pihenéshez vagy a gyerekeknek játszani.
Lokáció:
-Nyugodt, családbarát környezet, közel főbb utakhoz, iskolákhoz, boltokhoz, így minden könnyen elérhető, mégis csendes, zöldövezeti életet biztosít.
Ez az otthon ideális választás fiatal családoknak, nyugodt, kényelmes életet keresőknek, akik minőségi házban szeretnének élni alacsony rezsivel.
Hívj bizalommal a megtekintésért, ne maradj le róla!
Amennyiben hiotelre van szükséged, bankfüggetlen kollégáim díjmentesen állnak rendelkezésedre!
Ez az ingatlan egyedülálló konstrukcióban elérhető, részletekről tájékozódj a honlapunkon: https://www.oc.hu/felezocsomag
Amit imádni fogsz benne:
Kiváló elosztás:
-4 szoba + nappali, külön fürdő és WC, kamra, – ideális családoknak.
Modern extrák:
– Antracit alumínium redőnyök, elektromos redőny a teraszajtón
– Szúnyoghálók mindenhol
– Padlófűtés a kényelemért minden évszakban
Energiatakarékosság és alacsony rezsi:
-15 cm grafitszigetelés, padlásszigetelés – télen-nyáron kellemes hőmérséklet, alacsony fűtési költségek.
Saját autóbeálló:
-Összesen 3 parkolóhely, így mindig kényelmesen meg tudsz állni.
Rendezett kert és 14 m²-es terasz:
-Tökéletes hely grillezéshez, pihenéshez vagy a gyerekeknek játszani.
Lokáció:
-Nyugodt, családbarát környezet, közel főbb utakhoz, iskolákhoz, boltokhoz, így minden könnyen elérhető, mégis csendes, zöldövezeti életet biztosít.
Ez az otthon ideális választás fiatal családoknak, nyugodt, kényelmes életet keresőknek, akik minőségi házban szeretnének élni alacsony rezsivel.
Hívj bizalommal a megtekintésért, ne maradj le róla!
Amennyiben hiotelre van szükséged, bankfüggetlen kollégáim díjmentesen állnak rendelkezésedre!
Ez az ingatlan egyedülálló konstrukcióban elérhető, részletekről tájékozódj a honlapunkon: https://www.oc.hu/felezocsomag
Registration Number
H504087
Property Details
Sales
for sale
Legal Status
used
Character
house
Construction Method
brick
Net Size
84 m²
Gross Size
92 m²
Plot Size
330 m²
Size of Terrace / Balcony
16 m²
Heating
Gas circulator
Ceiling Height
290 cm
Orientation
North-West
View
Green view
Condition
Good
Condition of Facade
Good
Neighborhood
good transport, central
Year of Construction
2019
Number of Bathrooms
1
Water
Available
Gas
Available
Electricity
Available
Sewer
Available
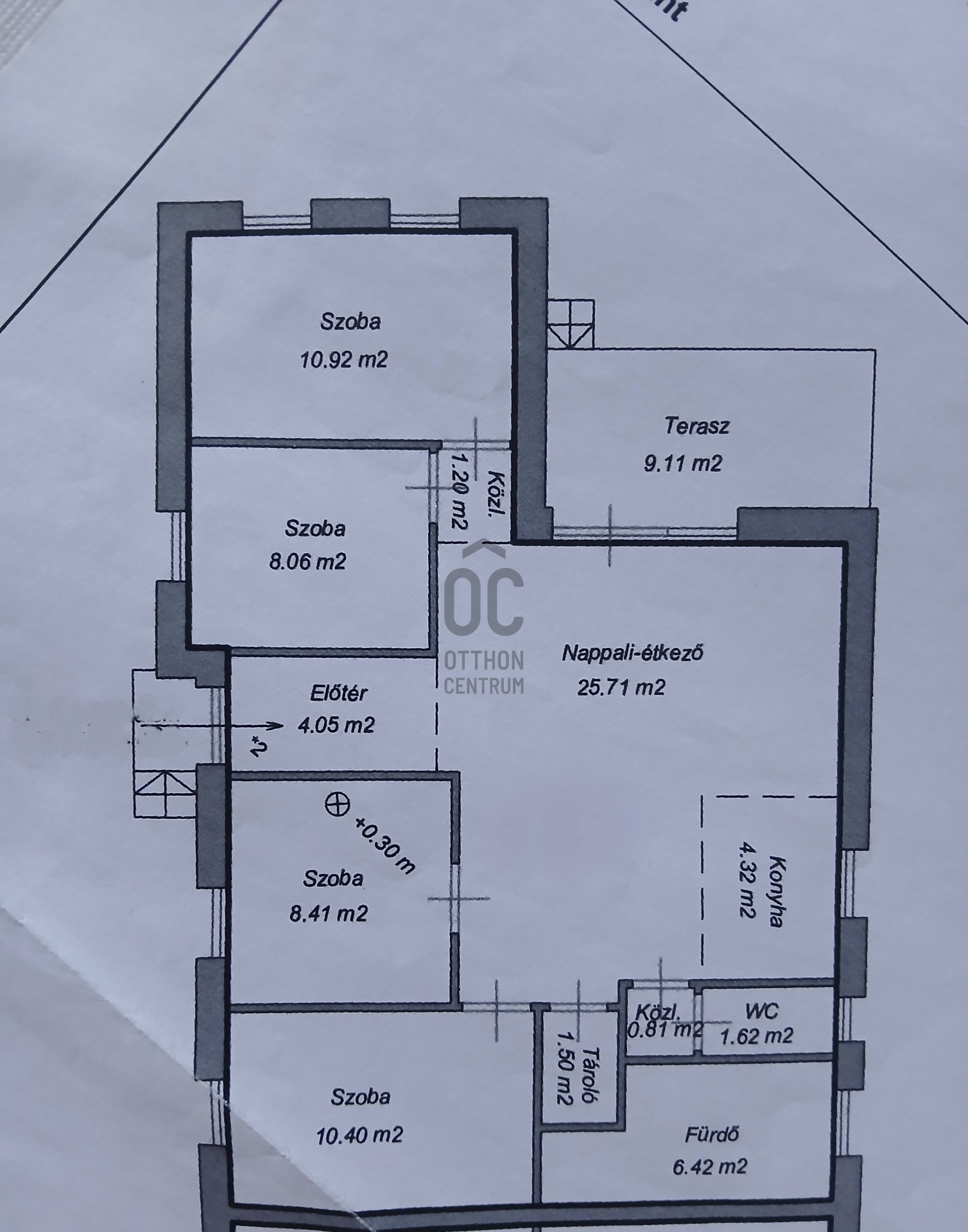
Rooms
room
10.92 m²
room
8.06 m²
room
10.4 m²
room
10.4 m²
bathroom
6.42 m²
toilet
1.62 m²
corridor
0.81 m²
storage
1.5 m²

Joó Krisztina
Credit Expert