data_sheet.details.realestate.section.main.otthonstart_flag.label
For sale family house,
H503565
Solymár
129,990,000 Ft
332,000 €
- 140m²
- 3 Rooms
















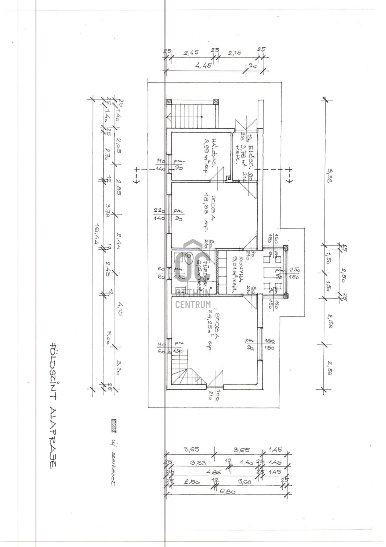
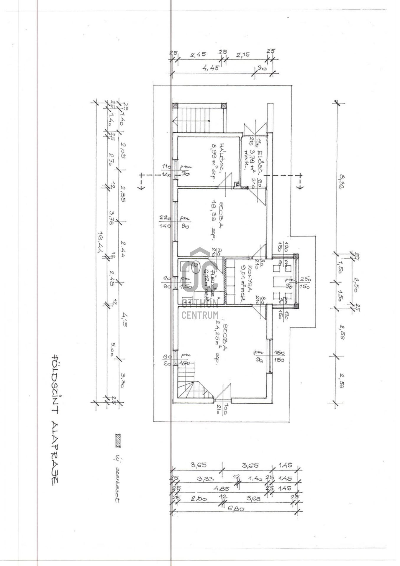
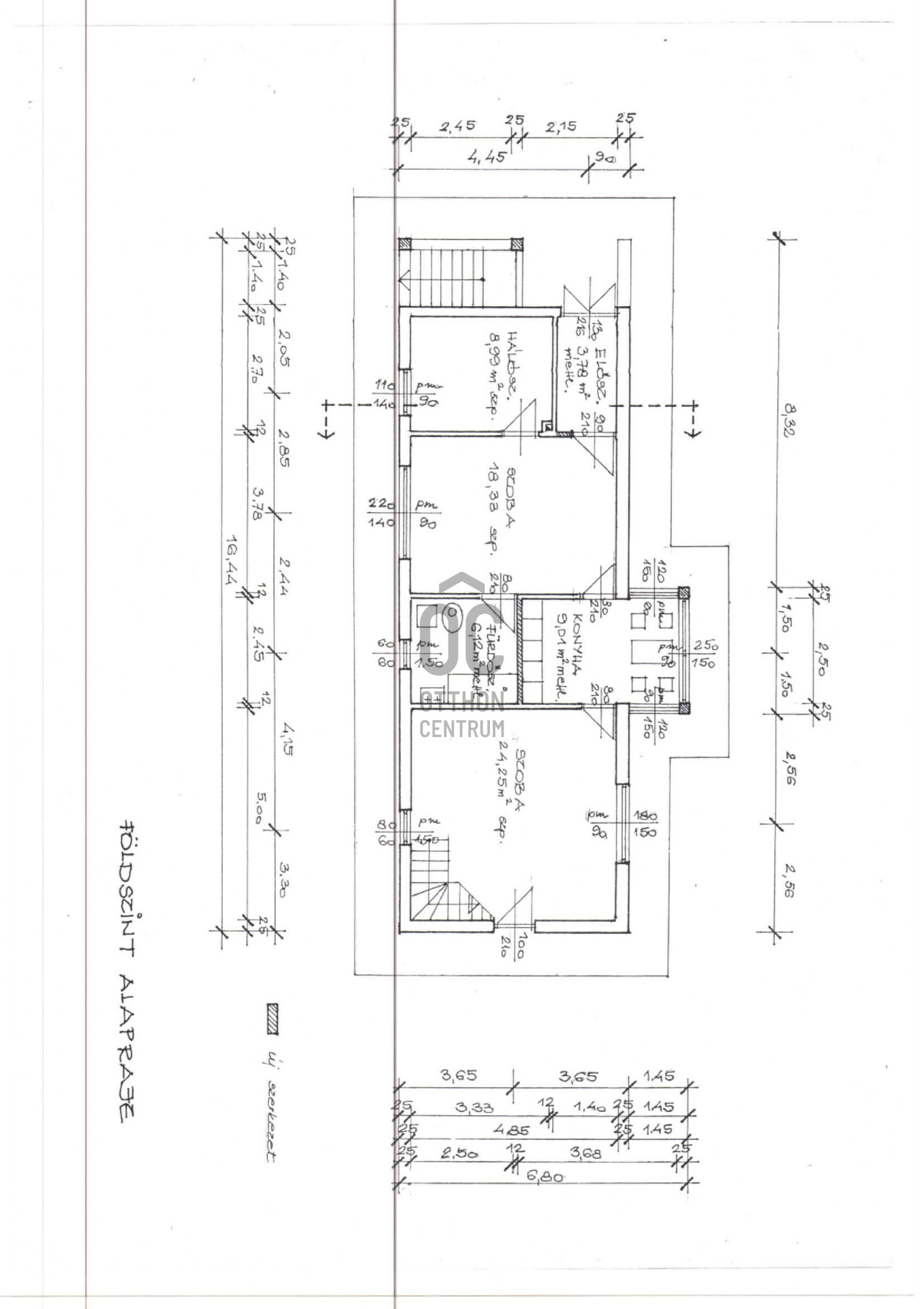
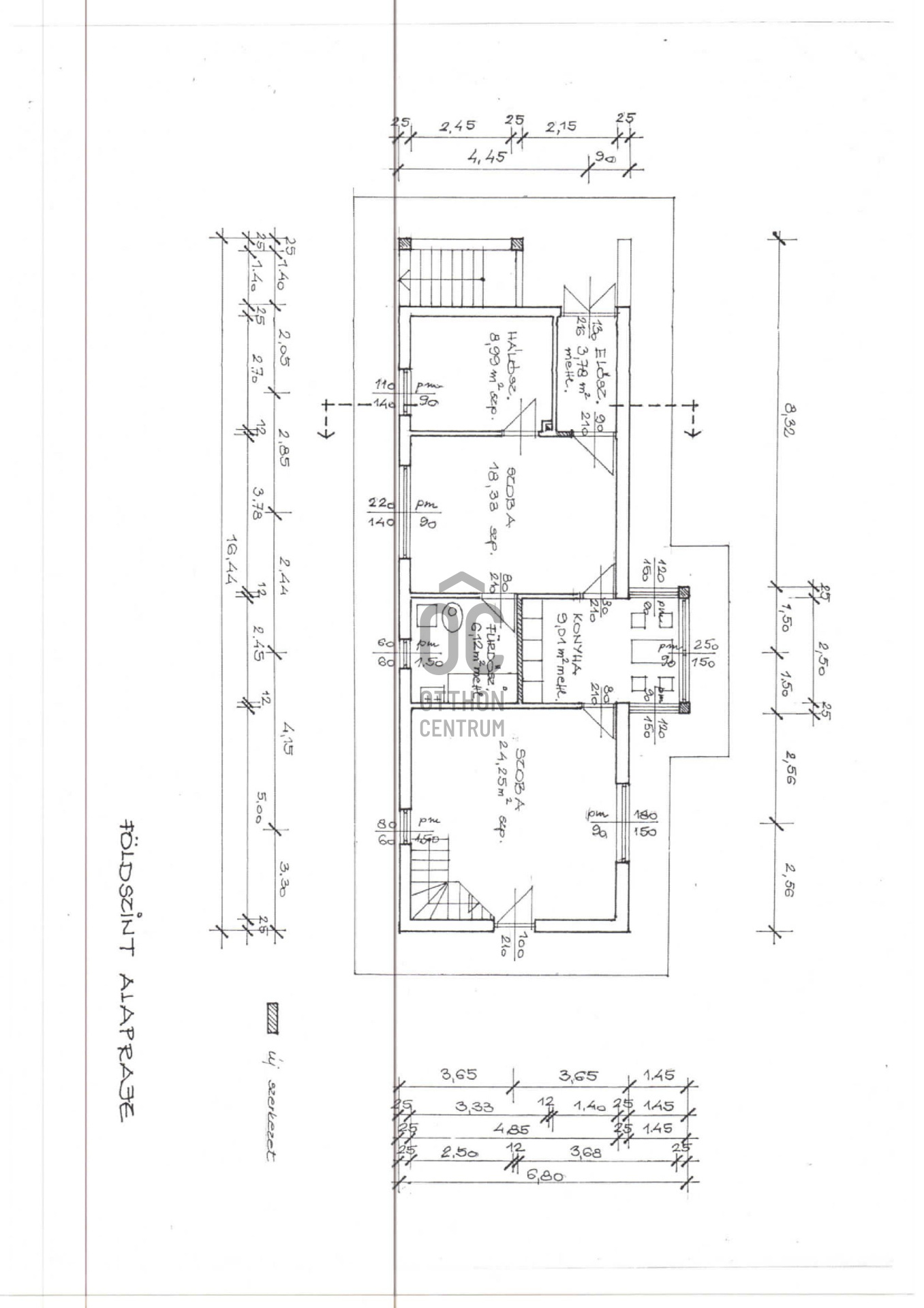
A II.ker határától mintegy 200-300 méterre, Solymár Kakukkhegy nagyon meghitt és hangulatos, aranyos kis zsákutcájában kínálunk megvételre, mintegy 140nm-es, 1602 nm-es telken, teljesen felújítandó családi házat. Az épület jó pár éve nem lakott, az állapota ennek megfelelő. A felújítást követően igen egyedi és attraktív lakóház valósítható meg. Földszint és tetőtér beosztású,közvetlen kert és teraszkapcsolattal. A földszint nagyon világos,körben nyílászárókkal ellátott nappali,konyha és étkező továbbá hálószoba és még egy fürdőszoba beosztású. Az emeleti szint egy légtérben került kialakításra. Minden közmű bevezetésre került. A teraszokról és maga a kertből is élvezhetjük az elbűvölő és magával ragadó elénk táruló panorámát. Az ingatlan a zsákutca legelején található, abszolút körbenapozott,teljesen mentes az áthaladó forgalomtól,nagyon kellemes adottságú,kimondottan zöldben elhelyezkedő,a természettel harmonizáló környezetben. A mintegy 40m széles telek gondozott és karbantartott, két utcafrontra nyílik, bokrokkal és fákkal tagolt ezáltal igen intim szférát biztosít az itt lakók számára. Az egész ingatlanról elképesztő és igen egyedi panoráma tárul elénk. Itt valóban harmonikus és kellemes, a zöld közelségét teljesen kihangsúlyozó az élet.
Registration Number
H503565
Property Details
Sales
for sale
Legal Status
used
Character
house
Construction Method
brick
Net Size
140 m²
Gross Size
150 m²
Plot Size
1,602 m²
Heating
Gas circulator
Ceiling Height
270 cm
Number of Levels Within the Property
2
Orientation
West
View
Green view
Condition
To be renovated
Condition of Facade
Below average
Basement
Independent
Neighborhood
quiet, good transport, green
Year of Construction
1950
Number of Bathrooms
1
Garage
Included in the price
Garage Spaces
2
Water
Available
Gas
Available
Electricity
Available
Sewer
Available
Rooms
bedroom
9 m²
entryway
3.78 m²
room
18.33 m²
kitchen
10 m²
bathroom
6.12 m²
room
24.25 m²
room
71.1 m²
cellar
9.05 m²

Pfeffer Kinga
Credit Expert