data_sheet.details.realestate.section.main.otthonstart_flag.label
For sale family house,
H503453
Mátraszentimre, Galyatető
70,900,000 Ft
183,000 €
- 129m²
- 5 Rooms






























































Fedezze fel álmai otthonát Galyatető szívében – 5 szobás, kényelmes ház várja Önt!
Képzeld el, hogy egy gyönyörű hegyvidéki környezetben, Mátra egyik legfelkapottabb részén Galyatetőn találod meg új otthonodat!
Ez a kiváló állapotú, téglából és kőből épült ház 129 négyzetméteren kínálja a kényelmet és a nyugalmat, amire egy családnak szüksége van.
Az ingatlan 5 tágas szobája és két fürdőszobája biztosítja, hogy mindenki megtalálja a saját kis világát.
Az ingatlan akár kétgenerációs család számára is tud működni mert a szuterén részen zavartalanul élheti mindennapjait a család egyik része!
Az amerikai konyhás nappali tökéletes helyszín a családi összejövetelekhez, ahol a közös étkezések és a baráti beszélgetések emlékezetessé válhatnak.
A házhoz tartozó 823 négyzetméteres telek rendezett kerttel rendelkezik, amely ideális egy zöld otthon megteremtéséhez.
A terasz, amely 8,3 négyzetméter nagyságú, nyugalmával és csendjével minden reggel egy csésze kávé mellett élvezheted a természet szépségeit.
Az ingatlan tehermentes, így azonnal költözhető, és kisállattal is bátran érkezhetsz!
2 garázzsal, nyitott beállóval, tárolóval, üvegházzal és egy fedett terasszal büszkélkedhet ez az ingatlan.
Szigeteléssel sem kell már bajlódni mert ezt is megcsinálták a jelenlegi tulajdonosok.
A rendezett kert szorgos kezek munkája amely most téged vár, hogy átvedd és a kreativitásod, természetet szeretetét kiékd itt.
A környék csendes és biztonságos, tökéletes választás családosok számára vagy akár ha befektetésnek szánod!
A hegyvidéki életstílus kedvelői számára számos túraútvonal és kirándulási lehetőség kínálkozik a közeli erdőkben és hegyekben, ahol a természet közelsége minden nap új élményeket tartogat.
Télen a sípark adta lehetőségeket is élvezheted ami elérhető közelségben van az ingatlantól.
A zöld környezet és a barátságos szomszédság garantálja, hogy itt igazán otthon érezheted magad. Ha felkeltette az érdeklődésedet ez a különleges ingatlan, ne habozz! Kérdéseiddel bátran kereshetsz, hiszen célom, hogy segítsek megtalálni álmaid otthonát. Az ingatlan piaca folyamatosan változik, ezért érdemes mielőbb lépni. Várunk szeretettel, hogy közösen felfedezhessük ezt a csodás hegyvidéki otthont!
Ez a kiváló állapotú, téglából és kőből épült ház 129 négyzetméteren kínálja a kényelmet és a nyugalmat, amire egy családnak szüksége van.
Az ingatlan 5 tágas szobája és két fürdőszobája biztosítja, hogy mindenki megtalálja a saját kis világát.
Az ingatlan akár kétgenerációs család számára is tud működni mert a szuterén részen zavartalanul élheti mindennapjait a család egyik része!
Az amerikai konyhás nappali tökéletes helyszín a családi összejövetelekhez, ahol a közös étkezések és a baráti beszélgetések emlékezetessé válhatnak.
A házhoz tartozó 823 négyzetméteres telek rendezett kerttel rendelkezik, amely ideális egy zöld otthon megteremtéséhez.
A terasz, amely 8,3 négyzetméter nagyságú, nyugalmával és csendjével minden reggel egy csésze kávé mellett élvezheted a természet szépségeit.
Az ingatlan tehermentes, így azonnal költözhető, és kisállattal is bátran érkezhetsz!
2 garázzsal, nyitott beállóval, tárolóval, üvegházzal és egy fedett terasszal büszkélkedhet ez az ingatlan.
Szigeteléssel sem kell már bajlódni mert ezt is megcsinálták a jelenlegi tulajdonosok.
A rendezett kert szorgos kezek munkája amely most téged vár, hogy átvedd és a kreativitásod, természetet szeretetét kiékd itt.
A környék csendes és biztonságos, tökéletes választás családosok számára vagy akár ha befektetésnek szánod!
A hegyvidéki életstílus kedvelői számára számos túraútvonal és kirándulási lehetőség kínálkozik a közeli erdőkben és hegyekben, ahol a természet közelsége minden nap új élményeket tartogat.
Télen a sípark adta lehetőségeket is élvezheted ami elérhető közelségben van az ingatlantól.
A zöld környezet és a barátságos szomszédság garantálja, hogy itt igazán otthon érezheted magad. Ha felkeltette az érdeklődésedet ez a különleges ingatlan, ne habozz! Kérdéseiddel bátran kereshetsz, hiszen célom, hogy segítsek megtalálni álmaid otthonát. Az ingatlan piaca folyamatosan változik, ezért érdemes mielőbb lépni. Várunk szeretettel, hogy közösen felfedezhessük ezt a csodás hegyvidéki otthont!
Registration Number
H503453
Property Details
Sales
for sale
Legal Status
used
Character
house
Construction Method
brick
Net Size
129 m²
Gross Size
129.3 m²
Plot Size
823 m²
Size of Terrace / Balcony
8.3 m²
Heating
Gas circulator
Ceiling Height
248 cm
Orientation
South
Condition
Excellent
Condition of Facade
Excellent
Neighborhood
green
Year of Construction
1960
Number of Bathrooms
2
Garage
Included in the price
Number of Covered Parking Spots
1
Water
Available
Gas
Available
Electricity
Available
Sewer
Available
Storage
Independent
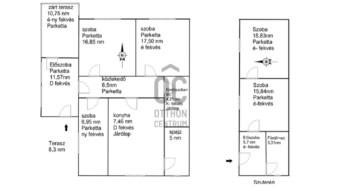
Rooms
entryway
11.57 m²
terrace
10.75 m²
corridor
8.5 m²
room
16.85 m²
room
17.5 m²
bathroom-toilet
1.98 m²
other room
4.04 m²
open-plan kitchen and dining room
7.46 m²
room
6.95 m²
corridor
4.7 m²
bathroom-toilet
3.31 m²
room
15.84 m²
room
15.83 m²

Pampuk Rita
Credit Expert