309,000,000 Ft
792,000 €
- 189m²
- 9 Rooms
- ground floor










































Siófok Aranypart 5 önálló apartmanlakás – az ideális befektetés!
Fektessen be a jövőbe egy exkluzív, prémium kivitelezésű ingatlanba, amely Siófok legfelkapottabb részén, az Aranyparton található!
Ez az összesen 189 nm alapterületű, 2 külön álló épületből álló jó állapotú apartmanegyüttes tökéletes választás lehet azok számára, akik nem csupán otthont, hanem egy jövedelmező befektetési lehetőséget keresnek.
Az ingatlan összesen 9 szobával és 6 fürdőszobával rendelkezik, így ideális lehet családok, baráti társaságok vagy akár panzió üzemeltetése céljából is. A lakás minimalista kialakítása és modern beépített bútorai, valamint LED hangulatvilágítása egyedi atmoszférát teremt, amely mindenki számára vonzó.
A tágas nappali tökéletes helyszín a családi összejövetelekhez, míg a kertkapcsolatos lakás lehetőséget ad a szabadban való pihenésre. A motoros redőnyök és a klímaberendezés pedig gondoskodnak a maximális kényelemről, függetlenül az évszaktól. Fűtésről a gázcirkó valamint a klíma gondoskodik.
A jakuzzi és a medence tovább növeli az ingatlan vonzerejét, így a szabadidős tevékenységek igazán élvezetesek lehetnek. A környék ellátottsága kiváló, hiszen a közlekedési csomópont közelsége miatt a város többi része könnyen és gyorsan megközelíthető. A kitűnő közlekedési lehetőségeknek köszönhetően a város szívében található üzletek, éttermek és szolgáltatások mind csupán pár percnyi távolságra helyezkednek el.
Ez a tehermentes ingatlan egyedülálló lehetőséget kínál a befektetők számára, hiszen a medencés családi ház központi elhelyezkedése és a környék népszerűsége garantálja a folyamatos érdeklődést. A nagy belmagasság pedig nemcsak esztétikai élményt nyújt, hanem a légies, tágas érzést is fokozza.
Amennyiben felkeltette érdeklődését ez a különleges ingatlan, ne habozzon, hiszen az ilyen lehetőségek gyorsan elkelnek. Kérdéseivel bizalommal kereshet, örömmel állok rendelkezésére, hogy segítsek Önnek a legjobb döntés meghozatalában!
Ez az összesen 189 nm alapterületű, 2 külön álló épületből álló jó állapotú apartmanegyüttes tökéletes választás lehet azok számára, akik nem csupán otthont, hanem egy jövedelmező befektetési lehetőséget keresnek.
Az ingatlan összesen 9 szobával és 6 fürdőszobával rendelkezik, így ideális lehet családok, baráti társaságok vagy akár panzió üzemeltetése céljából is. A lakás minimalista kialakítása és modern beépített bútorai, valamint LED hangulatvilágítása egyedi atmoszférát teremt, amely mindenki számára vonzó.
A tágas nappali tökéletes helyszín a családi összejövetelekhez, míg a kertkapcsolatos lakás lehetőséget ad a szabadban való pihenésre. A motoros redőnyök és a klímaberendezés pedig gondoskodnak a maximális kényelemről, függetlenül az évszaktól. Fűtésről a gázcirkó valamint a klíma gondoskodik.
A jakuzzi és a medence tovább növeli az ingatlan vonzerejét, így a szabadidős tevékenységek igazán élvezetesek lehetnek. A környék ellátottsága kiváló, hiszen a közlekedési csomópont közelsége miatt a város többi része könnyen és gyorsan megközelíthető. A kitűnő közlekedési lehetőségeknek köszönhetően a város szívében található üzletek, éttermek és szolgáltatások mind csupán pár percnyi távolságra helyezkednek el.
Ez a tehermentes ingatlan egyedülálló lehetőséget kínál a befektetők számára, hiszen a medencés családi ház központi elhelyezkedése és a környék népszerűsége garantálja a folyamatos érdeklődést. A nagy belmagasság pedig nemcsak esztétikai élményt nyújt, hanem a légies, tágas érzést is fokozza.
Amennyiben felkeltette érdeklődését ez a különleges ingatlan, ne habozzon, hiszen az ilyen lehetőségek gyorsan elkelnek. Kérdéseivel bizalommal kereshet, örömmel állok rendelkezésére, hogy segítsek Önnek a legjobb döntés meghozatalában!
Registration Number
H502610
Property Details
Sales
for sale
Legal Status
used
Character
apartment
Construction Method
brick
Net Size
189 m²
Gross Size
190 m²
Heating
Gas circulator
Ceiling Height
290 cm
Number of Levels Within the Property
1
Orientation
South-West
Staircase Type
none
Condition
Good
Condition of Facade
Good
Condition of Staircase
Good
Neighborhood
quiet, good transport, green
Year of Construction
1999
Number of Bathrooms
6
Position
courtyard-facing
Water
Available
Gas
Available
Electricity
Available
Sewer
Available
Connected to Garden
yes
Storage
Independent
Distance to Waterfront
200 meters
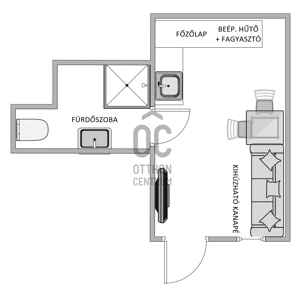
Rooms
entryway
4 m²
open-plan kitchen and living room
26 m²
bedroom
13 m²
bedroom
12 m²
bedroom
16 m²
bedroom
12 m²
bedroom
12 m²
bedroom
12 m²
bedroom
12 m²
bedroom
12 m²
bathroom-toilet
4 m²
bathroom-toilet
6 m²
bathroom-toilet
4 m²
utility room
6 m²
bathroom-toilet
4 m²