399,000,000 Ft
1,019,000 €
- 338m²
- 6 Rooms























Mediterranean lifestyle near Hűvösvölgy – the atmosphere of a Spanish villa in Buda.
Imagine waking up every morning in an ANDALUSIAN VILLA – the sound of birds chirping, sunshine, FRESH COFFEE, or a glass of CHILLED CAVA on your own MEDITERRANEAN TERRACE. Now this dream can come true. This net 340 m², gross 400 m², 6-ROOM VILLA is situated on a nearly 1000 m² landscaped plot, close to Hűvösvölgy, in an exclusive, quiet neighborhood. The Mediterranean romance is evident in every detail: ARCADIAN TERRACES, rustic stone cladding, NATURAL WOOD, WARM COLORS, and a RICH FLORA. The garden features a GARDEN POND, Mediterranean plants, and a SEPARATE, COVERED TERRACE – an ideal venue for family and friends gatherings. The house's amenities leave nothing to be desired: Heated indoor pool, Sauna, Wine cellar, Double garage, Imposing panorama of the surrounding mountains. This house is not just a residence – it's a lifestyle. A slice of Spain amidst the Buda hills. Your dream home is just an arm's reach away.
Registration Number
H502596
Property Details
Sales
for sale
Legal Status
used
Character
house
Construction Method
brick
Net Size
338 m²
Gross Size
390 m²
Plot Size
997 m²
Heating
Gas circulator
Ceiling Height
260 cm
Number of Levels Within the Property
4
Orientation
North-East
Condition
Good
Condition of Facade
Excellent
Year of Construction
2006
Number of Bathrooms
3
Water
Available
Gas
Available
Electricity
Available
Sewer
Available
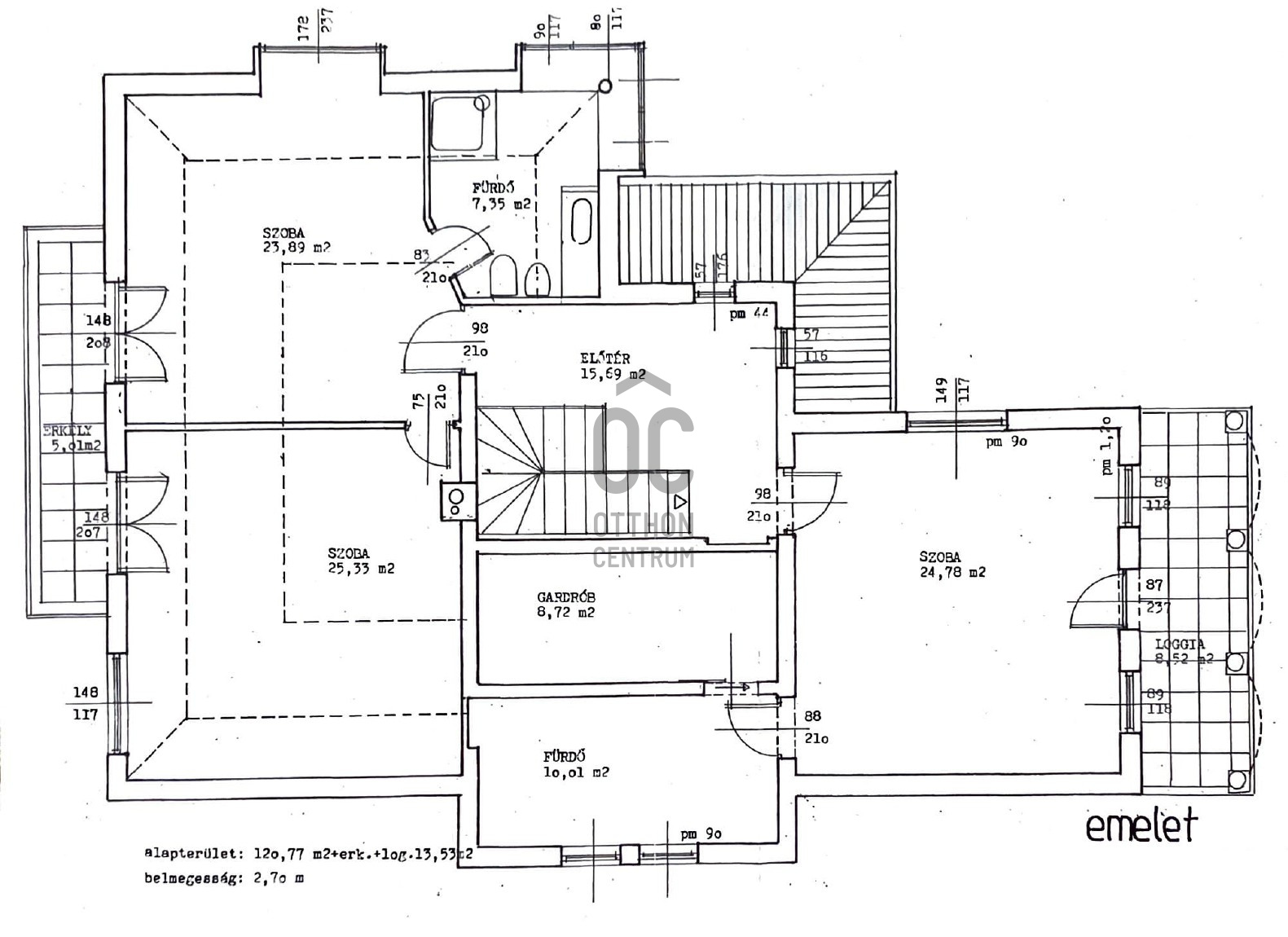
Rooms
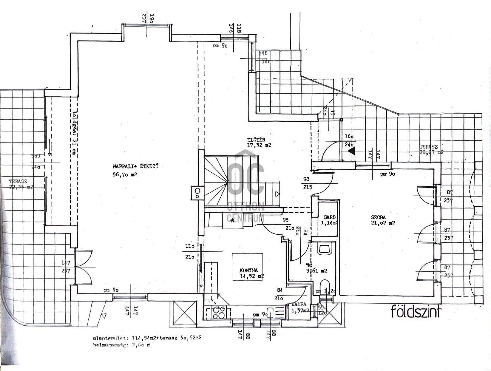
open-plan living and dining room
57 m²
kitchen
15 m²
study
21 m²
wardrobe
1 m²
toilet
4 m²
pantry
1 m²
entryway
17 m²
bedroom
24 m²
bedroom
25 m²
bedroom
25 m²
wardrobe
9 m²
bathroom-toilet
10 m²
bathroom-toilet
7 m²
entryway
16 m²
room
13 m²
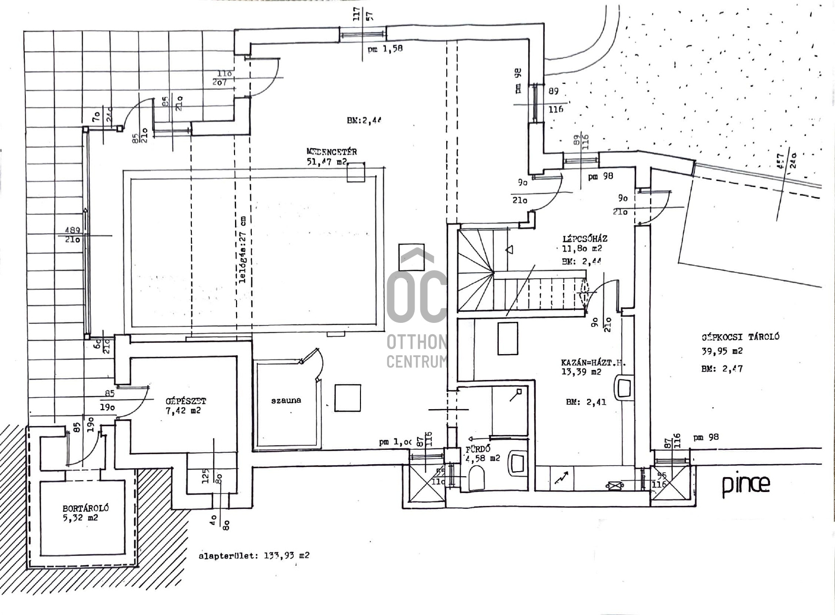
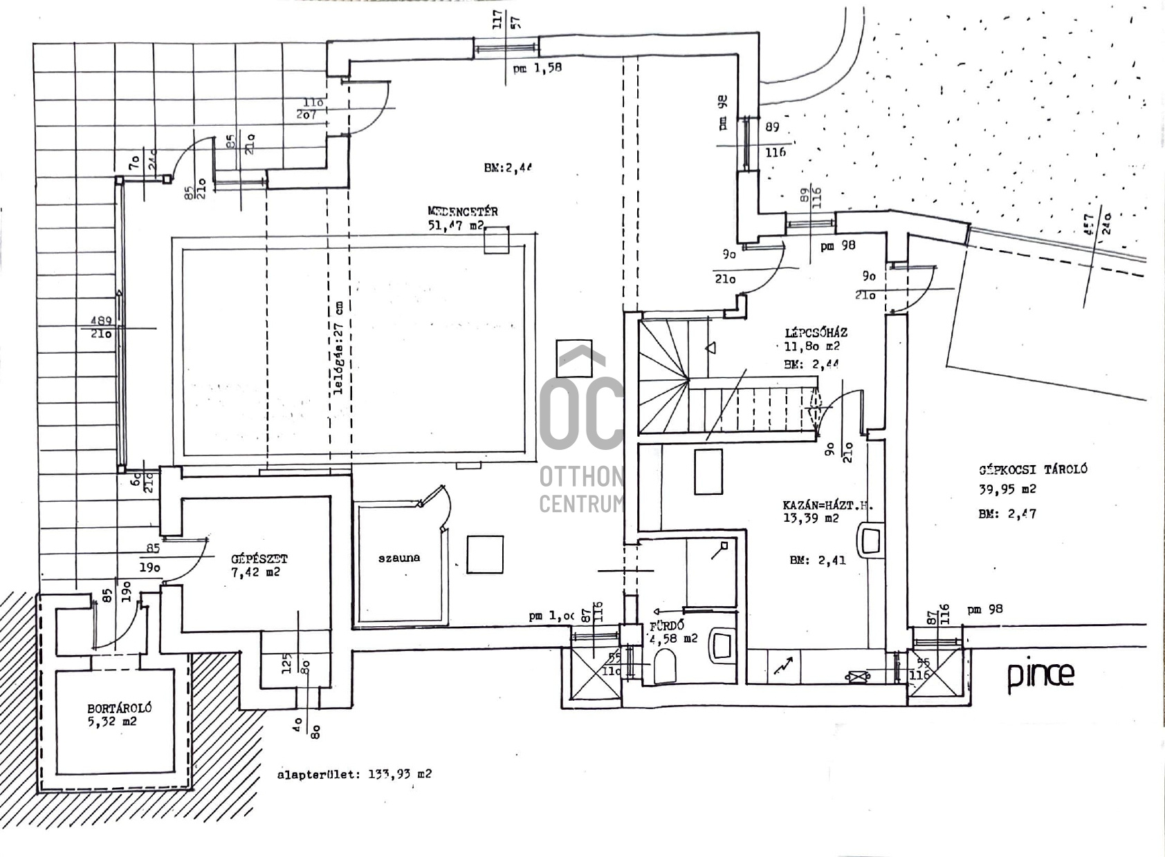
pool area
51 m²
staircase
12 m²
boiler room
13 m²
utility room
7 m²
bathroom
5 m²
garage
40 m²
wine cellar
5 m²

Örvössy Tamás
Credit Expert