data_sheet.details.realestate.section.main.otthonstart_flag.label
For sale family house,
H501680
Vízvár
7,000,000 Ft
18,000 €
- 100m²
- 3 Rooms










A 3-room family house for sale in Vízvár, in need of renovation.
Discover this exceptional opportunity in Somogy County, in Vízvár, where a 100 sqm house in need of renovation awaits its new owner. The property's location is an ideal choice for those who wish to live in a quiet, peaceful environment while being surrounded by nature and the charm of rural life every day. The house features three spacious rooms, offering a great opportunity to design your home according to your own taste. The plot size is 2640 sqm, providing ample space for leisure activities, gardening, or even creating a small orchard. The house is heated by a tiled stove, which not only provides pleasant warmth during the winter months but is also part of the traditional rural lifestyle. During the renovation, you will have the opportunity to transform the property according to the latest trends and your own ideas, allowing you to create a unique home. The area is quiet and safe, making it ideal for families and individuals seeking tranquility. Vízvár also offers favorable transportation options, as the town center is easily accessible, where shops, restaurants, and other services await. Local bus services are available, providing quick and comfortable transport to surrounding settlements, making daily commuting hassle-free. The nearby forests and meadows are perfect for hiking, running, or simply enjoying nature. Vízvár's friendly community and the kindness of the local residents enhance the experience of living here. This property can be not only a new home but also a great investment opportunity, as significant value appreciation can be achieved during the renovation process. Please do not hesitate to reach out if you have any questions about the property or the area. You can trust us to help you find your dream home or investment. The real estate market is constantly changing, so it is worth taking steps to seize opportunities.
Registration Number
H501680
Property Details
Sales
for sale
Legal Status
used
Character
house
Construction Method
brick
Net Size
100 m²
Gross Size
110 m²
Plot Size
2,640 m²
Heating
tile stove (coal)
Ceiling Height
265 cm
Orientation
South
Condition
To be renovated
Condition of Facade
Below average
Basement
Independent
Neighborhood
quiet, good transport, green, central
Year of Construction
1950
Number of Bathrooms
1
Water
Available
Gas
On the street
Electricity
Available
Sewer
Available
Storage
Independent
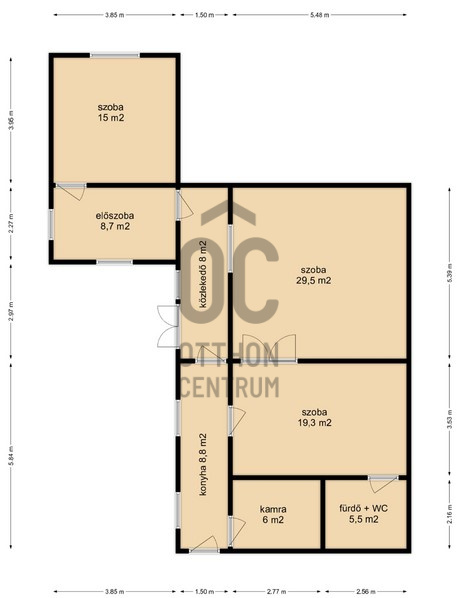
Rooms
living room
29.9 m²
room
19.3 m²
room
15 m²
kitchen
8.8 m²
bathroom-toilet
5.5 m²
pantry
6 m²
entryway
8.7 m²
corridor
8 m²

Horváth Szabina
Credit Expert