168,000,000 Ft
446,000 €
- 66m²
- 2 Rooms
- 6th floor
LOFT ASTORIA!!
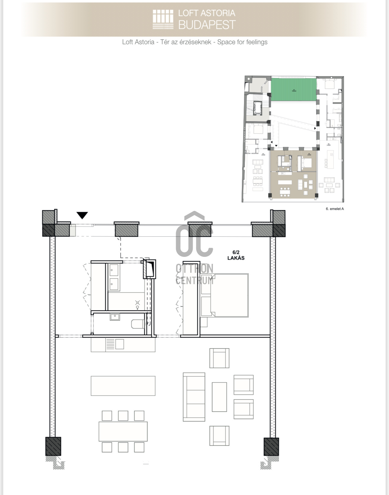
Eladó Budapest belvárosában, az V. kerületben, egy műemlék épületben, a Loft Astoria 6. emeletén található, 70 m2-es, 2 szobás lakás. A nappali a Múzeum körútra néz, a padlótól a mennyezetig érő több mint 5 m széles ablakkal.
Az épület 2018-ban teljesen új belsőt kapott, a tervezők 31 egyedi stílusú loft lakást alakítottak ki benne.
Összességében verhetetlen lokáció, tágas, világos terek és nagy belmagasságok, industrial stílus jellemzi a lakásokat.
ALAPTERÜLET
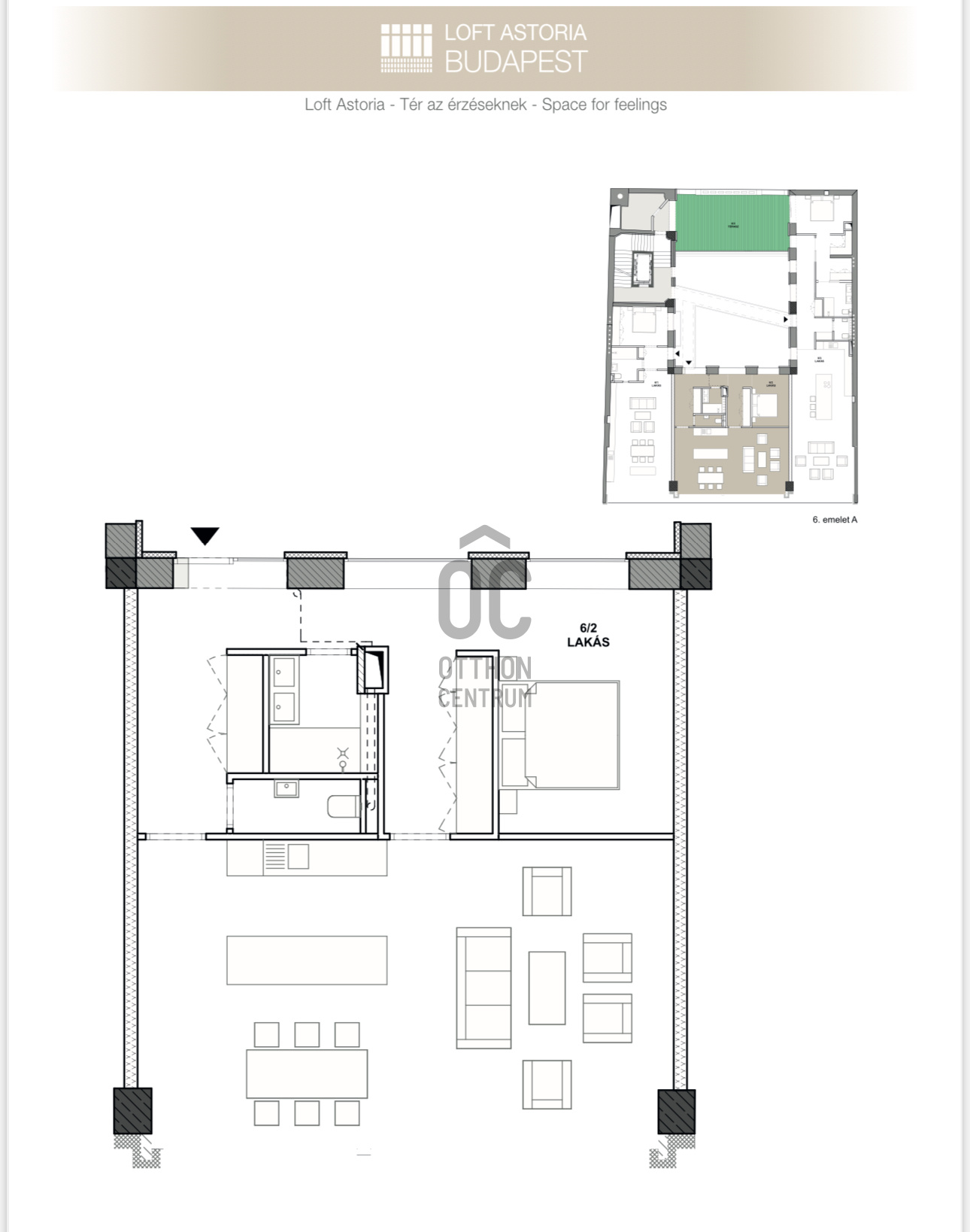
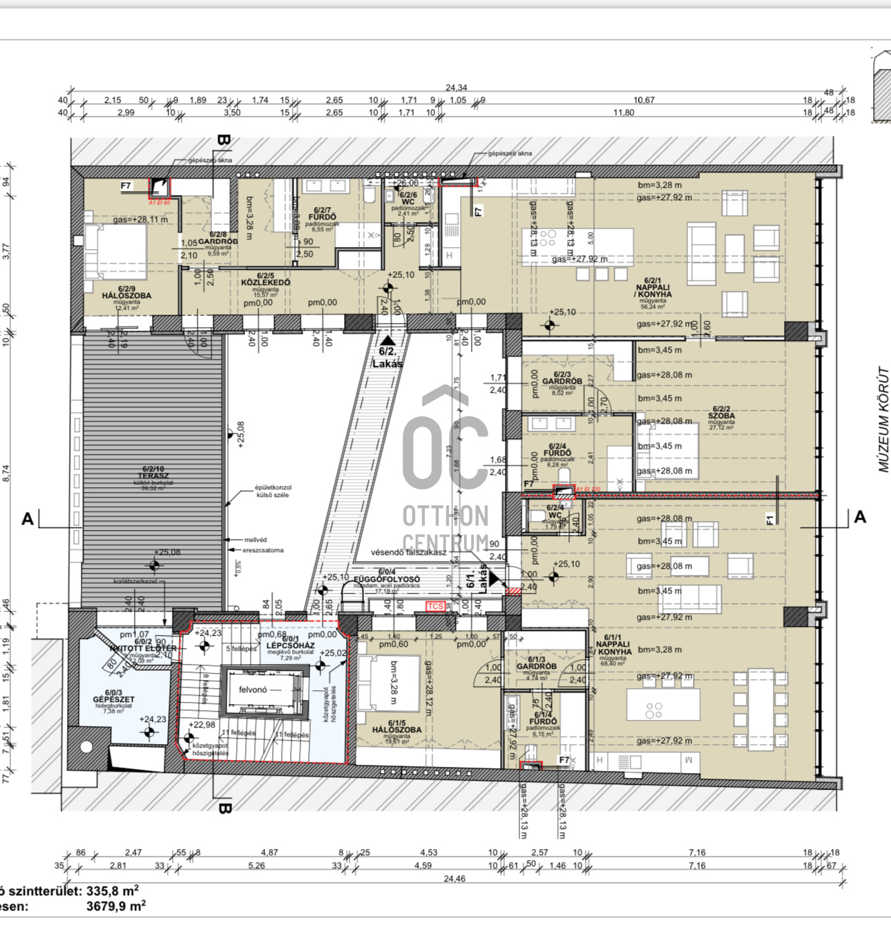
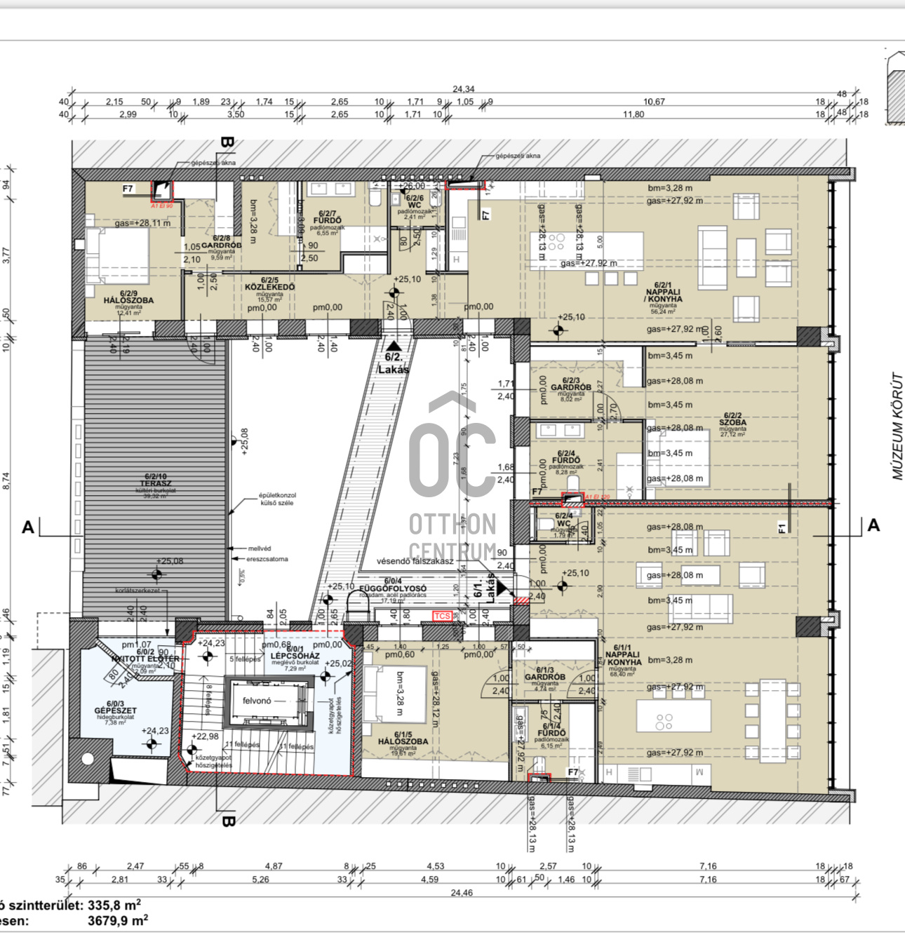
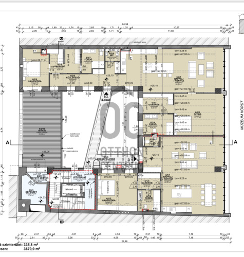
A lakás alapterülete 70 m2. Beosztása: előszoba, konyha-étkező-nappali egy légtér, hálószoba, fürdőszoba.
MŰSZAKI JELLEMZŐK
A ház adottságaiból fakadóan a lelógó betongerendák, a belső acélszerkezetek, a belmagasság mind támogatják a loft hangulatot, ami talán az utolsó ilyen hiteles épület a belvárosban.
A projekt különlegessége, hogy a belső udvarban acél hidak helyettesítik a korábbi körfolyosókat, és egy komoly acélváz tartja a ház hátsó traktusában levő épületszárny egészét. Természetesen a házban lift is működik.
Minden lakásban fan-coil rendszer biztosítja a fűtést és hűtést, padlófűtéssel kiegészítve.
ELHELYEZKEDÉS
Az épület Budapest központjában az Astoria metró megállónál található a Múzeum körúton a Hotel Astoria mellett. Itt közlekedik a 47, 49-es villamos, a 7, 107,110, 112-es, stb. busz és
séta távolságra van a Deák Ferenc tér a város legnagyobb tömegközlekedési csomópontja, három metróvonallal (M1, M2, M3). Közelben van két egyetem (ELTE, Corvinus Egyetem), a Váci utca és a Fővám téri Nagycsarnok.
VÉTELÁR: 168 MFt (2,4 MFt/m2)
A hatodik emeleten található további két lakás jelenleg még szintén eladó, és a fenti lakással egybenyitható (összesen 275 m2). Így, egy kb. 20 m hosszú egybefüggő üvegfelületen keresztül tekinthetünk a városra a hat emeletnyi magasságból. Ezen az emeleten több lakás nincs.
Egyedi igényekre szabott lakáshitelekkel állunk rendelkezésére. Bankfüggetlen hitelcentrumunk az országban elérhető összes bank és hitelintézet ajánlatát versenyezteti az Ön számára díjmentesen. Munkatársaink nagy szakmai tapasztalattal várják Önt az előre egyeztetett időpontban akár a normál munkaidő után is. Bővebb információért és a megtekintéssel kapcsolatban hívjon bizalommal!
Az épület 2018-ban teljesen új belsőt kapott, a tervezők 31 egyedi stílusú loft lakást alakítottak ki benne.
Összességében verhetetlen lokáció, tágas, világos terek és nagy belmagasságok, industrial stílus jellemzi a lakásokat.
ALAPTERÜLET
A lakás alapterülete 70 m2. Beosztása: előszoba, konyha-étkező-nappali egy légtér, hálószoba, fürdőszoba.
MŰSZAKI JELLEMZŐK
A ház adottságaiból fakadóan a lelógó betongerendák, a belső acélszerkezetek, a belmagasság mind támogatják a loft hangulatot, ami talán az utolsó ilyen hiteles épület a belvárosban.
A projekt különlegessége, hogy a belső udvarban acél hidak helyettesítik a korábbi körfolyosókat, és egy komoly acélváz tartja a ház hátsó traktusában levő épületszárny egészét. Természetesen a házban lift is működik.
Minden lakásban fan-coil rendszer biztosítja a fűtést és hűtést, padlófűtéssel kiegészítve.
ELHELYEZKEDÉS
Az épület Budapest központjában az Astoria metró megállónál található a Múzeum körúton a Hotel Astoria mellett. Itt közlekedik a 47, 49-es villamos, a 7, 107,110, 112-es, stb. busz és
séta távolságra van a Deák Ferenc tér a város legnagyobb tömegközlekedési csomópontja, három metróvonallal (M1, M2, M3). Közelben van két egyetem (ELTE, Corvinus Egyetem), a Váci utca és a Fővám téri Nagycsarnok.
VÉTELÁR: 168 MFt (2,4 MFt/m2)
A hatodik emeleten található további két lakás jelenleg még szintén eladó, és a fenti lakással egybenyitható (összesen 275 m2). Így, egy kb. 20 m hosszú egybefüggő üvegfelületen keresztül tekinthetünk a városra a hat emeletnyi magasságból. Ezen az emeleten több lakás nincs.
Egyedi igényekre szabott lakáshitelekkel állunk rendelkezésére. Bankfüggetlen hitelcentrumunk az országban elérhető összes bank és hitelintézet ajánlatát versenyezteti az Ön számára díjmentesen. Munkatársaink nagy szakmai tapasztalattal várják Önt az előre egyeztetett időpontban akár a normál munkaidő után is. Bővebb információért és a megtekintéssel kapcsolatban hívjon bizalommal!
Registration Number
H499642
Property Details
Sales
for sale
Legal Status
used
Character
apartment
Construction Method
brick
Net Size
66 m²
Gross Size
70 m²
Heating
mixed fan-coil
Ceiling Height
400 cm
Orientation
East
View
city view
Staircase Type
enclosed staircase
Condition
Excellent
Condition of Facade
Excellent
Condition of Staircase
Excellent
Neighborhood
quiet, good transport, central
Year of Construction
2018
Number of Bathrooms
2
Position
street-facing
Common Costs
30000
Water
Available
Gas
Available
Electricity
Available
Sewer
Available
Elevator
available
Rooms
balcony
41 m²
bedroom
12 m²
open-plan kitchen and living room
50 m²
bedroom
20 m²