72,900,000 Ft
186,000 €
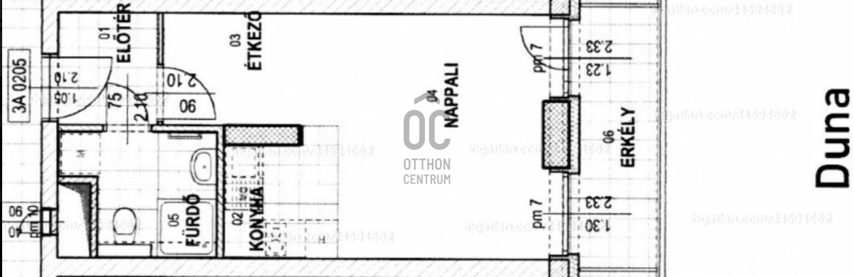
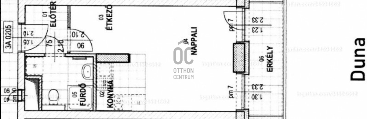
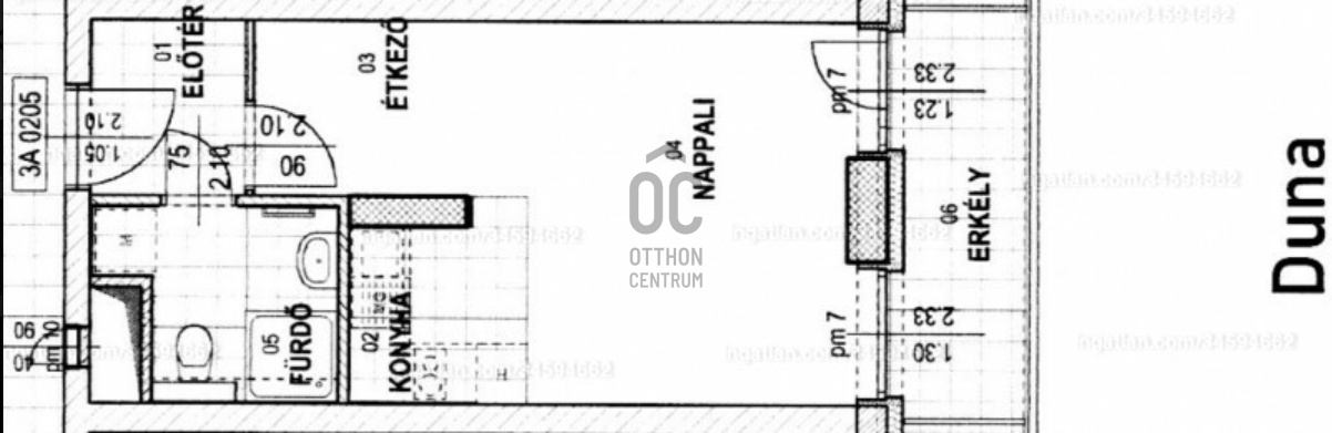
- 30m²
- 1 Rooms
- 2nd floor










Fedezze fel álmai otthonát Budapest szívében – 1 szobás lakás Filatorigáton várja Önt!
Az első lakásvásárlók számára ideális választásként kínáljuk ezt a modern, 30 nm alapterületű, használt lakást Budapest 03. kerületében, Filatorigáton. Az ingatlan kiváló állapotban várja új tulajdonosát, a prémium kivitelezés és a minimalista kialakítás tökéletes harmóniát teremt a tágas nappali és a konyhaszigetes amerikai konyha között. Az ingatlanhoz tartozó 5 nm-es erkélyről lenyűgöző folyóra néző kilátás tárul elénk, amely nemcsak a mindennapi pihenést, hanem a baráti összejöveteleket is felejthetetlenné varázsolja. A lakás hőszivattyús fűtésének köszönhetően a fenntartási költségek alacsonyak, ami különösen vonzó lehet az első lakásvásárlók számára. A tehermentes ingatlan biztonsági ajtóval és videókaputelefonnal rendelkezik, így Ön és családja maximális biztonságban érezheti magát. Az okos otthon rendszer pedig lehetővé teszi, hogy a legmodernebb technológiákat kihasználva, kényelmesen irányíthassa otthonát. A környék kitűnő közlekedési lehetőségekkel rendelkezik, hiszen a közlekedési csomópont közelében található, így a város bármely pontja könnyen elérhető. Továbbá, a rendezett kert és a vízparti ingatlan közelsége ideális választássá teszi ezt a lakást azok számára, akik a természet közelségét keresik, ugyanakkor a városi élet nyújtotta lehetőségeket sem szeretnék nélkülözni. Filatorigát egy felkapott környék, ahol a csendes, biztonságos utcák és a modern lakóparkok egyedülálló élményt nyújtanak. A környéken számos szolgáltatás, bolt és étterem található, így a mindennapi élethez szükséges minden könnyen elérhető. Az ingatlan központi elhelyezkedése lehetővé teszi, hogy a város szívében élvezze a nyüzsgést, miközben otthona a pihenés és a nyugalom szigete marad. Amennyiben felkeltette érdeklődését ez az exkluzív lakás, ne habozzon, keressen bizalommal! Szívesen válaszolok kérdéseire, és segítek Önnek megtalálni álmai otthonát. Az ingatlan iránti érdeklődés nagy, így érdemes mihamarabb lépni, hogy ne maradjon le erről a kivételes lehetőségről!
Registration Number
H497711
Property Details
Sales
for sale
Legal Status
used
Character
apartment
Construction Method
brick
Net Size
30 m²
Gross Size
30 m²
Size of Terrace / Balcony
5 m²
Heating
heat pump
Ceiling Height
265 cm
Orientation
South-East
Staircase Type
enclosed staircase
Condition
Excellent
Condition of Facade
Excellent
Condition of Staircase
Excellent
Year of Construction
2022
Number of Bathrooms
1
Position
garden-facing
Water
Available
Gas
Available
Electricity
Available
Sewer
Available
Elevator
available
Rooms
open-plan kitchen and living room
20 m²
bathroom-toilet
6 m²

Németh István
Credit Expert