264,152,800 Ft
680,000 €
- 170m²
- 5 Rooms
- 3rd floor
 
            
                                                             
            
                                                             
            
                                                             
            
                                                             
            
                                                             
            
                                                             
            
                                                             
            
                                                             
            
                                                             
            
                                                             
            
                                                             
            
                                                             
            
                                                             
            
                                                             
            
                                                             
            
                                                             
            
                                                            Discover your dream home in the heart of South Downtown – a 5-room apartment awaits you!
In the 5th district, in the Váci street close to the Fővám square, 
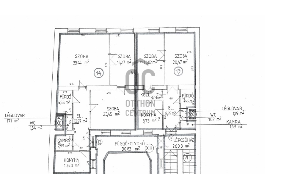
in a well-maintained building a 170 sqm apartment for sale on the top, 3rd floor.
The entire street front of the 3rd floor of the building belongs to the apartment with 5 windows.
It consists of 2 apartments of 64 m2 and 106 m2.
The 106 m2 apartment is in average condition, while the 64 m2 apartment is in need of renovation.
Heating is provided by gas cirko.
There is no elevator in the building.
I recommend it for residential use, as an office, a clinic, or as an investment.
                    in a well-maintained building a 170 sqm apartment for sale on the top, 3rd floor.
The entire street front of the 3rd floor of the building belongs to the apartment with 5 windows.
It consists of 2 apartments of 64 m2 and 106 m2.
The 106 m2 apartment is in average condition, while the 64 m2 apartment is in need of renovation.
Heating is provided by gas cirko.
There is no elevator in the building.
I recommend it for residential use, as an office, a clinic, or as an investment.
Registration Number
H496780
                Property Details
Sales
                                        for sale
                                                                                                                                                Legal Status
                                        used
                                                                                                                                                Character
                                        apartment
                                                                                                                                                                                                                                                                                        Construction Method
                                        brick
                                                                                                                                                                                                                                                                                                                                                                                                                                                                                                    Net Size
                                        170 m²
                                                                                                                                                Gross Size
                                        170 m²
                                                                                                                                                                                                                                                                                                                                                                                                                                                                                                                                                                        Heating
                                        Gas circulator
                                                                                                                                                Ceiling Height
                                        400 cm
                                                                                                                                                                                                                    Orientation
                                        East
                                                                                                                                                                                                                    Staircase Type
                                        suspended corridor
                                                                                                                                                Condition
                                        Average
                                                                                                                                                Condition of Facade
                                        Good
                                                                                                                                                Condition of Staircase
                                        Good
                                                                                                                                                                                                                                                                                        Year of Construction
                                        1907
                                                                                                                                                Number of Bathrooms
                                        3
                                                                                                                                                Position
                                        street-facing
                                                                                                                                                                                                                                                                                        Common Costs
                                        59400
                                                                                                                                                                                                                                                                                                                                                                                                                                Water
                                        Available
                                                                                                                                                Gas
                                        Available
                                                                                                                                                Electricity
                                        Available
                                                                                                                                                Sewer
                                        Available
                                                                                                                                                                                                                                                                                                                                                                                                                                                                                                                                                                                            Rooms
living room
                                        33 m²
                                                                            room
                                        16 m²
                                                                            room
                                        17 m²
                                                                            room
                                        20 m²
                                                                            room
                                        23 m²
                                                                            bathroom-toilet
                                        5 m²
                                                                            bathroom
                                        4 m²
                                                                            kitchen
                                        10 m²
                                                                     
            
                            Ruczek Krisztina
Credit Expert
 
                    
                 
                         
                         
                         
                         
                         
                         
                         
                         
                         
                         
                         
                         
                         
                         
                         
                         
                         
                    
                 
                 
                 
                 
                 
                 
                 
                 
                 
                 
                 
                