data_sheet.details.realestate.section.main.otthonstart_flag.label
For sale family house,
H464008
Orosháza
79,900,000 Ft
204,000 €
- 230m²
- 5 Rooms




















Orosháza központjának közvetlen közelében kínálunk megvételre, egy fantasztikus kerttel rendelkező, földszint+emeleten elhelyezkedő családi házat.
A házhoz tartozik egy teljes értékű zárható garázs, két különálló terasz, és egy kis pergolával ellátott sütögető rész.
1986-ban, az építés évében Svájcban az év háza volt, és a helyi mesteremberek keze által, kiváló minőségben kelt életre.
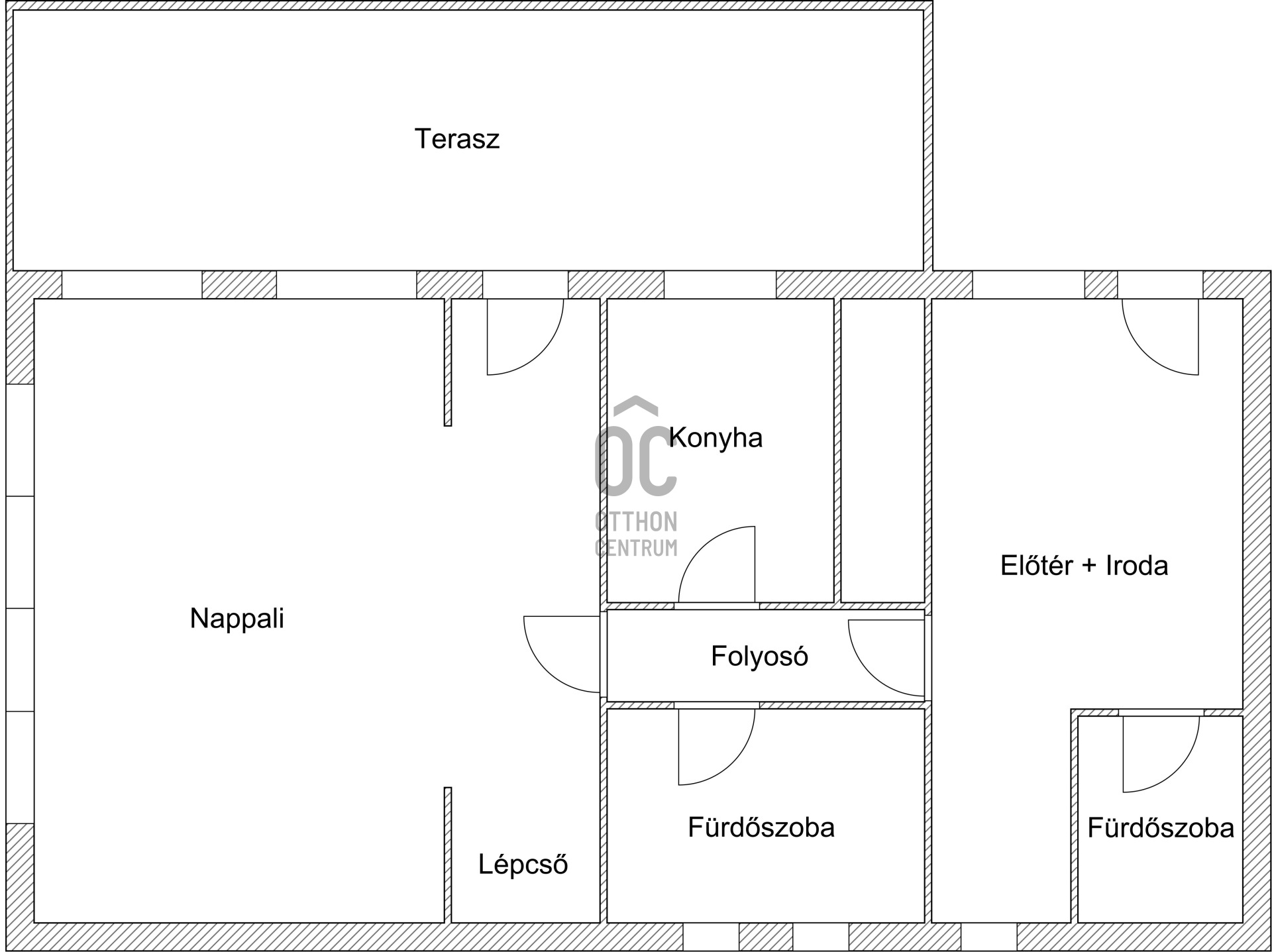
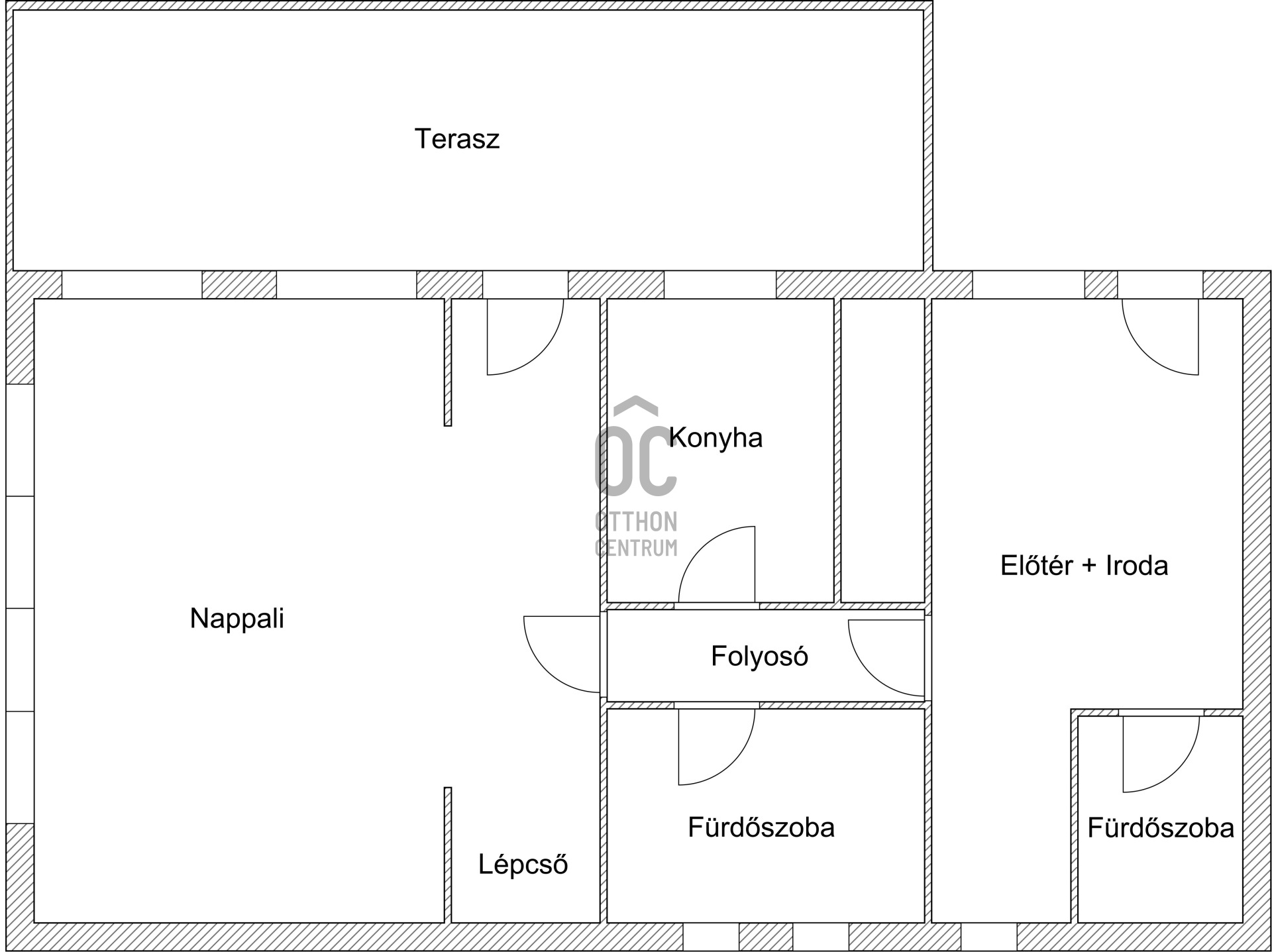
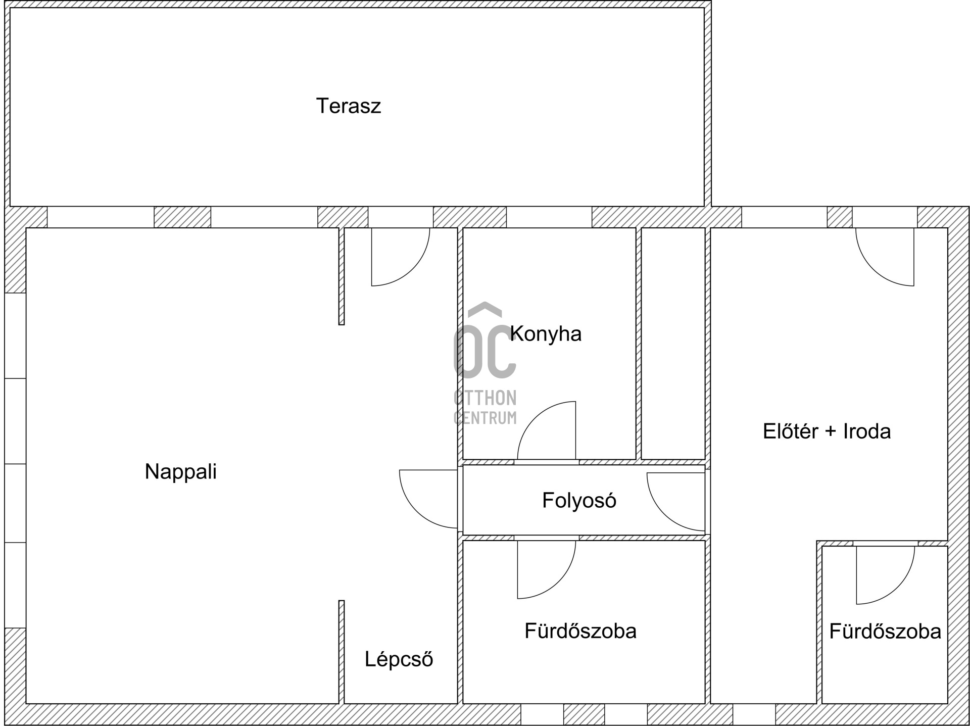
Az alsó szinten két fürdőszoba, konyha és egy hatalmas nappali kapott helyet, a fűtést egy tekintetet magára vonó cserépkályha szolgáltatja, de gázkazán, vegyes tüzelésű kazán és inverteres klímák is rendelkezésre állnak.
Az emeleten egy kisebb méretű nappali, fürdőszoba és 3 háló várja lakóját.
Ha a képek, vagy a lehetőség felcsigázták a figyelmét, akkor keressen bizalommal, hogy bemutathassam Önnek.
A házhoz tartozik egy teljes értékű zárható garázs, két különálló terasz, és egy kis pergolával ellátott sütögető rész.
1986-ban, az építés évében Svájcban az év háza volt, és a helyi mesteremberek keze által, kiváló minőségben kelt életre.
Az alsó szinten két fürdőszoba, konyha és egy hatalmas nappali kapott helyet, a fűtést egy tekintetet magára vonó cserépkályha szolgáltatja, de gázkazán, vegyes tüzelésű kazán és inverteres klímák is rendelkezésre állnak.
Az emeleten egy kisebb méretű nappali, fürdőszoba és 3 háló várja lakóját.
Ha a képek, vagy a lehetőség felcsigázták a figyelmét, akkor keressen bizalommal, hogy bemutathassam Önnek.
Registration Number
H464008
Property Details
Sales
for sale
Legal Status
used
Character
house
Construction Method
brick
Net Size
230 m²
Gross Size
250 m²
Plot Size
720 m²
Size of Terrace / Balcony
40 m²
Heating
Gas circulator
Ceiling Height
270 cm
Number of Levels Within the Property
1
Orientation
East
Condition
Good
Condition of Facade
Excellent
Neighborhood
quiet, good transport, green, central
Year of Construction
1986
Number of Bathrooms
3
Garage Spaces
1
Water
Available
Gas
Available
Electricity
Available
Sewer
Available
Storage
Independent
Rooms
living room
60 m²
bedroom
12 m²
bedroom
12 m²
bedroom
15 m²
bathroom-toilet
10 m²
bathroom-toilet
10 m²
open-plan kitchen and dining room
15 m²
room
25 m²