data_sheet.details.realestate.section.main.otthonstart_flag.label
For sale family house,
H455965
Vácrátót
129,900,000 Ft
344,000 €
- 321m²
- 10 Rooms
Eladó Kétgenerációs Családi Ház Vácrátóton!
Vácrátót, Pest megyében a Veresegyházi-medencében fekszik. Keleten a Gödöllői-dombság, délen a fóti Somlyó-hegy, északon a Cserhát peremén húzódó Kígyós-dombsor, végül nyugat felől a gödi lapály határolja.
Ebben a fantasztikus környezetben kínálom eladásra ezt a kétgenerációs ingatlant.
Az ingatlant a tulajdonosok 1985-ben kezdték építeni, végleges formáját pedig 1990-ben érte el (a család növekedésével növekedett az ingatlan is).
A folyamatosan karbantartott ingatlan nyolc szobából és négy fürdőszobából áll. Garázs egy autó számára és két nyitott beálló, ami fedetté tehető.
1438 m2-es kertjében minden megtalálható.
2025-ben 20cm-es szigetelést kapott a ház és a fűtésredszer is korszerűsítve lett, új kondenzációs cirkót kapott.
Fűtéséhez a gáz mellett, vegyestüzelésű kazán és inverteres is rendelkezésre áll.
Jelenleg a ház 2-szintje van készen,(földszint és az 1.emelet.) a 2. emelet szerkezetkész állapotban van.
Tető szigetelés, válaszfalak (gipszkarton), ajtók, ablakok, fürdőszobai vízliállások , villanyvezetékelés, beton aljzat.
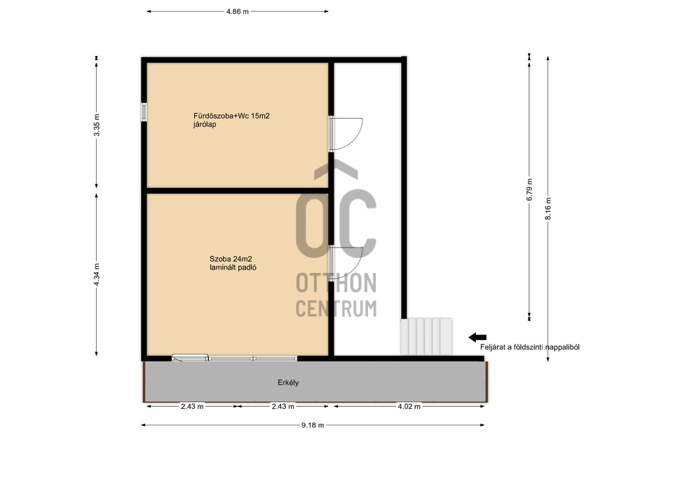
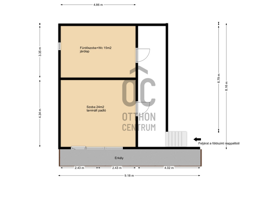
Itt található 5 szoba és a fürdő wc-vel.
Közvetlen Volánbusz járattal Vác 20-25 perc alatt elérhető, de a kettes számú főút is csak 5 perc autóútra található melyen Budapest is csak 20 perc.
Az ingatlant hatalmas terek jellemzik a felső szint teljesen különálló (külső lépcsőn megközelíthető), de igény szerint akár belülről is össze nyitható.
A város folyamatosan fejlődik és szépül megtalálható itt óvoda, iskola, bringa park, Botanikus kert, Sportcsarnok.
Köszönöm, hogy megtekintette hirdetésem!
Várom megtisztelő hívását a hét bármely napján!
#családiház#vácrátót#kétgenerációs#nagykert#
Ebben a fantasztikus környezetben kínálom eladásra ezt a kétgenerációs ingatlant.
Az ingatlant a tulajdonosok 1985-ben kezdték építeni, végleges formáját pedig 1990-ben érte el (a család növekedésével növekedett az ingatlan is).
A folyamatosan karbantartott ingatlan nyolc szobából és négy fürdőszobából áll. Garázs egy autó számára és két nyitott beálló, ami fedetté tehető.
1438 m2-es kertjében minden megtalálható.
2025-ben 20cm-es szigetelést kapott a ház és a fűtésredszer is korszerűsítve lett, új kondenzációs cirkót kapott.
Fűtéséhez a gáz mellett, vegyestüzelésű kazán és inverteres is rendelkezésre áll.
Jelenleg a ház 2-szintje van készen,(földszint és az 1.emelet.) a 2. emelet szerkezetkész állapotban van.
Tető szigetelés, válaszfalak (gipszkarton), ajtók, ablakok, fürdőszobai vízliállások , villanyvezetékelés, beton aljzat.
Itt található 5 szoba és a fürdő wc-vel.
Közvetlen Volánbusz járattal Vác 20-25 perc alatt elérhető, de a kettes számú főút is csak 5 perc autóútra található melyen Budapest is csak 20 perc.
Az ingatlant hatalmas terek jellemzik a felső szint teljesen különálló (külső lépcsőn megközelíthető), de igény szerint akár belülről is össze nyitható.
A város folyamatosan fejlődik és szépül megtalálható itt óvoda, iskola, bringa park, Botanikus kert, Sportcsarnok.
Köszönöm, hogy megtekintette hirdetésem!
Várom megtisztelő hívását a hét bármely napján!
#családiház#vácrátót#kétgenerációs#nagykert#
Registration Number
H455965
Property Details
Sales
for sale
Legal Status
used
Character
house
Construction Method
brick
Net Size
321 m²
Gross Size
380 m²
Plot Size
1,438 m²
Heating
Gas circulator
Ceiling Height
230 cm
Number of Levels Within the Property
2
Orientation
North-East
View
city view
Condition
Good
Condition of Facade
Good
Neighborhood
quiet, good transport
Year of Construction
1985
Number of Bathrooms
4
Garage
Included in the price
Garage Spaces
1
Water
Available
Gas
Available
Electricity
Available
Sewer
Available
Multi-Generational
yes
Rooms
garage
23 m²
garage
23 m²
boiler room
12 m²
boiler room
12 m²
storage
2 m²
storage
2 m²
bathroom-toilet
13.3 m²
bathroom-toilet
13.3 m²
open-plan kitchen and dining room
20 m²
open-plan kitchen and dining room
20 m²
living room
13 m²
living room
13 m²
room
22 m²
room
22 m²
staircase
2 m²
staircase
2 m²
room
24 m²
room
24 m²
bathroom-toilet
10 m²
bathroom-toilet
10 m²
room
24 m²
room
24 m²
bathroom-toilet
14.5 m²
bathroom-toilet
14.5 m²
open-plan kitchen and dining room
22 m²
open-plan kitchen and dining room
22 m²
storage
4.2 m²
storage
4.2 m²
balcony
10 m²
balcony
10 m²
half room
8 m²
half room
8 m²
room
12 m²
room
12 m²
room
15 m²
room
15 m²
room
20 m²
room
20 m²
room
25 m²
room
25 m²
bathroom-toilet
18 m²
bathroom-toilet
18 m²
entryway
10 m²
entryway
10 m²
Víg Attila
Credit Expert