data_sheet.details.realestate.section.main.otthonstart_flag.label
For sale new construction apartment,
GDH386751
Kaposvár
45,920,000 Ft
117,000 €
- 46m²
- 2 Rooms
- 2nd floor





































Kaposváron a keresett és kedvelt Csillagfény lakópark 2. ütemében, magával ragadó zöld környezetben kínálok megvételre egy új építésű társasházi lakást.
Különleges akció keretében, az önerővel (szakaszos finanszírozással) történő vásárlás esetén most a vételár 4%-a elengedésre kerül.
A festői szépségű Tókaji parkerdő ölelésében található ingatlantól a belváros gépkocsival pár perc alatt elérhető.
A megvalósuló zárt lakópark és környezete ideális feltöltődésre, pihenésre, minden generáció számára egyaránt remek életteret biztosíthat.
A második első ütemben épülő 11 lakásos, 3 szintes társasház minőségi anyagokból és korszerű műszaki tartalommal kerül kivitelezésre.
A lakások a jól átgondolt, ötletes tervezésnek köszönhetően élhető tereket kaptak, elosztásuk nagyszerű.
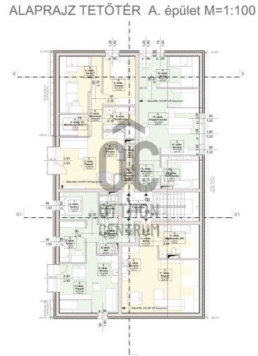
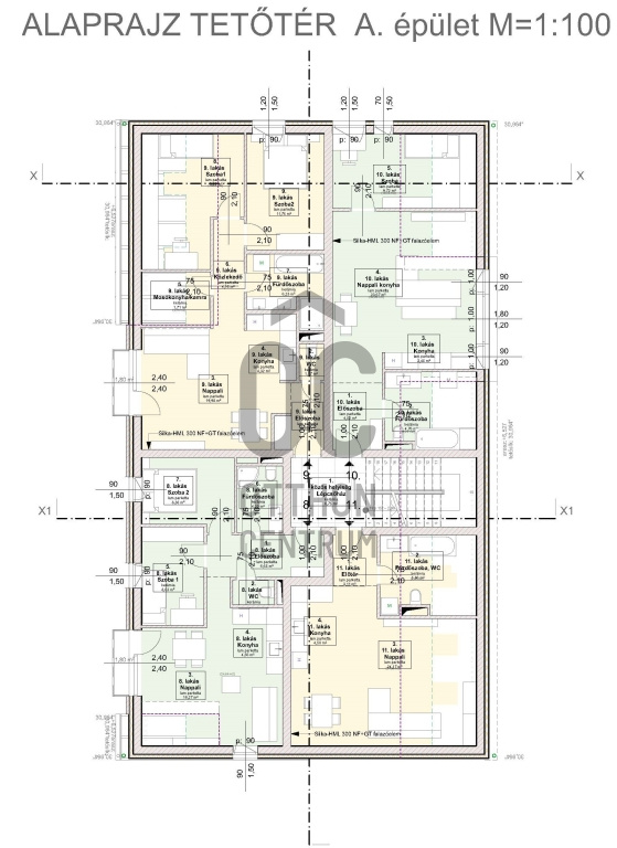
A B10 megjelölésű második emeleti lakás 46,1 m2 alapterületű. Az amerikai konyhás nappalin túl egy szoba, fürdőszoba és előszoba kapott teret a lakásban.
A közel nulla hőveszteségű társasházba beépítésre kerülő nyílászárók korszerű 3 rétegű üvegezéssel lesznek ellátva, a fűtésről (és a hűtésről is) alacsony fogyasztású, magas SCOP értékű, H tarifával szerelt klímák gondoskodnak majd, így a lakások várható fenntartási költsége kifejezetten alacsony lesz.
A lakások melegvíz ellátását energiahatékony okos bojlerek biztosítják.
Az erkélyre vezető nyílászárók elektromosan vezérelhető redőnyt kapnak.
A választható beltéri nyílászárók és a burkolatok is a minőséget és a mai kornak megfelelő esztétikát képviselik.
A lakáshoz tároló (3 m2) 1.350.000.Ft, míg beállóhely 1.530.000. Ft ellenében vásárolható.
A társasház átadási határideje: 2027.első negyedéve.
További információért forduljon hozzám bizalommal!
Különleges akció keretében, az önerővel (szakaszos finanszírozással) történő vásárlás esetén most a vételár 4%-a elengedésre kerül.
A festői szépségű Tókaji parkerdő ölelésében található ingatlantól a belváros gépkocsival pár perc alatt elérhető.
A megvalósuló zárt lakópark és környezete ideális feltöltődésre, pihenésre, minden generáció számára egyaránt remek életteret biztosíthat.
A második első ütemben épülő 11 lakásos, 3 szintes társasház minőségi anyagokból és korszerű műszaki tartalommal kerül kivitelezésre.
A lakások a jól átgondolt, ötletes tervezésnek köszönhetően élhető tereket kaptak, elosztásuk nagyszerű.
A B10 megjelölésű második emeleti lakás 46,1 m2 alapterületű. Az amerikai konyhás nappalin túl egy szoba, fürdőszoba és előszoba kapott teret a lakásban.
A közel nulla hőveszteségű társasházba beépítésre kerülő nyílászárók korszerű 3 rétegű üvegezéssel lesznek ellátva, a fűtésről (és a hűtésről is) alacsony fogyasztású, magas SCOP értékű, H tarifával szerelt klímák gondoskodnak majd, így a lakások várható fenntartási költsége kifejezetten alacsony lesz.
A lakások melegvíz ellátását energiahatékony okos bojlerek biztosítják.
Az erkélyre vezető nyílászárók elektromosan vezérelhető redőnyt kapnak.
A választható beltéri nyílászárók és a burkolatok is a minőséget és a mai kornak megfelelő esztétikát képviselik.
A lakáshoz tároló (3 m2) 1.350.000.Ft, míg beállóhely 1.530.000. Ft ellenében vásárolható.
A társasház átadási határideje: 2027.első negyedéve.
További információért forduljon hozzám bizalommal!
Registration Number
GDH386751
Property Details
Sales
for sale
Legal Status
new
Character
apartment
Construction Method
brick
Net Size
46 m²
Gross Size
46 m²
Ceiling Height
2,700 cm
Number of Levels Within the Property
1
View
Other
Condition
Excellent
Condition of Facade
Excellent
Year of Construction
2027
Position
street-facing

Zaracsi Szilvia
Credit Expert