For sale plot, DTK012650
Piliscsaba

212,000,000 Ft

550,000 €

  • 7,065m²
Exclusive Contract

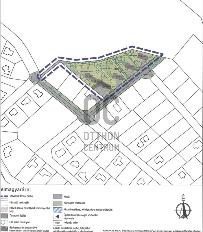
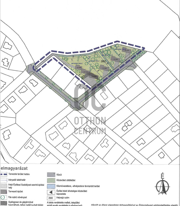
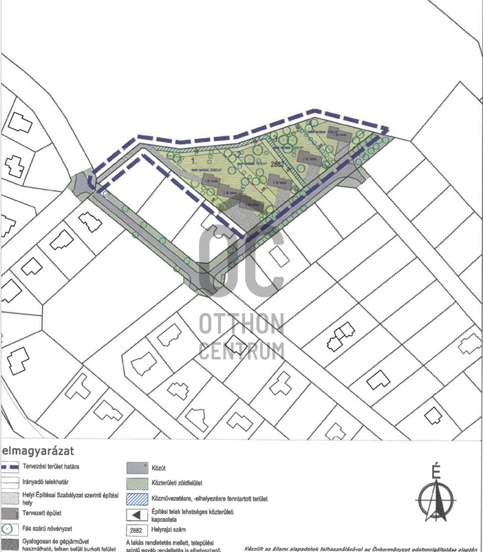
Eladó építési telkek Piliscsabán. A város Garancstető elnevezésű területén eladásra kínálunk 4 db belterületi építési telek kialakítására alkamas ingatlant. A terület rendelkezik elektromos áram, gáz, víz és csatorna közművel. Szilárd burkolatú úton közelíthető meg. A környék lakóházakkal beépített, szomszédságban játszótér található. A területről gyönyörű kilátás tárul elénk a Pilis hegyvonulatára valamint a városra.

Övezeti besorolás: VT-1, beépítési mód: oldalhatáron álló, beépítettség megengedett legnagyoob mértéke 30 %, megengedett legnagyobb épületmagasság 7,5 méter, legkisebb kialakítható telek méret 1500 m2. 500 m2 területenként 1 lakás alakítható ki.

Figyelmébe ajánlom mindazoknak akik a város zajától távol, jó levegőjű, csendes, nyugodt környezetben szeretnék élni minden napjaikat. Piliscsaba infrastrukturális ellátottsága magas színvonalú mind a lakossági szolgáltatás mind pedig az oktatás tekintetében.Amennyiben felkeltette érdeklődését az ingatlan kérem keressen bizalommal szívesen állok rendelkezésére további információkkal.



Registration Number

DTK012650

Property Details

Sales
for sale
Character
plot
Type of Land
Developmental plot
Net Size
7,065 m²
Gross Size
7,065 m²
Plot Size
7,065 m²
Basement
values.realestate.pince.1
Water
On the street
Gas
On the street
Electricity
On the street
Sewer
On the street
Connected to Garden
yes
Storage
Independent

 

Korcsog Melinda
Korcsog Melinda

Credit Expert

From Our Office Listings - Piliscsaba - Bajcsy-Zsilinszky út

for sale family house

Index image
data_sheet.details.realestate.section.main.otthonstart_flag.label
30

for sale new construction family house

Index image
data_sheet.details.realestate.section.main.otthonstart_flag.label
42

for sale family house

Index image
data_sheet.details.realestate.section.main.otthonstart_flag.label
16

for sale panel apartment

Index image
data_sheet.details.realestate.section.main.otthonstart_flag.label
27

for sale family house

Index image
data_sheet.details.realestate.section.main.otthonstart_flag.label
62

for sale family house

Index image
data_sheet.details.realestate.section.main.otthonstart_flag.label
36

for sale family house

Index image
data_sheet.details.realestate.section.main.otthonstart_flag.label
25

for sale family house

Index image
data_sheet.details.realestate.section.main.otthonstart_flag.label
13

for sale family house

Index image
data_sheet.details.realestate.section.main.otthonstart_flag.label
15