160,000,000 Ft
419,000 €
- 81m²
- 3 Rooms
- 6th floor
Világos, tágas lakás a Szegedi úton garázs és tároló bérelhető
Eladó egy 76 négyzetméteres lakás + 10 négyzetméteres loggiával a XIII. kerületi Szegedi úton, egy 2018-ban épült, 7 emeletes, modern társasházban. Az ingatlan ideális választás pároknak, egyedülállóknak vagy befektetőknek, akik értékelik a kényelmet, a minőségi kivitelezést és a kiváló elhelyezkedést.
Főbb jellemzők:
- Tágas nappali nagy ablakokkal, természetes fényben úszó tér
- Külön hálószoba beépített szekrénnyel
- Konyha teljes körűen gépesített; a beépített Bosch készülékek a vételár részét képezik
- A nappaliban egyedi gyártású, beépített könyvespolc rendszer biztosít extra tárolóhelyet és stílust
- A komfortot klímaberendezés növeli
- Remek kilátás, csendes, zöld belső udvarra néző ablakok
- 10 m² loggia, ideális reggelihez, pihenéshez vagy növényeknek
Kiváló lakókomfort:
- Árnyékolás: a hálószobákban hagyományos redőny, a nappaliban elektromos sötétítő
- Minden nyitható ablakon szúnyogháló található
- Az udvari fekvés és a jó kereszt-szellőzés révén a legmelegebb nyári napokon is könnyen biztosítható a friss levegő
Költségek:
- Közös költség: 28 800 Ft/hó
- Fűtés: házközponti egyedi mérővel, télen átlagosan 8 000 Ft/hó
Extra lehetőségek:
A lakáshoz a -1 szinten garázsbeálló és külön tárolóhelyiség bérelhető, így biztosított a kényelmes parkolás és a praktikus tárolás.
Berendezés:
A lakás bútorozata megállapodás tárgyát képezi, így rugalmasan alakítható az új tulajdonos igényei szerint.
Elhelyezkedés:
A Szegedi út kiváló infrastruktúrával rendelkezik: közelben üzletek, éttermek, tömegközlekedési csomópontok, valamint zöld parkok. A környék biztonságos és élhető, ideális városi otthon.
Megtekintés:
A lakás előre egyeztetett időpontban megtekinthető.
Hívjanak bizalommal további információért vagy időpont egyeztetésért!
Eladó egy 76 négyzetméteres lakás + 10 négyzetméteres loggiával a XIII. kerületi Szegedi úton, egy 2018-ban épült, 7 emeletes, modern társasházban. Az ingatlan ideális választás pároknak, egyedülállóknak vagy befektetőknek, akik értékelik a kényelmet, a minőségi kivitelezést és a kiváló elhelyezkedést.
Főbb jellemzők:
- Tágas nappali nagy ablakokkal, természetes fényben úszó tér
- Külön hálószoba beépített szekrénnyel
- Konyha teljes körűen gépesített; a beépített Bosch készülékek a vételár részét képezik
- A nappaliban egyedi gyártású, beépített könyvespolc rendszer biztosít extra tárolóhelyet és stílust
- A komfortot klímaberendezés növeli
- Remek kilátás, csendes, zöld belső udvarra néző ablakok
- 10 m² loggia, ideális reggelihez, pihenéshez vagy növényeknek
Kiváló lakókomfort:
- Árnyékolás: a hálószobákban hagyományos redőny, a nappaliban elektromos sötétítő
- Minden nyitható ablakon szúnyogháló található
- Az udvari fekvés és a jó kereszt-szellőzés révén a legmelegebb nyári napokon is könnyen biztosítható a friss levegő
Költségek:
- Közös költség: 28 800 Ft/hó
- Fűtés: házközponti egyedi mérővel, télen átlagosan 8 000 Ft/hó
Extra lehetőségek:
A lakáshoz a -1 szinten garázsbeálló és külön tárolóhelyiség bérelhető, így biztosított a kényelmes parkolás és a praktikus tárolás.
Berendezés:
A lakás bútorozata megállapodás tárgyát képezi, így rugalmasan alakítható az új tulajdonos igényei szerint.
Elhelyezkedés:
A Szegedi út kiváló infrastruktúrával rendelkezik: közelben üzletek, éttermek, tömegközlekedési csomópontok, valamint zöld parkok. A környék biztonságos és élhető, ideális városi otthon.
Megtekintés:
A lakás előre egyeztetett időpontban megtekinthető.
Hívjanak bizalommal további információért vagy időpont egyeztetésért!
Registration Number
DLK084390
Property Details
Sales
for sale
Legal Status
used
Character
apartment
Construction Method
brick
Net Size
81 m²
Gross Size
81 m²
Heating
central heating
Ceiling Height
267 cm
Orientation
North-East
Condition
Excellent
Condition of Facade
Excellent
Year of Construction
2018
Number of Bathrooms
1
Position
courtyard-facing
Common Costs
28800
Elevator
available
Connected to Garden
yes
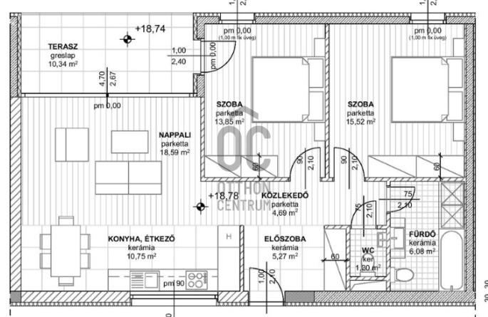
Rooms
room
15.52 m²
room
13.85 m²
living room
18.59 m²
loggia
10.34 m²
toilet
1.3 m²
kitchen
10.75 m²
corridor
4.69 m²
entryway
5.27 m²
Németh István
Credit Expert