data_sheet.details.realestate.section.main.otthonstart_flag.label
For sale new construction semi-detached house,
DHZ086570
Dunavarsány,
123,000,000 Ft
317,000 €
- 141m²
- 4 Rooms
















Dunavarsányon eladó egy 496 nm-es körbekerített telken lévő újépítésű 113 nm alapterületű ikerház fél, hőszivattyús fűtésrendszerű A+ energetikai besorolással rendelkező családi ház! Az épületben a riasztórendszer előkészítése megtörtént. A telekre elektromos nagykapun keresztül juthatunk be.
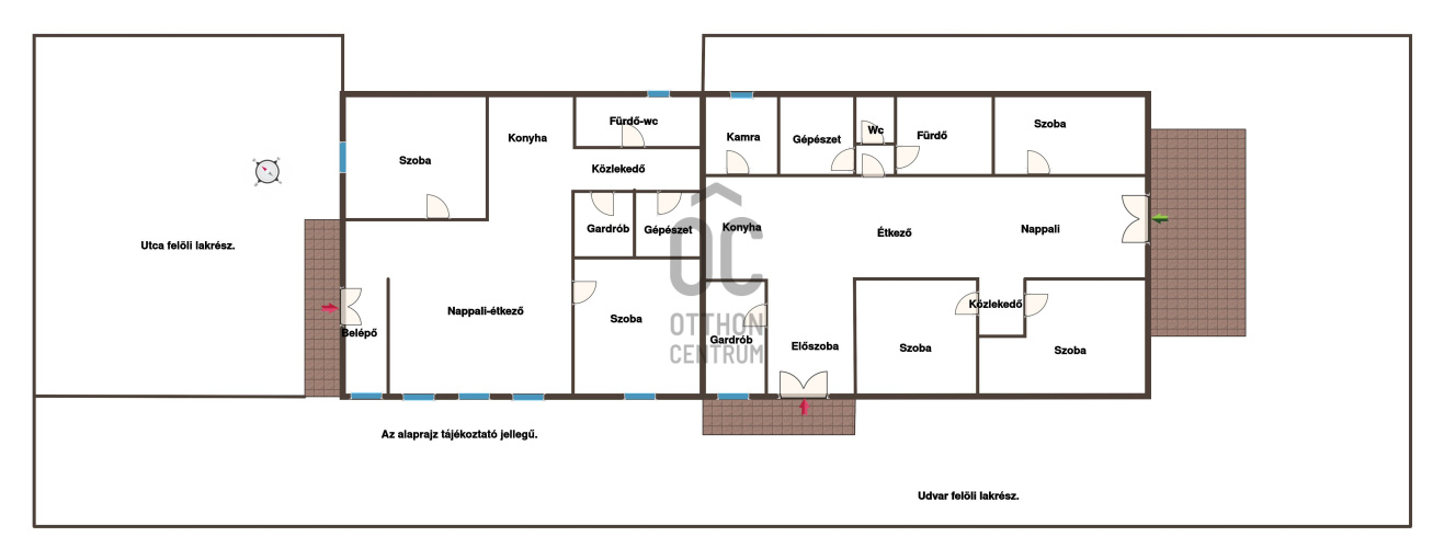
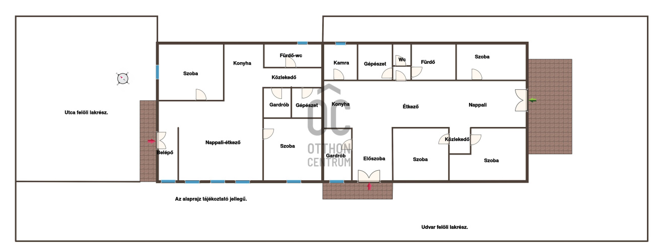
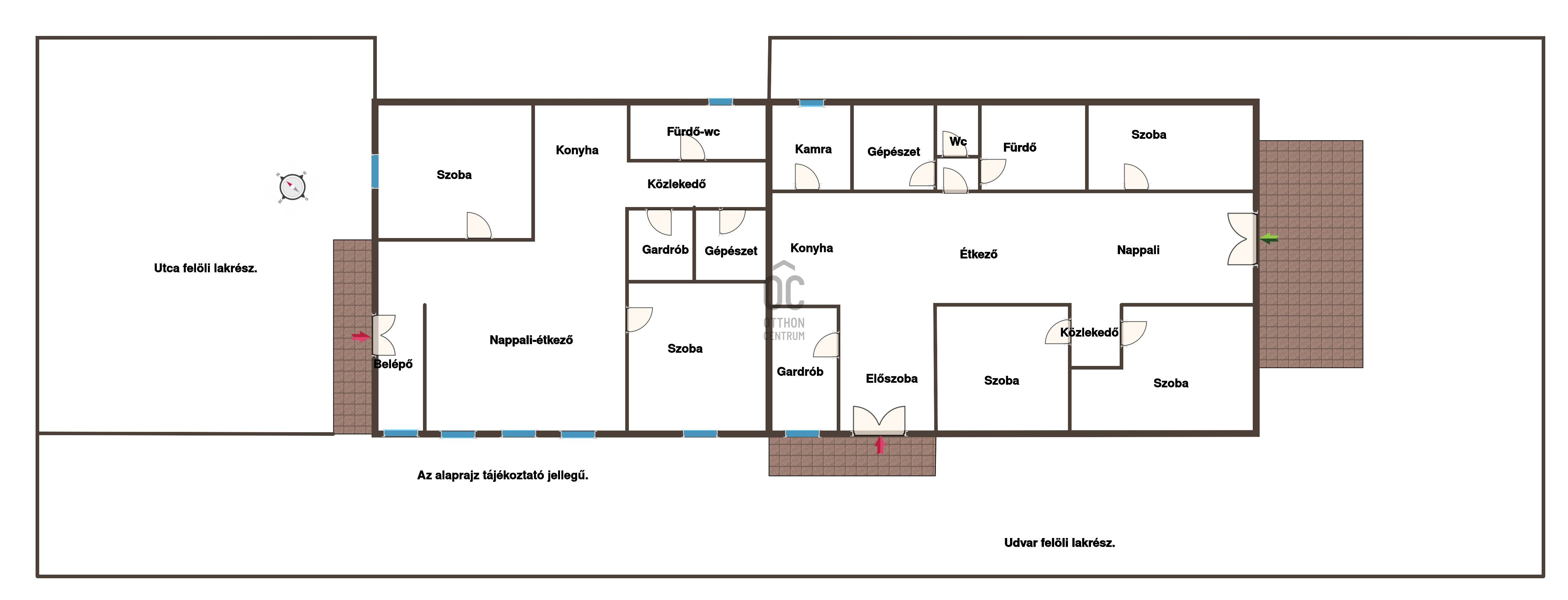
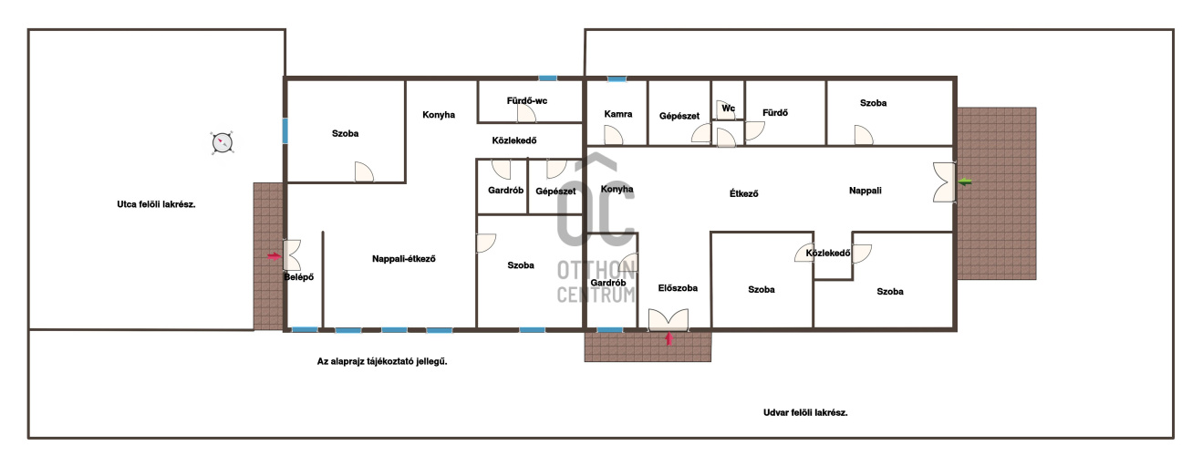
Az épület belsőudvari 113 nm-es melyhez 496 nm-es elkerített telekrész tartozik.
Belső elrendezése előszoba, gardrób, amerikai-konyhás-nappali, kamra, gépészeti helyiség, wc-kézmosó, fürdő, három külön nyíló szoba, terasz.
Az épület beton sávalapra épült, 30cm-es tégla falazattal +15 cm hungarocell szigeteléssel.
Fa födémes, 30 cm-es födémszigeteléssel
A két lakrész padlástere hanggátló gipszkartonnal elválasztott
A fűtést korszerű levegő-levegő hőszivattyú, mennyezeti hűtés-fűtés rendszer biztosítja.
A melegvíz szükségletet hőszivattyús bojler elégíti ki.
A nyílászárók műanyagok 3 rétegű 5 légkamrás belül fehér kívül antracit szürke színűek.
Választható burkolatok és belső elemek:
Hidegburkolatok:5.500 Ft/nm
Melegburkolatok: 4.500.- Ft/ nm
Szaniterek: 100.000.- Ft
A kert öntözésére fúrt kút áll a rendelkezésünkre. A telken belül villany, vezetékes víz és átemelős rendszerű csatorna található.
A birtokbaadás az elfogadásra került Vételi szándéknyilatkozatott követően 30-90 napon belül költözhető!
Ha megtetszett Önnek az ingatlan kérem hívjon bizalommal a hét bármely napján, akár hétvégén is.
A közelben minden megtalálható ami a mindennapi élethez szükséges.
Az épület belsőudvari 113 nm-es melyhez 496 nm-es elkerített telekrész tartozik.
Belső elrendezése előszoba, gardrób, amerikai-konyhás-nappali, kamra, gépészeti helyiség, wc-kézmosó, fürdő, három külön nyíló szoba, terasz.
Az épület beton sávalapra épült, 30cm-es tégla falazattal +15 cm hungarocell szigeteléssel.
Fa födémes, 30 cm-es födémszigeteléssel
A két lakrész padlástere hanggátló gipszkartonnal elválasztott
A fűtést korszerű levegő-levegő hőszivattyú, mennyezeti hűtés-fűtés rendszer biztosítja.
A melegvíz szükségletet hőszivattyús bojler elégíti ki.
A nyílászárók műanyagok 3 rétegű 5 légkamrás belül fehér kívül antracit szürke színűek.
Választható burkolatok és belső elemek:
Hidegburkolatok:5.500 Ft/nm
Melegburkolatok: 4.500.- Ft/ nm
Szaniterek: 100.000.- Ft
A kert öntözésére fúrt kút áll a rendelkezésünkre. A telken belül villany, vezetékes víz és átemelős rendszerű csatorna található.
A birtokbaadás az elfogadásra került Vételi szándéknyilatkozatott követően 30-90 napon belül költözhető!
Ha megtetszett Önnek az ingatlan kérem hívjon bizalommal a hét bármely napján, akár hétvégén is.
A közelben minden megtalálható ami a mindennapi élethez szükséges.
Registration Number
DHZ086570
Property Details
Sales
for sale
Legal Status
new
Character
house
Construction Method
brick
Net Size
141 m²
Gross Size
141 m²
Plot Size
496 m²
Size of Terrace / Balcony
12 m²
Heating
other
Ceiling Height
270 cm
Number of Levels Within the Property
1
Orientation
South-East
Condition
Good
Condition of Facade
Good
Year of Construction
2025
Number of Bathrooms
1
Position
courtyard-facing
Water
Available
Gas
Available
Electricity
Available
Sewer
Available
Rooms
room
10.85 m²
wardrobe
5.95 m²
corridor
3.96 m²
bathroom-toilet
6.96 m²
open-plan kitchen and living room
42.24 m²
room
11.47 m²
corridor
3.96 m²
terrace
12 m²
room
12.4 m²
toilet
1.8 m²
pantry
4.93 m²

Durucskó Gabriella
Credit Expert