data_sheet.details.realestate.section.main.otthonstart_flag.label
For sale new construction semi-detached house,
DHZ075270
Kóka,
59,900,000 Ft
153,000 €
- 93.2m²
- 4 Rooms





KÓKÁN SZUPER ELOSZTÁSÚ ÚJ ÉPÍTÉSŰ IKER HÁZ CSAK A GARÁZSNÁL KAPCSOLÓDIK!
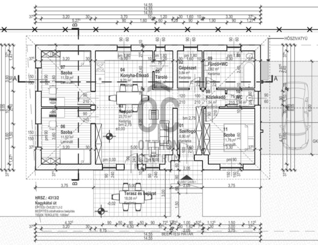
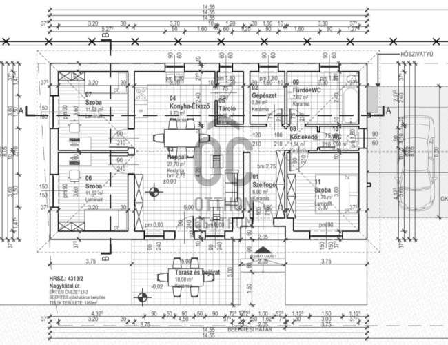
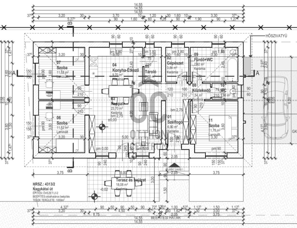
Eladó egy kivételes ingatlan, 2025-ben épült, modern, napfényes, 93,20 négyzetméteres téglaépítésű családi ház, egy 450 négyzetméteres telekkel Kókán.Az otthon melegét hőszivattyús rendszer és padlófűtés biztosítja, így a fenntartási költségek rendkívül kedvezőek.
A ház szívét képezi egy 23,70 négyzetméteres nappali, mely tökéletes helyszín a családi és baráti összejövetelekhez. A nappaliból nyíló 9,70 négyzetméteres konyha-étkező egyben a kulináris élmények színtere. A ház további részei három kényelmes, egyenként kb. 11,50 négyzetméteres hálószoba, egy modern, minden igényt kielégítő 7,92 négyzetméteres fürdőszoba plusz WC, egy külön WC, valamint praktikus tárolóhelyiségek, mint a gépészeti helyiség és a kamra.
Az ingatlan utcafronti, így az elhelyezkedése is kiváló, biztosítva a nyugodt, de mégis könnyen elérhető életformát. A saját garázs kényelmes parkolási lehetőséget nyújt az autóval rendelkezőknek.
Kóka egy bájos település, ami a természet közelségével, tágas zöld területeivel nyújt kitűnő élőhelyet mindazoknak, akik a város zajától távol, de mégis annak közelében szeretnének élni. A település fejlett infrastruktúrával rendelkezik, így minden szükséges szolgáltatás és üzlet könnyen elérhető. A környék békés, barátságos közösséggel, amely ideális helyszínt nyújt mind a fiatalok, mind az idősebb generációk számára. Az ingatlan tökéletes választás lehet azok számára, akik minőségi, kényelmes és modern otthont keresnek a természet közelében.
VÁROM MEGTISZTELŐ HÍVÁSÁT,TEKINTSÜK MEG ÚJ OTTHONÁT!
Eladó egy kivételes ingatlan, 2025-ben épült, modern, napfényes, 93,20 négyzetméteres téglaépítésű családi ház, egy 450 négyzetméteres telekkel Kókán.Az otthon melegét hőszivattyús rendszer és padlófűtés biztosítja, így a fenntartási költségek rendkívül kedvezőek.
A ház szívét képezi egy 23,70 négyzetméteres nappali, mely tökéletes helyszín a családi és baráti összejövetelekhez. A nappaliból nyíló 9,70 négyzetméteres konyha-étkező egyben a kulináris élmények színtere. A ház további részei három kényelmes, egyenként kb. 11,50 négyzetméteres hálószoba, egy modern, minden igényt kielégítő 7,92 négyzetméteres fürdőszoba plusz WC, egy külön WC, valamint praktikus tárolóhelyiségek, mint a gépészeti helyiség és a kamra.
Az ingatlan utcafronti, így az elhelyezkedése is kiváló, biztosítva a nyugodt, de mégis könnyen elérhető életformát. A saját garázs kényelmes parkolási lehetőséget nyújt az autóval rendelkezőknek.
Kóka egy bájos település, ami a természet közelségével, tágas zöld területeivel nyújt kitűnő élőhelyet mindazoknak, akik a város zajától távol, de mégis annak közelében szeretnének élni. A település fejlett infrastruktúrával rendelkezik, így minden szükséges szolgáltatás és üzlet könnyen elérhető. A környék békés, barátságos közösséggel, amely ideális helyszínt nyújt mind a fiatalok, mind az idősebb generációk számára. Az ingatlan tökéletes választás lehet azok számára, akik minőségi, kényelmes és modern otthont keresnek a természet közelében.
VÁROM MEGTISZTELŐ HÍVÁSÁT,TEKINTSÜK MEG ÚJ OTTHONÁT!
Registration Number
DHZ075270
Property Details
Sales
for sale
Legal Status
new
Character
house
Construction Method
brick
Net Size
93.2 m²
Gross Size
93.2 m²
Plot Size
1,425 m²
Size of Terrace / Balcony
18 m²
Heating
other
Ceiling Height
285 cm
Number of Levels Within the Property
1
Orientation
North
Condition
Good
Condition of Facade
Good
Year of Construction
2025
Number of Bathrooms
1
Position
courtyard-facing
Water
Available
Gas
On the street
Electricity
Available
Sewer
Available
Rooms
room
11.52 m²
room
11.52 m²
room
11.7 m²
entryway
6.9 m²
open-plan kitchen and living room
33.4 m²
corridor
1.54 m²
bathroom-toilet
7.92 m²
toilet
1.98 m²
terrace
18.08 m²

Pampuk Rita
Credit Expert