data_sheet.details.realestate.section.main.otthonstart_flag.label
For sale new construction family house,
DHZ054434
Tatárszentgyörgy
67,000,000 Ft
173,000 €
- 92.4m²
- 4 Rooms
ÖNÁLLÓ CSALÁDI HÁZ eladó Tatárszentgyörgyön természetközelben, nyugodt aszfaltos utcában.
10%-al foglalózható!
A és B ház épül a telken, melyek társasházi alapító okirattal, önálló helyrajzi számmal fognak rendelkezni.
Az A épület utcafronti, a B épületnek privát szférát alakítanak ki és ügyvéd által lefektetett szolgalmi úton közelíthető meg.
Az épületek teljesen különálló ÖNÁLLÓ CSALÁDI HÁZAK, melyek semmilyen formában nem csatlakoznak egymáshoz.
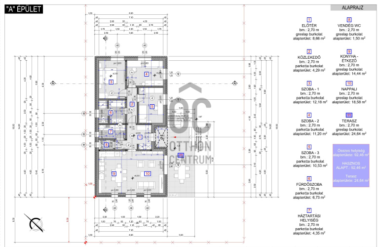
Az ingatlan hasznos alapterülete 92 m2, 3 hálószoba + amerikai konyhás nappalival kialakított,
2 FÜRDŐSZOBÁVAL ELLÁTOTT. A fürdőszobában fürdőkád és épített zuhany is ki lesz alakítva.
A nappaliból nyílik egy 25 m2-es TERASZ, ahol kényelmesen eltöltheti a szabadidejét.
A ház energetikai besorolása A+
A falazat nemzetközileg elfogadott, japán technológiával készült.
Rétegrend: színvakolat; vékonyvakolat; cementbázisú hálóerősítés; Austrotherm AT-H80(1); Austrotherm AT-H80(14); ragasztó; vasbeton; hőszigetelés; vasbeton.
A tető fafödémmel épül, 20 cm kőzetgyapot födém szigeteléssel ellátott lesz.
A ház fűtése HŐSZIVATTYÚS kialakítású, H tarifával.
Beágyazott fűtőfelülettel rendelkező (padló-, fal-, mennyezetfűtés)
Központi előremenő hőmérséklet szabályozás helyiségenkénti hőmérséklet szabályozással.
A NYÍLÁSZÁRÓK korszerű, háromrétegű üvegezésű ablakok.
A házhoz 600 m2 saját használatú telek tartozik, ahol akár két autó is kényelmesen parkolhat.
VÁRHATÓ ÁTADÁS: 2026. nyár
Amennyiben megtetszett Önnek az ingatlan, hívjon bizalommal!
10%-al foglalózható!
A és B ház épül a telken, melyek társasházi alapító okirattal, önálló helyrajzi számmal fognak rendelkezni.
Az A épület utcafronti, a B épületnek privát szférát alakítanak ki és ügyvéd által lefektetett szolgalmi úton közelíthető meg.
Az épületek teljesen különálló ÖNÁLLÓ CSALÁDI HÁZAK, melyek semmilyen formában nem csatlakoznak egymáshoz.
Az ingatlan hasznos alapterülete 92 m2, 3 hálószoba + amerikai konyhás nappalival kialakított,
2 FÜRDŐSZOBÁVAL ELLÁTOTT. A fürdőszobában fürdőkád és épített zuhany is ki lesz alakítva.
A nappaliból nyílik egy 25 m2-es TERASZ, ahol kényelmesen eltöltheti a szabadidejét.
A ház energetikai besorolása A+
A falazat nemzetközileg elfogadott, japán technológiával készült.
Rétegrend: színvakolat; vékonyvakolat; cementbázisú hálóerősítés; Austrotherm AT-H80(1); Austrotherm AT-H80(14); ragasztó; vasbeton; hőszigetelés; vasbeton.
A tető fafödémmel épül, 20 cm kőzetgyapot födém szigeteléssel ellátott lesz.
A ház fűtése HŐSZIVATTYÚS kialakítású, H tarifával.
Beágyazott fűtőfelülettel rendelkező (padló-, fal-, mennyezetfűtés)
Központi előremenő hőmérséklet szabályozás helyiségenkénti hőmérséklet szabályozással.
A NYÍLÁSZÁRÓK korszerű, háromrétegű üvegezésű ablakok.
A házhoz 600 m2 saját használatú telek tartozik, ahol akár két autó is kényelmesen parkolhat.
VÁRHATÓ ÁTADÁS: 2026. nyár
Amennyiben megtetszett Önnek az ingatlan, hívjon bizalommal!
Registration Number
DHZ054434
Property Details
Sales
for sale
Legal Status
new
Character
house
Construction Method
other
Net Size
92.4 m²
Gross Size
92.4 m²
Plot Size
600 m²
Size of Terrace / Balcony
24.6 m²
Heating
other
Ceiling Height
270 cm
Number of Levels Within the Property
1
Orientation
South
Condition
Good
Condition of Facade
Good
Year of Construction
2026
Number of Bathrooms
1
Position
courtyard-facing
Water
Available
Electricity
Available
Sewer
Available
Rooms
entryway
8.66 m²
corridor
4.29 m²
room
12.18 m²
room
11.2 m²
room
10.53 m²
bathroom-toilet
6.73 m²
utility room
4.35 m²
toilet
1.5 m²
open-plan kitchen and dining room
14.44 m²
living room
18.58 m²
terrace
24.64 m²