data_sheet.details.realestate.section.main.otthonstart_flag.label
For sale new construction family house,
DHZ042035
Gomba
127,000,000 Ft
328,000 €
- 137m²
- 5 Rooms
Eladásra kínálunk egy 2026-ban épülő, 4 szoba + amerikai-konyhás nappalival rendelkező, napfényes, önálló családi házat, amely 2027 tavaszán kerül átadásra, 1013 nm-es telekkel! Az otthon hőszivattyús fűtésrendszerrel, padlófűtéssel és elektromos törölközőszárító radiátorral a fürdőszobában rendelkezik.
A nappaliban split klíma került beépítésre.
Az udvarra belépve a szemet az utcafronti 3D kerítés, a térkövezett gyalogos és gépkocsi bejáró fogja meg. A gépkocsitárolásról szekcionált garázskapuval ellátott garázs gondoskodik, az elektromos nagykapu tovább növeli a kényelmet. Otthona környezete nemcsak szép, de biztonságos is, köszönhetően a megbízható kivitelezésnek és az elővigyázatosan megtervezett építési anyagoknak, mint a 30 cm vastag Porfix falak, a 15 cm vastag EPS hőszigetelés és a 30 cm vastag üveggyapot tetőhőszigetelés.
Az ingatlanban fehér műanyag 5 kamrás, 3 rétegű üvegezéssel ellátott ablakok garantálják a jó hőszigetelést és a fényáradatot. A belső terek kialakításához magas minőségű, bruttó 10.000 Ft/nm² értékű padló- és csempeburkolatok, valamint bruttó 80.000 Ft/db árú beltéri ajtók kerültek kiválasztásra.
Gomba település egy igazán csodálatos hely, ahol a nyugalom és a természet közelsége mellett a modern életvitel is helyet kap. Az itt épülő ingatlan lehetőséget kínál arra, hogy a város zajától távol, de mégis minden kényelmi szolgáltatáshoz közel élhessen. A kivételes panorámás kilátás, a szép környezet, valamint a kiemelkedő minőségű építkezés garantálja, hogy az új tulajdonosok életminőségben és komfortban egyaránt csak a legjobbat kapják. Gomba így nemcsak egy hely az otthonteremtéshez, hanem egy kapu a harmónikus és tartalmas élethez.
Hitelügyintézés, eladás és vétel teljes körű ügyintézése, ingyenes tanácsadás, értékbecslés, megbízható ügyvédi háttér biztosítása.
A nappaliban split klíma került beépítésre.
Az udvarra belépve a szemet az utcafronti 3D kerítés, a térkövezett gyalogos és gépkocsi bejáró fogja meg. A gépkocsitárolásról szekcionált garázskapuval ellátott garázs gondoskodik, az elektromos nagykapu tovább növeli a kényelmet. Otthona környezete nemcsak szép, de biztonságos is, köszönhetően a megbízható kivitelezésnek és az elővigyázatosan megtervezett építési anyagoknak, mint a 30 cm vastag Porfix falak, a 15 cm vastag EPS hőszigetelés és a 30 cm vastag üveggyapot tetőhőszigetelés.
Az ingatlanban fehér műanyag 5 kamrás, 3 rétegű üvegezéssel ellátott ablakok garantálják a jó hőszigetelést és a fényáradatot. A belső terek kialakításához magas minőségű, bruttó 10.000 Ft/nm² értékű padló- és csempeburkolatok, valamint bruttó 80.000 Ft/db árú beltéri ajtók kerültek kiválasztásra.
Gomba település egy igazán csodálatos hely, ahol a nyugalom és a természet közelsége mellett a modern életvitel is helyet kap. Az itt épülő ingatlan lehetőséget kínál arra, hogy a város zajától távol, de mégis minden kényelmi szolgáltatáshoz közel élhessen. A kivételes panorámás kilátás, a szép környezet, valamint a kiemelkedő minőségű építkezés garantálja, hogy az új tulajdonosok életminőségben és komfortban egyaránt csak a legjobbat kapják. Gomba így nemcsak egy hely az otthonteremtéshez, hanem egy kapu a harmónikus és tartalmas élethez.
Hitelügyintézés, eladás és vétel teljes körű ügyintézése, ingyenes tanácsadás, értékbecslés, megbízható ügyvédi háttér biztosítása.
Registration Number
DHZ042035
Property Details
Sales
for sale
Legal Status
new
Character
house
Construction Method
other
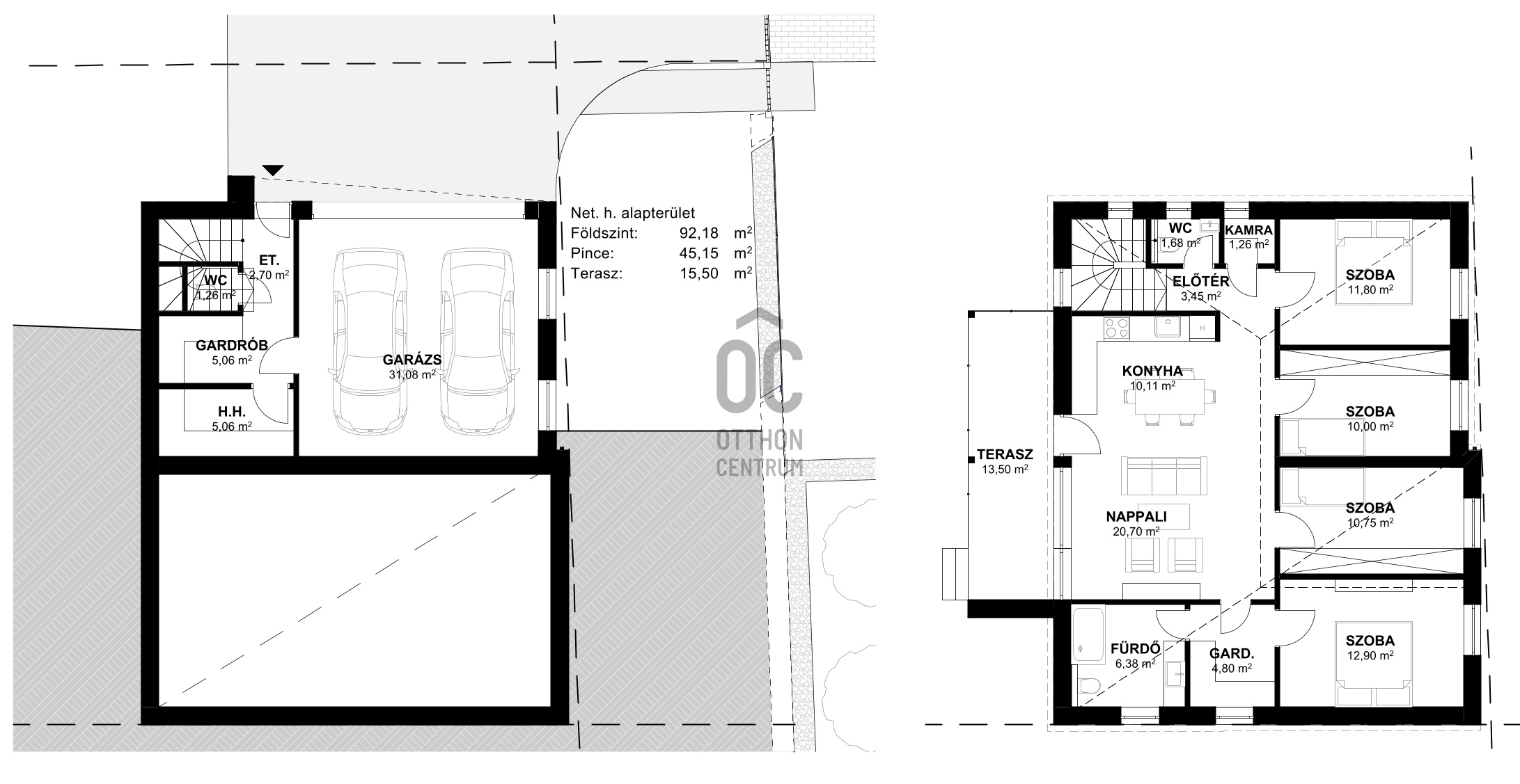
Net Size
137 m²
Gross Size
137 m²
Plot Size
1,013 m²
Size of Terrace / Balcony
13.5 m²
Heating
other
Ceiling Height
270 cm
Number of Levels Within the Property
2
Orientation
South-West
Condition
Good
Condition of Facade
Good
Year of Construction
2026
Number of Bathrooms
1
Position
courtyard-facing
Water
Available
Gas
On the street
Electricity
Available
Sewer
On the street
Rooms
terrace
13.5 m²
utility room
5.06 m²
wardrobe
5.06 m²
toilet
1.26 m²
room
11.8 m²
room
10 m²
room
10.75 m²
room
12.9 m²
wardrobe
4.8 m²
open-plan kitchen and living room
30.81 m²
pantry
1.26 m²
toilet
1.68 m²