175,000,000 Ft
489,000 €
- 355m²
Exkluzív Befektetési Lehetőség Budapesttől mindössze 35 percre! - Cegléd – Öregszőlő, a Ceglédi Termál- és Élményfürdő közelében!
Eladó egy szerkezetkész állapotban lévő, exkluzív tervek alapján épülő ingatlan, amely kivételes lehetőséget kínál befektetőknek és prémium otthont keresőknek egyaránt.
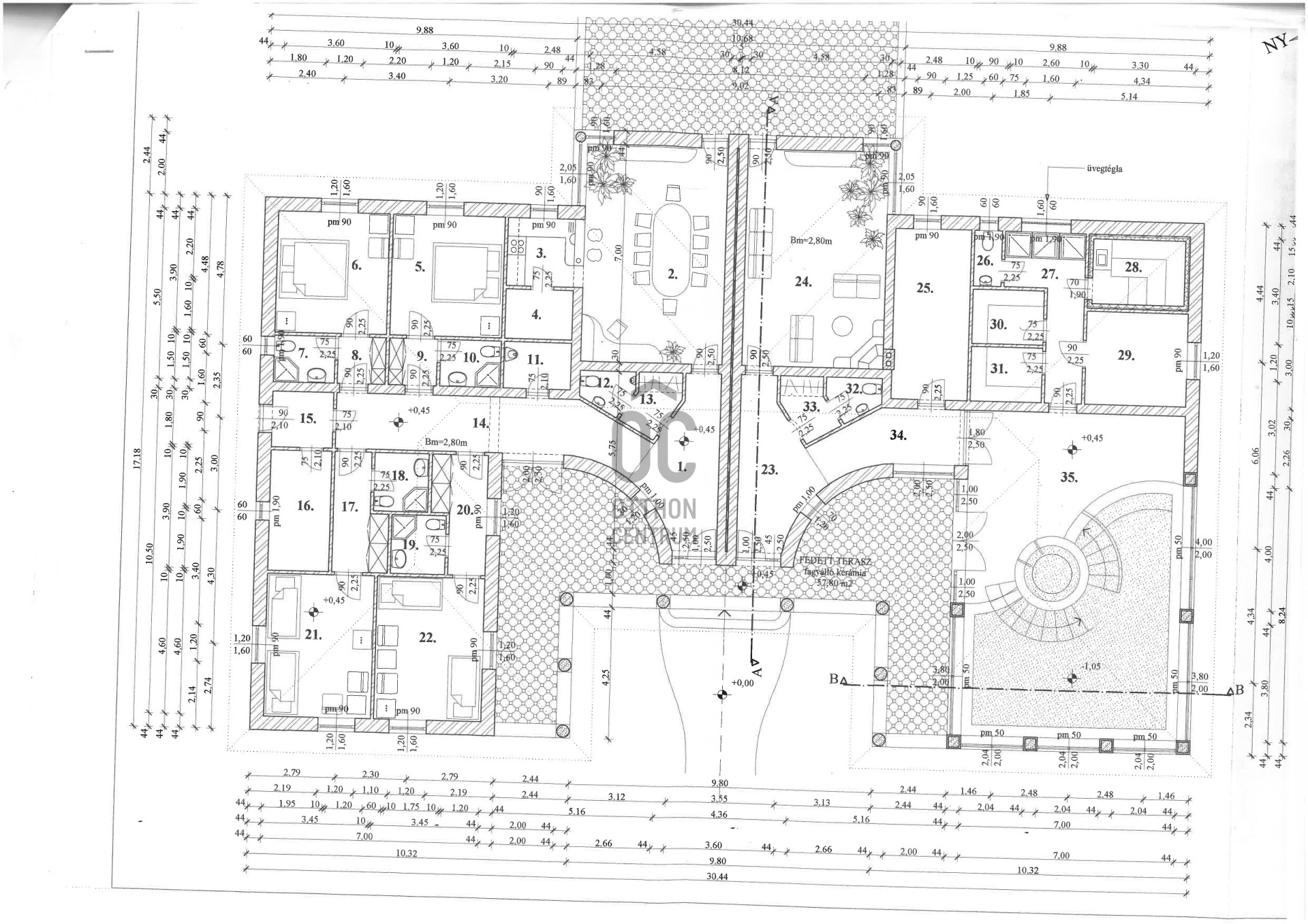
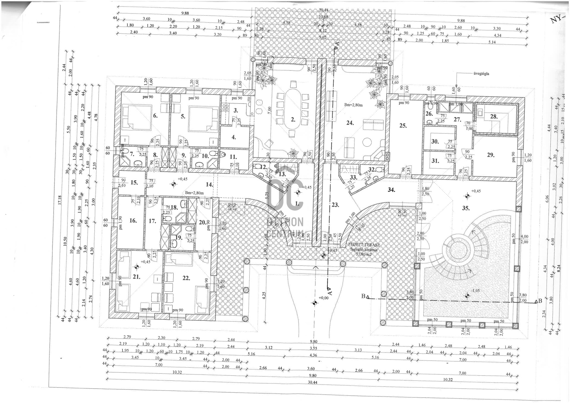
A közel 3000 m²-es telken elhelyezkedő 350 nm alapterületű épületben több apartman, beltéri medencetér, szauna, valamint egy beépíthető tetőtér is helyet kapott a tervek szerint – ezzel ideális alapot teremtve akár luxus családi ház, akár exkluzív vendégház kialakításához.
Főbb jellemzők:
Szerkezetkész állapot – az új tulajdonos igényei szerint fejezhető be
Beltéri wellnessrészleg: tervezett medence és szauna
Beépíthető tetőtér – bővítési lehetőség
Exkluzív, egyedi tervek
Csendes, zöldövezeti környezet
Kiváló megközelíthetőség – Budapest kb. 35 perc
Ceglédi Termálfürdő és Csúszdapark gyalog is csak néhány percre
Tökéletes választás:
- prémium nyaraló vagy céges pihenőház kialakítására
- vendégház vagy wellnesstérként működtetett befektetés céljára
- saját otthonnak, magas komfortfokozattal
Ne maradjon le erről a kivételes lehetőségről – hívjon még ma és tekintse meg személyesen!
Amennyiben hitelt szeretne, úgy az Otthon Centrum az ország egyik legnagyobb és legmegbízhatóbb hitelközvetítőjeként teljes körű és
díjmentes hitelügyintézéssel, biztosításkötéssel áll rendelkezésére!
Kérje személyre szabott ajánlatunkat Kollégáinktól!
A hirdetésben szereplő információk a megbízótól kapott adatok alapján készültek, pontosságukért felelősséget nem vállalunk! Az energetikai tanúsítvány besorolása és megadása a megbízó felelőssége. A megadott energetikai tanúsítványokat nem ellenőrizzük, azok valódiságáért felelősséget nem vállalunk!
A közel 3000 m²-es telken elhelyezkedő 350 nm alapterületű épületben több apartman, beltéri medencetér, szauna, valamint egy beépíthető tetőtér is helyet kapott a tervek szerint – ezzel ideális alapot teremtve akár luxus családi ház, akár exkluzív vendégház kialakításához.
Főbb jellemzők:
Szerkezetkész állapot – az új tulajdonos igényei szerint fejezhető be
Beltéri wellnessrészleg: tervezett medence és szauna
Beépíthető tetőtér – bővítési lehetőség
Exkluzív, egyedi tervek
Csendes, zöldövezeti környezet
Kiváló megközelíthetőség – Budapest kb. 35 perc
Ceglédi Termálfürdő és Csúszdapark gyalog is csak néhány percre
Tökéletes választás:
- prémium nyaraló vagy céges pihenőház kialakítására
- vendégház vagy wellnesstérként működtetett befektetés céljára
- saját otthonnak, magas komfortfokozattal
Ne maradjon le erről a kivételes lehetőségről – hívjon még ma és tekintse meg személyesen!
Amennyiben hitelt szeretne, úgy az Otthon Centrum az ország egyik legnagyobb és legmegbízhatóbb hitelközvetítőjeként teljes körű és
díjmentes hitelügyintézéssel, biztosításkötéssel áll rendelkezésére!
Kérje személyre szabott ajánlatunkat Kollégáinktól!
A hirdetésben szereplő információk a megbízótól kapott adatok alapján készültek, pontosságukért felelősséget nem vállalunk! Az energetikai tanúsítvány besorolása és megadása a megbízó felelőssége. A megadott energetikai tanúsítványokat nem ellenőrizzük, azok valódiságáért felelősséget nem vállalunk!
Registration Number
BI000556
Property Details
Sales
for sale
Character
developmental
Type of Development
Entire building
Subtype of Development
green zone villa
Net Size
355 m²
Plot Size
2,668 m²
Size of Terrace / Balcony
50 m²
Above-Ground Net Size
400 m²
Developable Net Size
1,000 m²
Developable Above-Ground Net Size
8,000 m²
Ceiling Height
300 cm
View
Green view
Condition
Average
Condition of Facade
Good
Year of Construction
2024
Developable Property
Apartment 1-20 units, Office, Hotel, Guesthouse, Hospitality, restaurant, Educational, healthcare institution