Exkluzív új építésű lakások Rózsadombon!
Előértékesítésben már Ön is lekötheti a 7 exkluzív lakás egyikét!
Rózsadombot nem véletlenül tartják Budapest legimpozánsabb és legnívósabb részének.. közel a város, mégis a túlzsúfoltság és a belvárosi érzet azonnal elillan amikor belépünk Budapest különleges villanegyedébe.
A város közepén emelkedő városrészt az átlagemberek képzeletében egyfajta misztikum övezi és már messziről feltekintve megcsodálhatjuk a büszke hivalkodó villákkal ékített hegyoldalt.
A terület már évtizedek óta a luxus és a gazdagság jelképe, egyfajta státusz szimbólum, aki itt él az egy elit réteg részese.
Amennyiben csak kényelemre vágyik jó helyen jár:
minden szolgáltatás megtalálható a közvetlen lokációban!
- rangos iskolák
- sportolási lehetőségek
-tökéletes tömegközlekedés, a Széll Kálmán térről az egész várost könnyedén elérheti!
- üzletek, éttermek, mozi, bankok, telefonszolgáltatók, egészségügyi szolgáltatók, és a szolgáltatások összessége elérhető a Mammut bevásárlóközpontban
- továbbá 5 percre található kutyafuttató ahová leviheti házi kedvencét is!
Az épületünk kiváló adottságokkal fog rendelkezni, központi, könnyen megközelíthető, mégis csendes és zöld környezetben helyezkedik el.
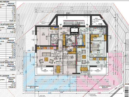
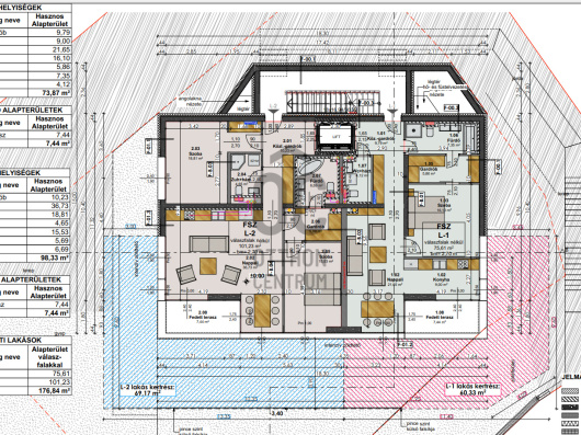
A 3 szintes újépítésű társasházban 7 lakás kerül kialakításra, amely prémium minőségű anyagokkal és modern műszaki megoldásokkal összességével került megtervezésre!
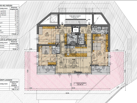
Szintenként csupán 2 lakás kerül kialakításra, különösen ügyelve a privát terekre és a legfelső emeleten az egész szintes penthouse magasodik a város fölé!
A lakások már a II. emelettől budai panorámával rendelkeznek!
Egy prémium ingatlanhoz prémium belső dukál!
A választható belső kialakítás mellett az alaprajzi kialakítás is személyre szabható, így minden lakás a vevő egyéniségét és elképzeléseit tükrözi!
A lakások mindegyikét elneveztük, mivel nincs 2 azonos, mivel a Rózsadombon járunk minden lakás nevét egy virág ihlette.
MŰSZAKI TARTALOM
A műszaki tartalom minden pontban megfelel a legkomolyabb elvárásoknak!
Prémium minőségű burkolatok, szaniterek és belső ajtók a vevők elképzelései szerint!
A lakások hűtését és fűtését hőszivattyú biztosítja!
teremgarázshely 13 MFT/db
tároló 5 MFT/db áron vásárolható!
TÖMEGKÖZLEKEDÉS
buszok: 11, 91, 191, 111, 149, 291, 931
Ne hagyja ki ezt a ritka lehetőséget, hogy egy új, modern otthon részese legyen ezen a csendes, zöld környéken!
Tegye meg az első lépést a kényelmes és modern otthona felé és hívjon fel, amennyiben Ön is
egy csendes, zöld környéken szeretne élni mindennapjait!
A részletekért, kérem hívjon!
Rózsadombot nem véletlenül tartják Budapest legimpozánsabb és legnívósabb részének.. közel a város, mégis a túlzsúfoltság és a belvárosi érzet azonnal elillan amikor belépünk Budapest különleges villanegyedébe.
A város közepén emelkedő városrészt az átlagemberek képzeletében egyfajta misztikum övezi és már messziről feltekintve megcsodálhatjuk a büszke hivalkodó villákkal ékített hegyoldalt.
A terület már évtizedek óta a luxus és a gazdagság jelképe, egyfajta státusz szimbólum, aki itt él az egy elit réteg részese.
Amennyiben csak kényelemre vágyik jó helyen jár:
minden szolgáltatás megtalálható a közvetlen lokációban!
- rangos iskolák
- sportolási lehetőségek
-tökéletes tömegközlekedés, a Széll Kálmán térről az egész várost könnyedén elérheti!
- üzletek, éttermek, mozi, bankok, telefonszolgáltatók, egészségügyi szolgáltatók, és a szolgáltatások összessége elérhető a Mammut bevásárlóközpontban
- továbbá 5 percre található kutyafuttató ahová leviheti házi kedvencét is!
Az épületünk kiváló adottságokkal fog rendelkezni, központi, könnyen megközelíthető, mégis csendes és zöld környezetben helyezkedik el.
A 3 szintes újépítésű társasházban 7 lakás kerül kialakításra, amely prémium minőségű anyagokkal és modern műszaki megoldásokkal összességével került megtervezésre!
Szintenként csupán 2 lakás kerül kialakításra, különösen ügyelve a privát terekre és a legfelső emeleten az egész szintes penthouse magasodik a város fölé!
A lakások már a II. emelettől budai panorámával rendelkeznek!
Egy prémium ingatlanhoz prémium belső dukál!
A választható belső kialakítás mellett az alaprajzi kialakítás is személyre szabható, így minden lakás a vevő egyéniségét és elképzeléseit tükrözi!
A lakások mindegyikét elneveztük, mivel nincs 2 azonos, mivel a Rózsadombon járunk minden lakás nevét egy virág ihlette.
MŰSZAKI TARTALOM
A műszaki tartalom minden pontban megfelel a legkomolyabb elvárásoknak!
Prémium minőségű burkolatok, szaniterek és belső ajtók a vevők elképzelései szerint!
A lakások hűtését és fűtését hőszivattyú biztosítja!
teremgarázshely 13 MFT/db
tároló 5 MFT/db áron vásárolható!
TÖMEGKÖZLEKEDÉS
buszok: 11, 91, 191, 111, 149, 291, 931
Ne hagyja ki ezt a ritka lehetőséget, hogy egy új, modern otthon részese legyen ezen a csendes, zöld környéken!
Tegye meg az első lépést a kényelmes és modern otthona felé és hívjon fel, amennyiben Ön is
egy csendes, zöld környéken szeretne élni mindennapjait!
A részletekért, kérem hívjon!