Sárvár közelében újszerű családi ház eladó
        Ha modern, kényelmes vidéki életre vágyik, ide csak költözni kell !
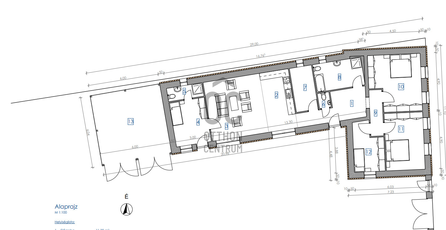
Rábapatyon, Sárvártól 7 km-re eladó újszerű, 4 szobás+ amerikai konyhás családi ház, parkosított , medencével ellátott 2476 nm-es telken.
A település fekvése miatt közkedvelt. Az M86 gyorsforgalmi út és Sárvár rövid autóúttal elérhető. Sopron és Szombathely 30-50 km távolságra.
Helyben iskola ,óvoda, orvosi ellátás szolgálja az itt élők mindennapjait.
Az utcafronti L alakú épület 1950 -ben épült, téglából.
Teljes átépítése zajlik, kulcsrakész állapot 2024. áprilisra várható.
Jelenlegi tulajdonosai tégláig visszabontották, teljesen új tetőszerkezetet kapott, födém 20 cm ásványgyapottal szigetelt. Külső szigetelése 15 cm . Nyílászárók 3 rétegű hang-,hőszigetelt üveggel ellátott műanyagok, az aljzat utólagos hőszigetelése megvalósult.
Fűtését energiatakarékos Vaillant hőszivattyú látja el padlófűtés hőleadással. Hálószobák burkolata laminált padló, a többi helyiség kerámia lappal borított. Víz, csatorna, villanyvezeték rendszer kiépítése teljesen új. 3 hálószoba tágas, kényelmes lakóteret biztosít. Konyha-nappali-étkező egy légtérben kényelmesen megtarthatók a családi rendezvények. Fürdőszoba tágas, kád és épített zuhany is használható. A konyha bútorozva gépesítve a vételár részét képezi !
Kialakításra került egy vendégszoba kapcsolódó vizes blokkal ami akár vállalkozás működtetésére is kiváló lehetőséget teremt. 2 bejáratú, lakásból és udvarról is megközelíthető.
Terasz illetve az udvar térkővel burkolt, jelenleg folyamatban vannak ezen munkálatok. Az udvaron 2 állásos garázs áll rendelkezésre.
Kert parkosított, gondozott zárt kerítéssel körülvett minden irányból. 7x3 méteres medence teljesen felszerelt gépházzal nyújt nyáron kellemes lazítást tulajdonosainak. Helyett kapott a medence közelében egy vizesblokkal felszerelt nyárilak, amely a pihenést ,kerti sütögetést, vendégek elszállásolását teszi lehetővé.
A településen falusi CSOK és egyéb hiteltermékek igénybe vehetők!
                        Rábapatyon, Sárvártól 7 km-re eladó újszerű, 4 szobás+ amerikai konyhás családi ház, parkosított , medencével ellátott 2476 nm-es telken.
A település fekvése miatt közkedvelt. Az M86 gyorsforgalmi út és Sárvár rövid autóúttal elérhető. Sopron és Szombathely 30-50 km távolságra.
Helyben iskola ,óvoda, orvosi ellátás szolgálja az itt élők mindennapjait.
Az utcafronti L alakú épület 1950 -ben épült, téglából.
Teljes átépítése zajlik, kulcsrakész állapot 2024. áprilisra várható.
Jelenlegi tulajdonosai tégláig visszabontották, teljesen új tetőszerkezetet kapott, födém 20 cm ásványgyapottal szigetelt. Külső szigetelése 15 cm . Nyílászárók 3 rétegű hang-,hőszigetelt üveggel ellátott műanyagok, az aljzat utólagos hőszigetelése megvalósult.
Fűtését energiatakarékos Vaillant hőszivattyú látja el padlófűtés hőleadással. Hálószobák burkolata laminált padló, a többi helyiség kerámia lappal borított. Víz, csatorna, villanyvezeték rendszer kiépítése teljesen új. 3 hálószoba tágas, kényelmes lakóteret biztosít. Konyha-nappali-étkező egy légtérben kényelmesen megtarthatók a családi rendezvények. Fürdőszoba tágas, kád és épített zuhany is használható. A konyha bútorozva gépesítve a vételár részét képezi !
Kialakításra került egy vendégszoba kapcsolódó vizes blokkal ami akár vállalkozás működtetésére is kiváló lehetőséget teremt. 2 bejáratú, lakásból és udvarról is megközelíthető.
Terasz illetve az udvar térkővel burkolt, jelenleg folyamatban vannak ezen munkálatok. Az udvaron 2 állásos garázs áll rendelkezésre.
Kert parkosított, gondozott zárt kerítéssel körülvett minden irányból. 7x3 méteres medence teljesen felszerelt gépházzal nyújt nyáron kellemes lazítást tulajdonosainak. Helyett kapott a medence közelében egy vizesblokkal felszerelt nyárilak, amely a pihenést ,kerti sütögetést, vendégek elszállásolását teszi lehetővé.
A településen falusi CSOK és egyéb hiteltermékek igénybe vehetők!
 
            
                                                             
            
                                                             
            
                                                             
            
                                                             
            
                                                             
            
                                                             
            
                                                             
            
                                                             
            
                                                             
            
                                                             
            
                                                             
            
                                                             
            
                                                             
            
                                                             
                     
                             
                             
                             
                             
                             
                             
                             
                             
                             
                             
                             
                             
                             
                             
                 
                    
                