238 000 000 Ft
628 000 €
- 137m²
- földszint
Newly Built Commercial Space for Sale!
I am offering for sale a newly constructed unit located on the ground floor of a building, situated in the vicinity of Lőportárdűlő, close to the City Center - City Park - Margaret Island - Westend City Center - Váci Road Office Corridor, surrounded by newly built residential complexes. The exceptional visibility and significant traffic provide an ideal backdrop for business, office, or investment use. It could also be suitable for a company headquarters or a showroom, as well as various retail or service-oriented businesses. Total Area: 171 m²
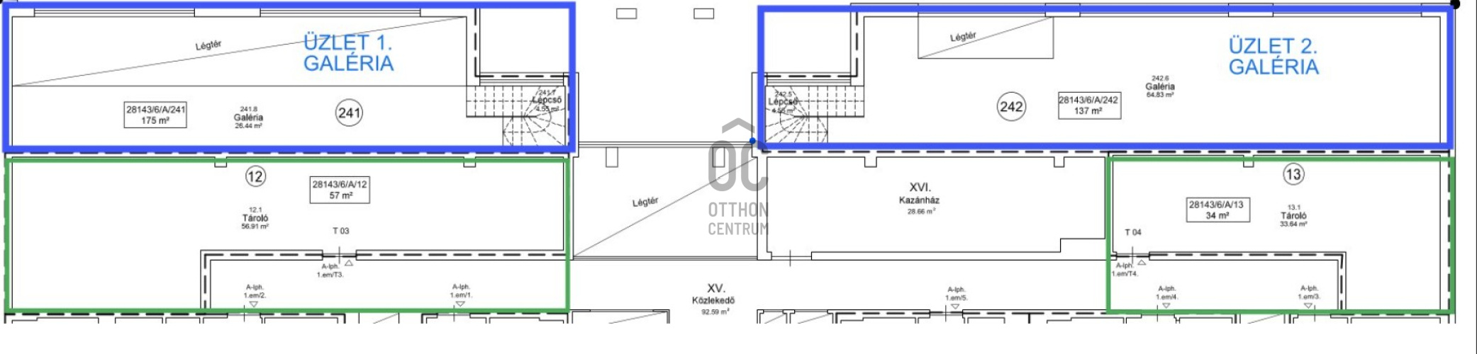
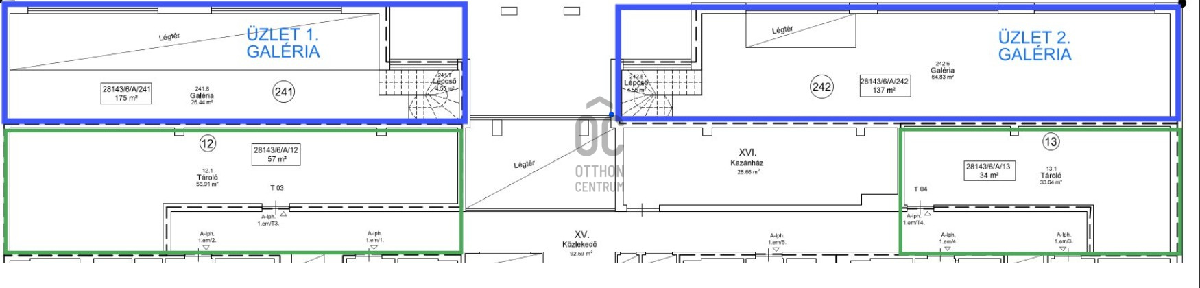
Retail Space: 137 m²* *Storage on the Gallery: +34 m² (can be combined with the retail space if desired)
Layout: Ground floor + Gallery
Condition: Shell and core – customizable according to personal needs
Modern Technical Features
Preparation for ceiling cooling and heating
Preparation for underfloor heating
Purchase Price: 238 million HUF + VAT*
The location also offers numerous advantages in terms of transportation. The M3 metro line, tram lines 12 and 14, and several bus routes are all just a stone's throw away, making it easily accessible for those traveling by car as well. The proximity to Budapest's most popular office market location, the Váci Road Office Corridor, is also a significant advantage from an investment perspective. For more information and to arrange a viewing, please feel free to call!
Retail Space: 137 m²* *Storage on the Gallery: +34 m² (can be combined with the retail space if desired)
Layout: Ground floor + Gallery
Condition: Shell and core – customizable according to personal needs
Modern Technical Features
Preparation for ceiling cooling and heating
Preparation for underfloor heating
Purchase Price: 238 million HUF + VAT*
The location also offers numerous advantages in terms of transportation. The M3 metro line, tram lines 12 and 14, and several bus routes are all just a stone's throw away, making it easily accessible for those traveling by car as well. The proximity to Budapest's most popular office market location, the Váci Road Office Corridor, is also a significant advantage from an investment perspective. For more information and to arrange a viewing, please feel free to call!
Regisztrációs szám
UZ019433
Az ingatlan adatai
Értékesités
eladó
Jogi státusz
új
Jelleg
üzleti célú
Típus
épületrész
Építési mód
tégla
Méret
137 m²
Föld feletti nettó méret
137 m²
Fűtés
hőszivattyú
Belmagasság
300 cm
Állapot
Kiváló
Homlokzat állapota
Kiváló
Lépcsőház állapota
Kiváló
Építés éve
2025
Víz
Van
Villany
Van
Csatorna
Van
Láthatóság
Nagy gyalogosforgalmú utcában jól látható
Megközelíthetőseg
Nagy gyalogosforgalmú utcára nyíló bejárat
Hasznosítás
üres
Németh István
Hitelszakértő