2 000 000 Ft
5 200 €
- 326m²
- földszint
Többszintes üzlethelyiség kiemelt belvárosi lokációban - V. kerület
KIADÓ ÜZLETHELYISÉG - V. KERÜLET
A 2-es metró, a 2-es villamos, buszok, trolik közvetlen közelében kínálunk egy belső 2 szintes üzlethelyiséget, mely nagy üvegportállal, bérelhető vendégfogadó terasszal várja új bérlőjét.
Frekventált belvárosi elhelyezkedés az V. kerületben. A Parlament, a Duna-part és a Kossuth tér 1-2 percnyi sétára található.
Az ingatlan jellemzői:
– belső kétszintes kialakítás
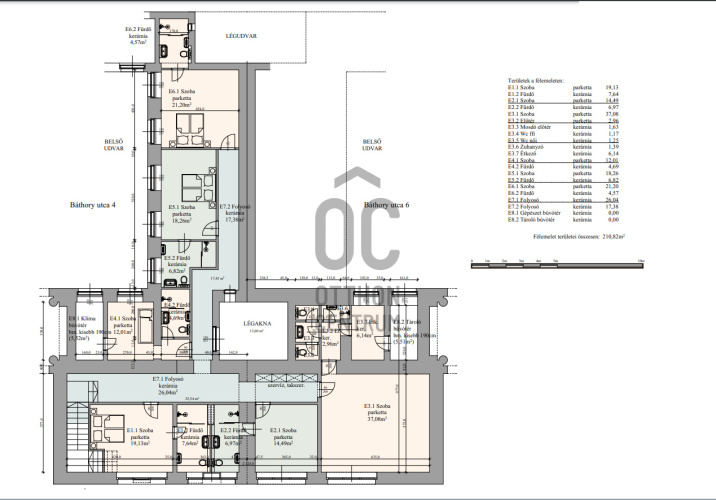
– össz. alapterület: 326 m²
Alsó szint: 115 m²
– fogadótér
– vendégtér
– konyha rész (reggeliztetésre alkalmas)
Felső szint: 211 m²
– 6 különálló apartman
– mindegyik saját fürdőszobával kialakított
Hasznosítás:
– jelenleg üzlethelyiségként kiadó
– panzió funkció is opció lehet, de kizárólag a bérlő által lefolytatott engedélyezési eljárással
– a belső kialakítás és funkció véglegesítése a bérlő feladata
Állapot, berendezés:
– jelenlegi állapotában bérelhető
– részben bútorozott azonban a meglévő bútorzat megegyezés tárgyát képezi
- fűtés: gázkazán radiátoros hőleadókkal
- az alsó szinten klíma egységek kerültek felszerelésre
- az ingatlan külső és belső homlokzata védettség alatt áll, így az emeleti rész hűtését mobilklíma eszközökkel lehetséges kivitelezni
Költségek:
– bérleti díj: 2.000.000 Ft + ÁFA / hó
– kaució: 3 havi bérleti díj – 6.000.000 Ft + ÁFA
– Közös költség: 300 Ft / m²
Egyéb:
– hosszú távra kiadó
– kifejezetten ideális befektetési, szálláshely-fejlesztési célra
Amenniyben érdekes lehet Önnek az ingatlan, kérem keressen feltüntetett elérhetőségeimen.
A 2-es metró, a 2-es villamos, buszok, trolik közvetlen közelében kínálunk egy belső 2 szintes üzlethelyiséget, mely nagy üvegportállal, bérelhető vendégfogadó terasszal várja új bérlőjét.
Frekventált belvárosi elhelyezkedés az V. kerületben. A Parlament, a Duna-part és a Kossuth tér 1-2 percnyi sétára található.
Az ingatlan jellemzői:
– belső kétszintes kialakítás
– össz. alapterület: 326 m²
Alsó szint: 115 m²
– fogadótér
– vendégtér
– konyha rész (reggeliztetésre alkalmas)
Felső szint: 211 m²
– 6 különálló apartman
– mindegyik saját fürdőszobával kialakított
Hasznosítás:
– jelenleg üzlethelyiségként kiadó
– panzió funkció is opció lehet, de kizárólag a bérlő által lefolytatott engedélyezési eljárással
– a belső kialakítás és funkció véglegesítése a bérlő feladata
Állapot, berendezés:
– jelenlegi állapotában bérelhető
– részben bútorozott azonban a meglévő bútorzat megegyezés tárgyát képezi
- fűtés: gázkazán radiátoros hőleadókkal
- az alsó szinten klíma egységek kerültek felszerelésre
- az ingatlan külső és belső homlokzata védettség alatt áll, így az emeleti rész hűtését mobilklíma eszközökkel lehetséges kivitelezni
Költségek:
– bérleti díj: 2.000.000 Ft + ÁFA / hó
– kaució: 3 havi bérleti díj – 6.000.000 Ft + ÁFA
– Közös költség: 300 Ft / m²
Egyéb:
– hosszú távra kiadó
– kifejezetten ideális befektetési, szálláshely-fejlesztési célra
Amenniyben érdekes lehet Önnek az ingatlan, kérem keressen feltüntetett elérhetőségeimen.
Regisztrációs szám
UZ019284
Az ingatlan adatai
Értékesités
kiadó
Jogi státusz
használt
Jelleg
üzleti célú
Típus
épületrész
Építési mód
tégla
Méret
326 m²
Föld feletti nettó méret
326 m²
Belmagasság
300 cm
Lakáson belüli szintszám
2
Állapot
Jó
Homlokzat állapota
Jó
Lépcsőház állapota
Jó
Közös költség
100000
Víz
Van
Gáz
Van
Villany
Van
Csatorna
Van
Vízpart távolsága
200 méterre
Lehetséges funkciók
vendéglátóipari egység, panzió, hostel, egyéb
Láthatóság
Nagy gyalogosforgalmú utcában jól látható
Megközelíthetőseg
Nagy gyalogosforgalmú utcára nyíló bejárat
Hasznosítás
üres
Tóth Róbert
Hitelszakértő