Eladó üzleti célú ingatlan, UZ019226
Győr

69 900 000 Ft

184 000 €

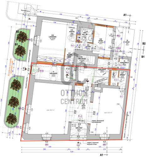
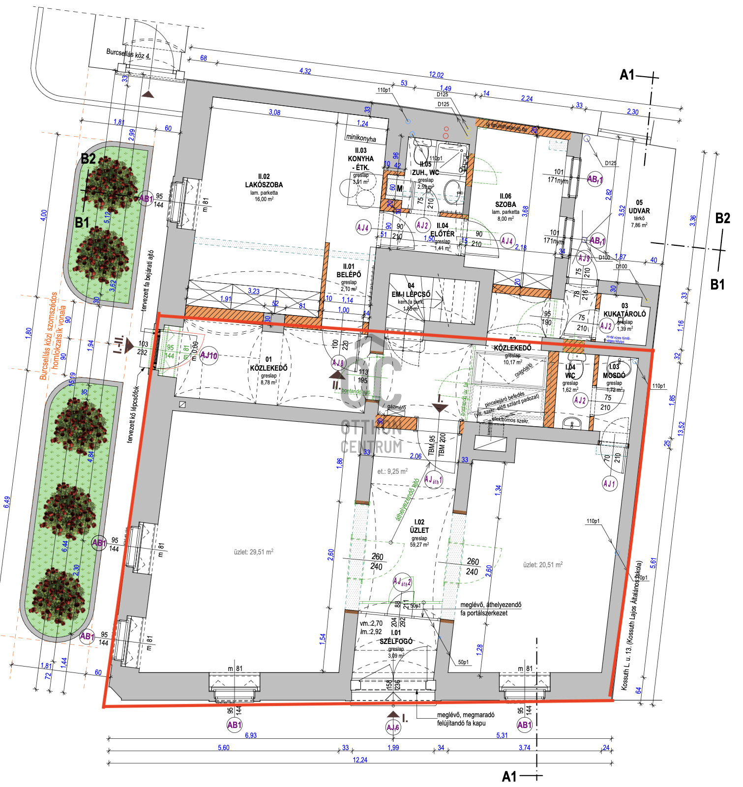
  • 65,7m²
  • földszint

Sokoldalú üzlethelyiség

Tágas, világos és könnyen alakítható üzlethelyiség, amely 65,70 m² teljes alapterületével számtalan üzleti tevékenységnek ad otthont.

Az elrendezés rugalmas, a tér akár le is választható, és lehetőség van további vizesblokk kialakítására.

Kiváló választás irodának, bemutatóteremnek, stúdiónak vagy üzlethelyiségnek, ahol fontos a funkcionalitás, a láthatóság és a praktikus kialakítás.

Az ingatlan ritka lehetőség a piacon: jó elhelyezkedésű, könnyen megközelíthető, és parkolási lehetőséggel is rendelkezik, ami különösen értékes a bérlők számára.
Az üzlethelyiség könnyen kiadható, így befektetésnek is ideális választás.

69.900.000 Ft + ÁFA

Hitelre van szüksége?
Az Otthon Centrum, az ország egyik legnagyobb és legmegbízhatóbb hitelközvetítője, teljes körű és díjmentes hitelügyintézéssel, valamint biztosításkötéssel segíti ügyfeleit.
Kérje kollégáinktól személyre szabott ajánlatát, és találja meg a legjobb megoldást gyorsan és egyszerűen!

Regisztrációs szám

UZ019226

Az ingatlan adatai

Értékesités
eladó
Jogi státusz
új
Jelleg
üzleti célú
Típus
épületrész
Építési mód
tégla
Méret
65,7 m²
Föld feletti nettó méret
65 m²
Belmagasság
265 cm
Panoráma
városi panoráma
Állapot
Kiváló
Homlokzat állapota
Kiváló
Lépcsőház állapota
Kiváló
Építés éve
2025
Víz
Van
Gáz
Van
Villany
Van
Csatorna
Van

 

Lehetséges funkciók
iroda, iroda és bemutatóterem, vagy üzlet, bemutatóterem
Láthatóság
Forgalmas főútról jól látható
Megközelíthetőseg
Nagy gyalogosforgalmú utcára nyíló bejárat
Hasznosítás
üres

Irodánk kínálatából - Győr - Liget utca

for sale apartment

Index image
data_sheet.details.realestate.section.main.otthonstart_flag.label
30

for sale apartment

Index image
data_sheet.details.realestate.section.main.otthonstart_flag.label
20

for sale apartment

Index image
data_sheet.details.realestate.section.main.otthonstart_flag.label
16

for sale panel apartment

Index image
data_sheet.details.realestate.section.main.otthonstart_flag.label
13

for sale semi-detached house

Index image
data_sheet.details.realestate.section.main.otthonstart_flag.label
29

for sale panel apartment

Index image
data_sheet.details.realestate.section.main.otthonstart_flag.label
9

for sale family house

Index image
data_sheet.details.realestate.section.main.otthonstart_flag.label
18

for sale family house

Index image
data_sheet.details.realestate.section.main.otthonstart_flag.label
32