470 000 000 Ft
1 253 000 €
- 1 078m²
A mai világban szükség van egy erős várra!
Eladó egy ritka gyöngyszem.
Befektetésre és üzemeltetésre egyaránt alkalmas.
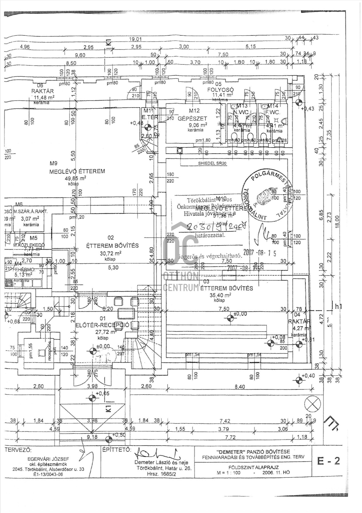
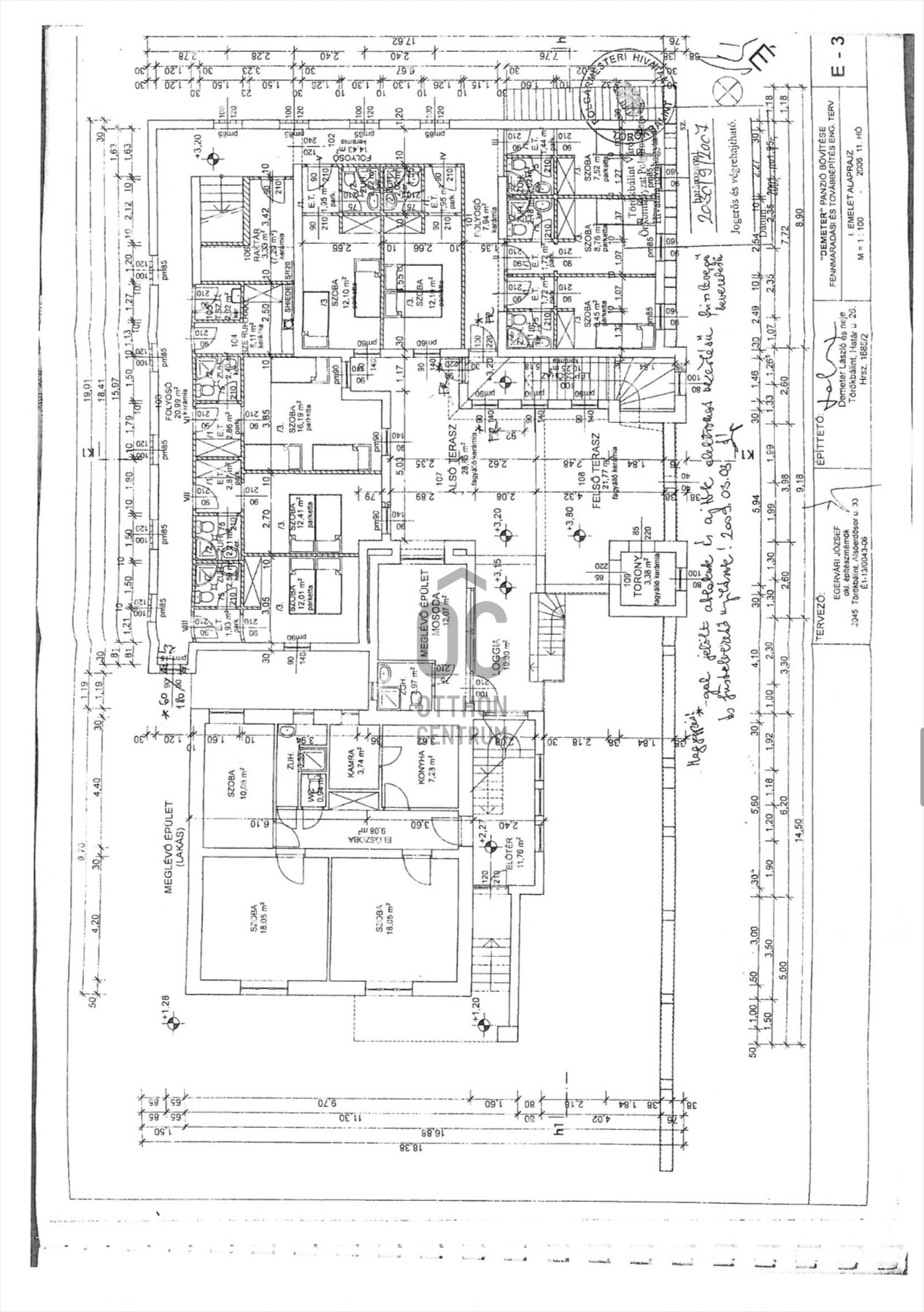
Funkcióját tekintve nagyon sokrétű! Eredetileg közkedvelt lovagétterem és panzió volt. Jelenleg alkalmas munkásszállónak, öregotthonnak, demencia napközinek,(ez államilag is támogatott), valamint a szobák külön albérleteknek is kiadhatók. Mindegyik szobában található vizesblokk is, és az újabb építésű szárnyban klimatizálva is vannak.(hűtő-fűtő)
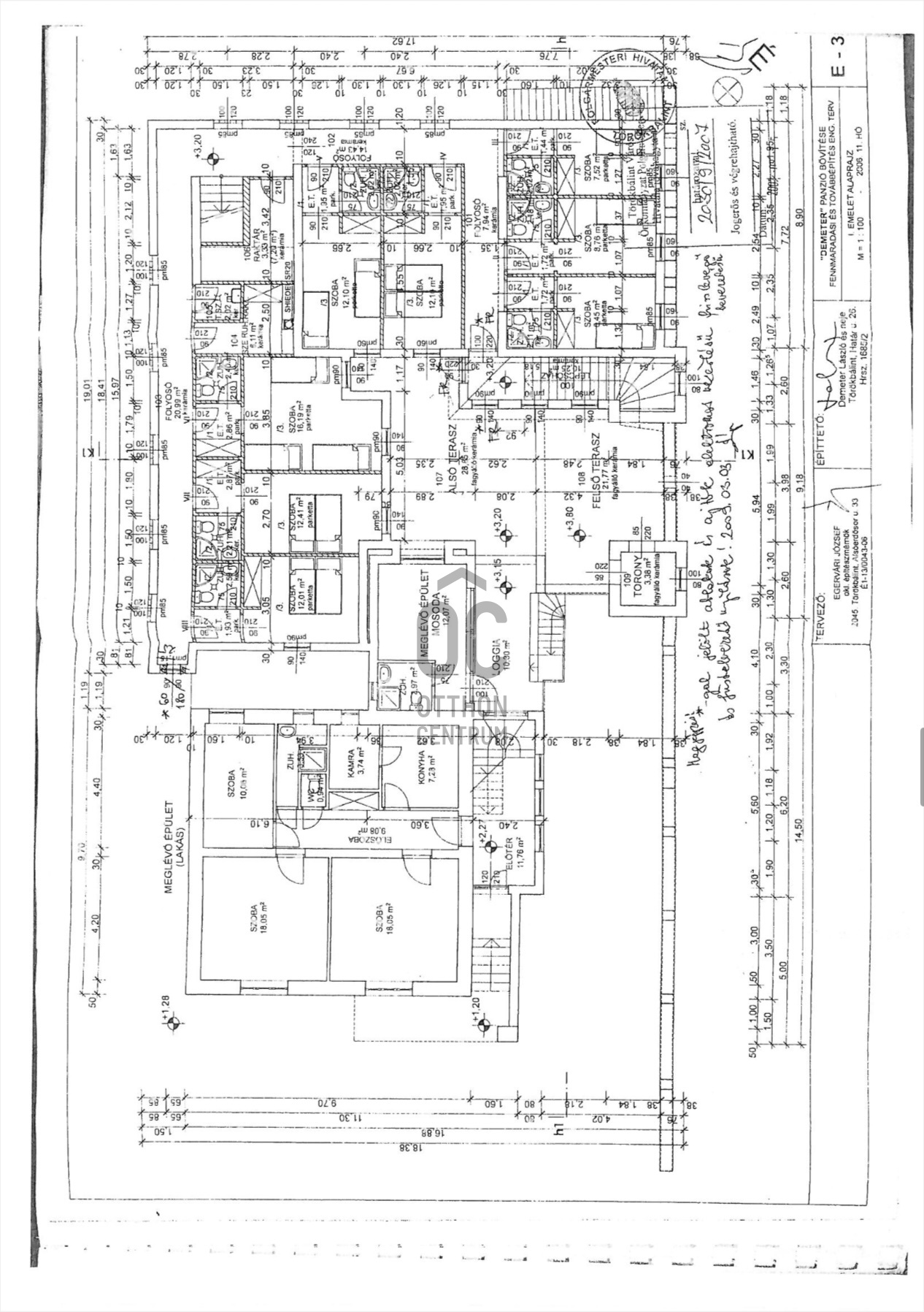
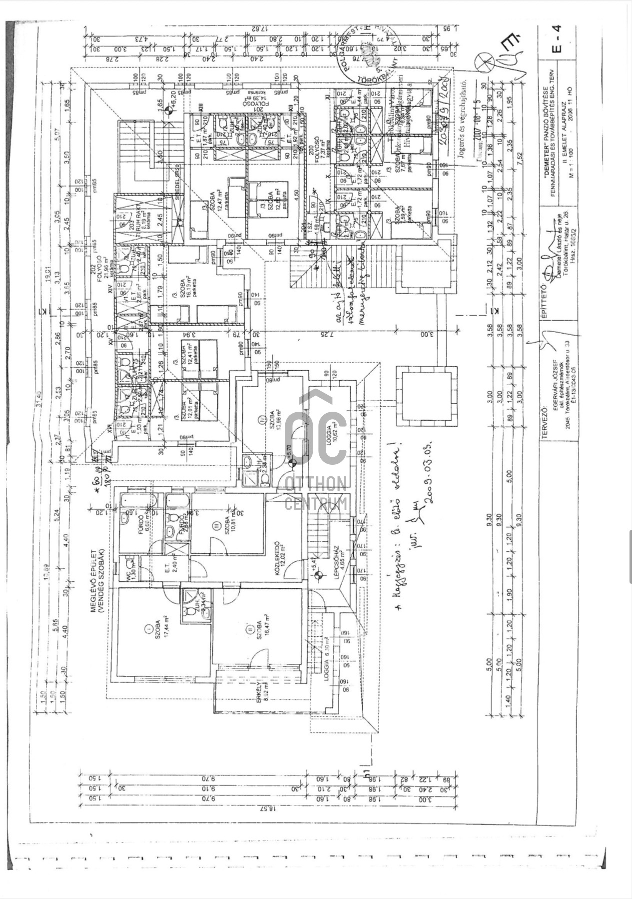
Az épületben összesen 25db szoba található, 18db az új szárnyban, és 7db a régebbiben.
Az alsó szinten egy 100 fős étterem található, konyhával, és raktárakkal. A környéken nincs kifőzde, ezért kiválóan alkalmas erre is, vagy a szobákhoz tartozó közösségi terekként. Megközelítés nagyon optimális, 5 percre helyezkedik el az M1-es bevezető szakaszától, ám mégis csendes nyugodt környezetben. Érdemes foglalkozni vele!
Befektetésre és üzemeltetésre egyaránt alkalmas.
Funkcióját tekintve nagyon sokrétű! Eredetileg közkedvelt lovagétterem és panzió volt. Jelenleg alkalmas munkásszállónak, öregotthonnak, demencia napközinek,(ez államilag is támogatott), valamint a szobák külön albérleteknek is kiadhatók. Mindegyik szobában található vizesblokk is, és az újabb építésű szárnyban klimatizálva is vannak.(hűtő-fűtő)
Az épületben összesen 25db szoba található, 18db az új szárnyban, és 7db a régebbiben.
Az alsó szinten egy 100 fős étterem található, konyhával, és raktárakkal. A környéken nincs kifőzde, ezért kiválóan alkalmas erre is, vagy a szobákhoz tartozó közösségi terekként. Megközelítés nagyon optimális, 5 percre helyezkedik el az M1-es bevezető szakaszától, ám mégis csendes nyugodt környezetben. Érdemes foglalkozni vele!
Regisztrációs szám
UZ019039
Az ingatlan adatai
Értékesités
eladó
Jogi státusz
használt
Jelleg
üzleti célú
Típus
teljes épület
Építési mód
tégla
Méret
1 078 m²
Telek méret
629 m²
Föld feletti nettó méret
1 008 m²
Kert méret
50 m²
Fűtés
Gáz cirkó
Belmagasság
275 cm
Lakáson belüli szintszám
3
Panoráma
városi panoráma
Állapot
Jó
Homlokzat állapota
Jó
Építés éve
2007
Társaház kert
igen
Víz
Van
Gáz
Van
Villany
Van
Csatorna
Van
Lehetséges funkciók
kiskereskedelem
Láthatóság
Mellékutcában utcafronton lévő
Megközelíthetőseg
Mellékutcára nyíló bejárat
Hasznosítás
üres