200 000 000 Ft
511 000 €
- 245m²















Ahol a minőség találkozik a lehetőséggel
Egyedülálló vendéglátóipari lehetőség Velencén – cukrászda és külön lakás eladó
Főbb paraméterek:
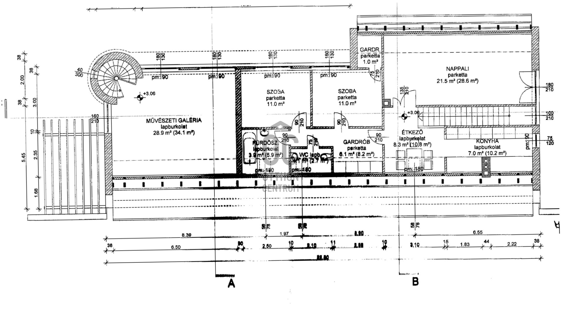
• Teljes alapterület: 245 m²
◦ Vendéglátó egység: 160 m² (üzlettér, műhely, kamra, tároló, iroda, öltöző, zuhanyzó)
◦ Külön bejáratú lakás az emeleten: 85 m² (nappali, konyha-étkező, 2 szoba, fürdőszoba, külön mellékhelyiség)
• Az épület nem átalakított családi ház, hanem célzottan cukrászdának, cukrászműhelynek épült
Egyedülálló üzleti lehetőség:
• A Velencei-tó környékének egyetlen 100%-ban gluténmentes cukrászdája és műhelye
• Napi átlagosan 100-150 vásárló
• Stabil, egész éves forgalom, nem szezonális működés
• Bejáratott viszonteladói hálózat: 8-10 megbízható partner
• Helyi jómódú törzsvásárlói kör biztosítja a kiszámítható bevételt
• Az ár tartalmazza a teljes professzionális berendezést, 25 millió forint értékben
További előnyök és extrák:
• Saját parkoló 11 autó számára
• Igényes, rendezett kert
• Napelem rendszer: 29,240 kWp kapacitás
• Elektromos autó töltő kiállás
• Fúrt kút, amely ellátja az automata locsolórendszert és a mellékhelyiségek vízellátását
• Külső-belső kamerarendszer, mobilapplikációval vezérelhető
Kinek ajánljuk?
• Vállalkozóknak, akik azonnal működtethető, bejáratott vendéglátó egységet keresnek
• Befektetőknek, akik stabil hozamot biztosító ingatlant vásárolnának
• Cukrászoknak, pékmestereknek, gasztronómiai vállalkozóknak, akik saját műhelyt és üzlethelyiséget keresnek
• Családoknak vagy pároknak, akik a vállalkozás mellett lakhatást is egy helyen szeretnének
Lokáció: Velence, forgalmas főút mellett, kiváló megközelíthetőséggel, az M7-es autópálya lehajtójától mindössze 2 percre autóval.
#VelenceIngatlan #EladóCukrászda #GluténmentesÜzlet #BefektetésVelencén #VendéglátóIngatlan #KézművesCukrászda #VelenceiTó #IngatlanBefektetés #GluténmentesCukrászda #KávézóEladó #ÜzletiLehetőség #EladóIngatlan #Vendéglátás #VállalkozásEladó #GasztroIngatlan
Főbb paraméterek:
• Teljes alapterület: 245 m²
◦ Vendéglátó egység: 160 m² (üzlettér, műhely, kamra, tároló, iroda, öltöző, zuhanyzó)
◦ Külön bejáratú lakás az emeleten: 85 m² (nappali, konyha-étkező, 2 szoba, fürdőszoba, külön mellékhelyiség)
• Az épület nem átalakított családi ház, hanem célzottan cukrászdának, cukrászműhelynek épült
Egyedülálló üzleti lehetőség:
• A Velencei-tó környékének egyetlen 100%-ban gluténmentes cukrászdája és műhelye
• Napi átlagosan 100-150 vásárló
• Stabil, egész éves forgalom, nem szezonális működés
• Bejáratott viszonteladói hálózat: 8-10 megbízható partner
• Helyi jómódú törzsvásárlói kör biztosítja a kiszámítható bevételt
• Az ár tartalmazza a teljes professzionális berendezést, 25 millió forint értékben
További előnyök és extrák:
• Saját parkoló 11 autó számára
• Igényes, rendezett kert
• Napelem rendszer: 29,240 kWp kapacitás
• Elektromos autó töltő kiállás
• Fúrt kút, amely ellátja az automata locsolórendszert és a mellékhelyiségek vízellátását
• Külső-belső kamerarendszer, mobilapplikációval vezérelhető
Kinek ajánljuk?
• Vállalkozóknak, akik azonnal működtethető, bejáratott vendéglátó egységet keresnek
• Befektetőknek, akik stabil hozamot biztosító ingatlant vásárolnának
• Cukrászoknak, pékmestereknek, gasztronómiai vállalkozóknak, akik saját műhelyt és üzlethelyiséget keresnek
• Családoknak vagy pároknak, akik a vállalkozás mellett lakhatást is egy helyen szeretnének
Lokáció: Velence, forgalmas főút mellett, kiváló megközelíthetőséggel, az M7-es autópálya lehajtójától mindössze 2 percre autóval.
#VelenceIngatlan #EladóCukrászda #GluténmentesÜzlet #BefektetésVelencén #VendéglátóIngatlan #KézművesCukrászda #VelenceiTó #IngatlanBefektetés #GluténmentesCukrászda #KávézóEladó #ÜzletiLehetőség #EladóIngatlan #Vendéglátás #VállalkozásEladó #GasztroIngatlan
Regisztrációs szám
UZ018901
Az ingatlan adatai
Értékesités
eladó
Jogi státusz
használt
Jelleg
üzleti célú
Típus
teljes épület
Építési mód
tégla
Méret
245 m²
Telek méret
805 m²
Föld feletti nettó méret
245 m²
Fűtés
Gáz cirkó
Belmagasság
262 cm
Lakáson belüli szintszám
2
Panoráma
városi panoráma
Állapot
Kiváló
Homlokzat állapota
Kiváló
Építés éve
2007
Víz
Van
Gáz
Van
Villany
Van
Csatorna
Van
Vízpart távolsága
500 méterre
Lehetséges funkciók
kiskereskedelem, vendéglátóipari egység, iroda, iroda és bemutatóterem, vagy üzlet, iroda és raktár, bemutatóterem, panzió, hostel, egészségügyi központ, oktatási központ, bérház
Láthatóság
Forgalmas főútról jól látható
Megközelíthetőseg
Nagy gyalogosforgalmú utcára nyíló bejárat
Hasznosítás
tulajdosnos használja

Leitner-Paraidi Beáta Tímea
Hitelszakértő