279 000 000 Ft
723 000 €
- 451m²
Felújított utcafronti üzlethelyiség eladó Újlipótvárosban!
Remek lehetőség a Nyugatitól, 4-6 villamostól, Jászai Mari tértől pár perc sétára lévő kiváló állapotú utcafronti ingatlan.
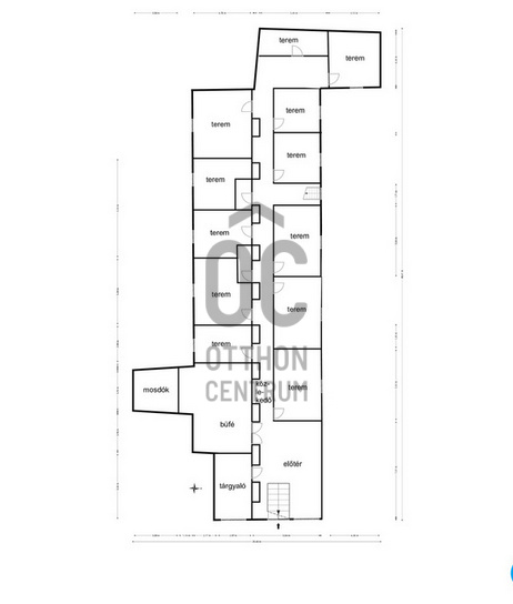
A bejárattól egy kényelmes lépcső vezet a közösségi térbe ahol recepció mellett felszerelt, jelenleg is működő büfé és kávézó fogadja az érkezőket.
A közösségi tér mellett összesen 12 külön bejáratú, 20-25 m² közötti helyiség van kialakítva. Mindegyik helyiség ablakos. Mindemellett további 4 kisebb raktár is kialakításra került.
Az ingatlan felújított, kiváló állapotban van azonnali használatra kész.
A teljes üzlethelyiség klimatizált, a fűtést korszerű infrapanelek biztosítják.
Vezetékes internet és wifi van minden helyiségben.
A hely hangulatát tovább emelik a kreatív belsőépítészeti megoldások. Kimondottan kedvelt helyszín az ügyfeleknek és dolgozóknak is.
Ha nagy alapterületű irodára, üzletre, esetleg más célra használható ingatlanra van szüksége kedvező lokáció mellett, akkor jöjjön és nézze meg mert lehet ennél nem talál jobbat!
A bejárattól egy kényelmes lépcső vezet a közösségi térbe ahol recepció mellett felszerelt, jelenleg is működő büfé és kávézó fogadja az érkezőket.
A közösségi tér mellett összesen 12 külön bejáratú, 20-25 m² közötti helyiség van kialakítva. Mindegyik helyiség ablakos. Mindemellett további 4 kisebb raktár is kialakításra került.
Az ingatlan felújított, kiváló állapotban van azonnali használatra kész.
A teljes üzlethelyiség klimatizált, a fűtést korszerű infrapanelek biztosítják.
Vezetékes internet és wifi van minden helyiségben.
A hely hangulatát tovább emelik a kreatív belsőépítészeti megoldások. Kimondottan kedvelt helyszín az ügyfeleknek és dolgozóknak is.
Ha nagy alapterületű irodára, üzletre, esetleg más célra használható ingatlanra van szüksége kedvező lokáció mellett, akkor jöjjön és nézze meg mert lehet ennél nem talál jobbat!
Regisztrációs szám
UZ018322
Az ingatlan adatai
Értékesités
eladó
Jogi státusz
használt
Jelleg
üzleti célú
Típus
épületrész
Építési mód
tégla
Méret
451 m²
Föld feletti nettó méret
1 m²
Belmagasság
360 cm
Állapot
Kiváló
Homlokzat állapota
Jó
Lépcsőház állapota
Jó
Víz
Van
Villany
Van
Csatorna
Van
Lehetséges funkciók
kiskereskedelem, vendéglátóipari egység, ipari csarnok vagy raktár, panzió, hostel, sportközpont, egészségügyi központ, oktatási központ
Hasznosítás
tulajdosnos használja
Vitéz Kornél
Hitelszakértő