549 000 Ft
1 430 €
- 105m²
- 2. emelet
I.ker. Történelmi hangulatú környezetben, patinás épületek, középkori eredetű műemlékek ölelésében, több helyiségből
álló iroda kiadó.
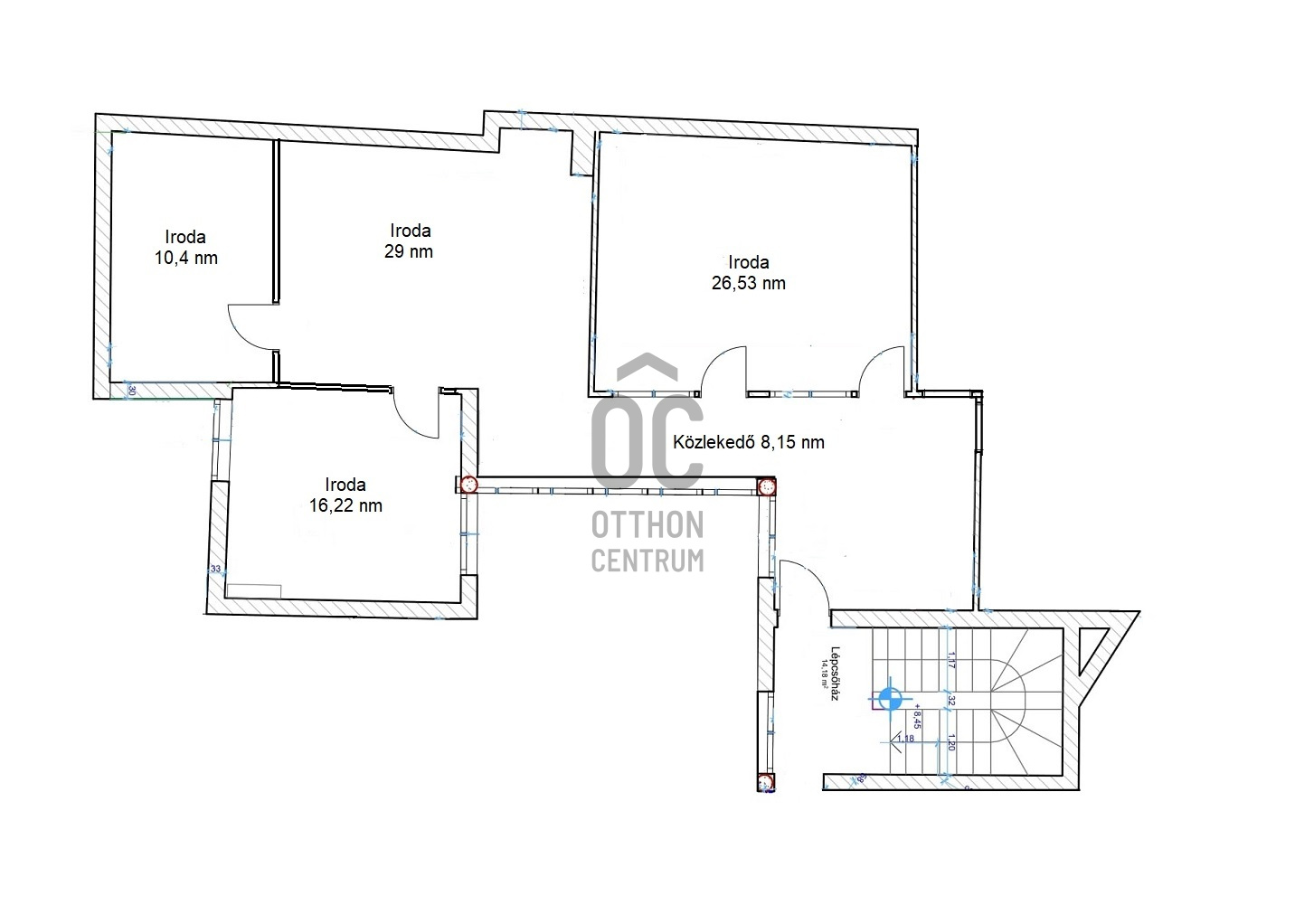
- jelenleg 4 helyiségre osztva, de igény szerint a belső elosztás módosítható,
- 2. emeleti, lift nincs,
- a közösségi terek használatát a bérlati díj tartalmazza ( mosdó, földszinti lobby, konyha-ebédlő )
- a tágas helyiségek, légkondicionáltak, napfényesek,
- a földszinti konferenciaterem és impozáns tárgyaló külön bérelhető akár egy-egy napra is ( épületen belül) .
- bútorozatlanok,
- az elegáns épületben több cég irodái működnek,
- bérleti díj: 13,0 EUR / nm
- üzemeltetési díj: 3 EUR / nm
- elektromos áram és gáz átalány külön fizetendő,
- takarítás (opcionális): külön díj ellenében.
- beltéri teremgarázs parkolási lehetőség: 35.000 HUF + ÁFA / hó díjért
- azonnal költözhető,
- Clark Ádám tér és a Batthyány tér között helyezkedik el, jól megközelíthető BKV járatokkal, ( villamosok, buszok, metró
pár perc séta )
- A modern építészet és a masszív középkori falak, freskók jól megférnek egymással az épületben, amely őrzi a régi
idők hangulatát.
álló iroda kiadó.
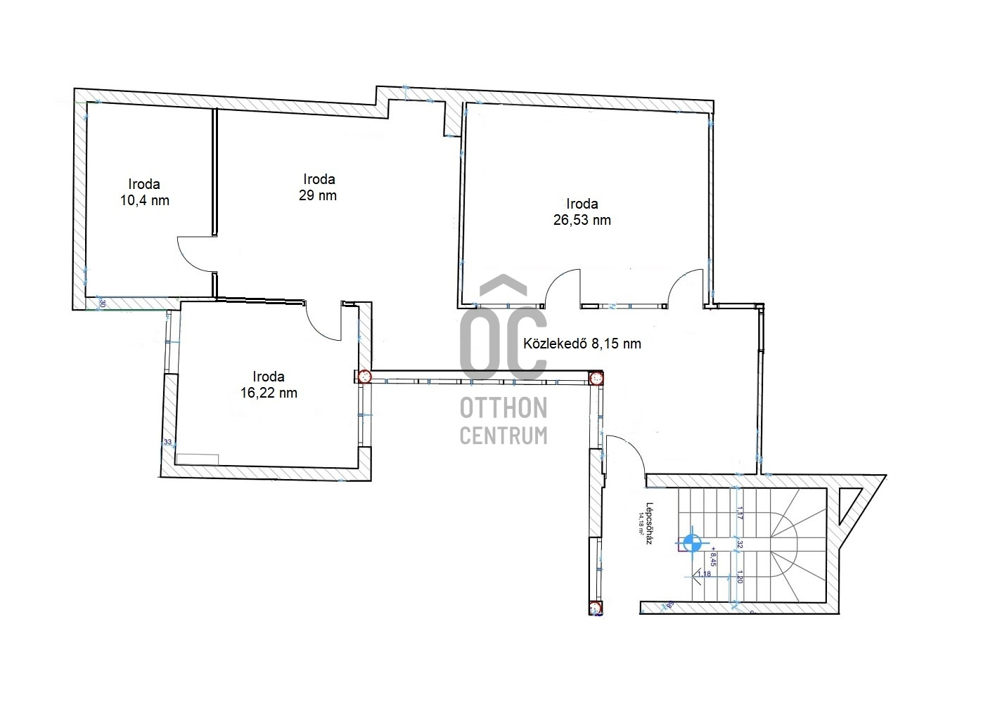
- jelenleg 4 helyiségre osztva, de igény szerint a belső elosztás módosítható,
- 2. emeleti, lift nincs,
- a közösségi terek használatát a bérlati díj tartalmazza ( mosdó, földszinti lobby, konyha-ebédlő )
- a tágas helyiségek, légkondicionáltak, napfényesek,
- a földszinti konferenciaterem és impozáns tárgyaló külön bérelhető akár egy-egy napra is ( épületen belül) .
- bútorozatlanok,
- az elegáns épületben több cég irodái működnek,
- bérleti díj: 13,0 EUR / nm
- üzemeltetési díj: 3 EUR / nm
- elektromos áram és gáz átalány külön fizetendő,
- takarítás (opcionális): külön díj ellenében.
- beltéri teremgarázs parkolási lehetőség: 35.000 HUF + ÁFA / hó díjért
- azonnal költözhető,
- Clark Ádám tér és a Batthyány tér között helyezkedik el, jól megközelíthető BKV járatokkal, ( villamosok, buszok, metró
pár perc séta )
- A modern építészet és a masszív középkori falak, freskók jól megférnek egymással az épületben, amely őrzi a régi
idők hangulatát.
Regisztrációs szám
UZ018280
Az ingatlan adatai
Értékesités
kiadó
Jogi státusz
használt
Jelleg
üzleti célú
Típus
épületrész
Építési mód
tégla
Méret
105 m²
Föld feletti nettó méret
105 m²
Fűtés
vegyes fan-coil
Belmagasság
280 cm
Lakáson belüli szintszám
1
Panoráma
városi panoráma
Állapot
Kiváló
Homlokzat állapota
Kiváló
Lépcsőház állapota
Kiváló
Víz
Van
Villany
Van
Csatorna
Van
Vízpart távolsága
200 méterre
Lehetséges funkciók
iroda
Láthatóság
Mellékutcában utcafronton lévő
Megközelíthetőseg
Mellékutcára nyíló bejárat
Hasznosítás
üres
Ruczek Krisztina
Hitelszakértő