Eladó kereskedelmi ingatlan, UZ016271
Budapest VI. kerület, Belső VI.

147 000 000 Ft

385 000 €

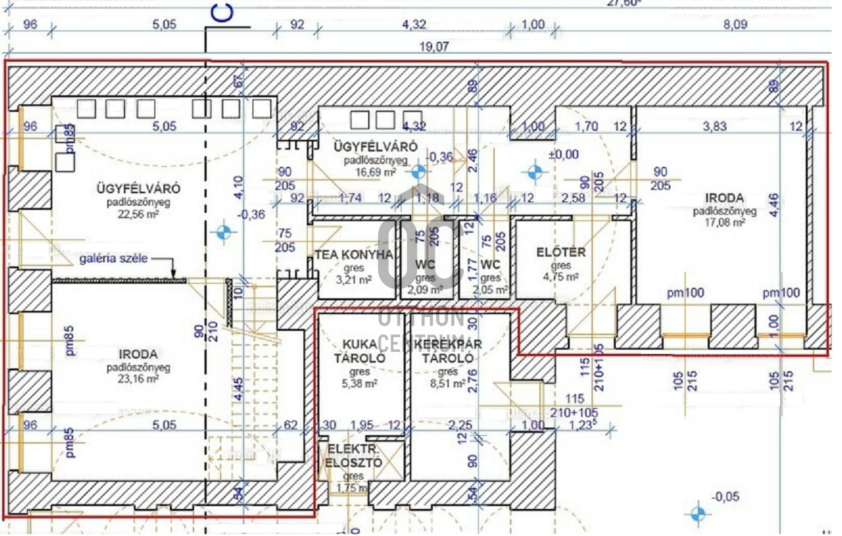
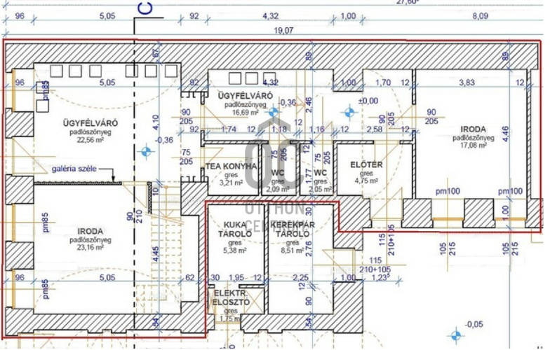
  • 108m²
  • földszint

Üzleti Lehetőség a Budapesti 6. Kerület Szívében!

Örömmel mutatjuk be Önnek ezt a lenyűgöző utcai bejáratos, galériázott üzlethelyiséget, mely a Budapesti 6. kerület szívében található az Andrássy út és a Király utca között. Az ingatlan kiemelkedően jó állapotban van, és egyedülálló lehetőséget kínál a befektetés szempontjából. Az üzlet a város forgalmas utcájáról nyílik, így optimális láthatóságot és könnyű megközelíthetőséget biztosít. A jelenlegi bérlő már bebizonyította, hogy ezen a kiválóan frekventált helyen üzleti sikereket érhet el. Az összhangban működő bérlő már meghatározott időre szerződést kötött, így a jövőbeni jövedelem is biztosított mivel szeretné hosszú távon tovább bérelni. Az ingatlan állapota kiválló, a modern és elegáns kialakításának köszönhetően vonzóvá teszi. A tágas és funkcionális belső tér kiválóan alkalmazkodik különböző üzleti tevékenységekhez. A környék frekventált, melynek köszönhetően garantált a folyamatos láthatóság és az üzlet forgalmának növekedése.
Olyan Befektetőt keresünk, aki hosszútávon biztosítani tudja a bérlés lehetőségét a jelenlegi üzemeltetőnek. Jelenleg 830.000 Ft + Áfa bérleti díjért bérlik.

Regisztrációs szám

UZ016271

Az ingatlan adatai

Értékesités
eladó
Jogi státusz
használt
Jelleg
üzleti célú
Típus
épületrész
Építési mód
tégla
Méret
108 m²
Föld feletti nettó méret
108 m²
Fűtés
Gáz cirkó
Belmagasság
300 cm
Lakáson belüli szintszám
2
Állapot
Kiváló
Homlokzat állapota
Lépcsőház állapota
Építés éve
1910
Közös költség
29279
Víz
Van
Gáz
Van
Villany
Van
Csatorna
Van

 

Lehetséges funkciók
kiskereskedelem, vendéglátóipari egység, iroda, iroda és bemutatóterem, vagy üzlet, iroda és raktár, bemutatóterem, bemutatóterem és szervíz, vagy raktár, egészségügyi központ, oktatási központ
Láthatóság
Nagy gyalogosforgalmú utcában jól látható
Megközelíthetőseg
Nagy gyalogosforgalmú utcára nyíló bejárat
Hasznosítás
bérbe adott
Havi bérleti díj
720000
Andrejcsik Nikoletta
Andrejcsik Nikoletta

Hitelszakértő

Irodánk kínálatából - III. kerület - Békásmegyer

for sale new construction apartment

Index image
data_sheet.details.realestate.section.main.otthonstart_flag.label
6

for sale new construction apartment

Index image
data_sheet.details.realestate.section.main.otthonstart_flag.label
6

for sale new construction semi-detached house

Index image
7

for sale panel apartment

Index image
data_sheet.details.realestate.section.main.otthonstart_flag.label
14

for sale new construction apartment

Index image
20

for sale panel apartment

Index image
44