Eladó kereskedelmi ingatlan, UZ015901
Budapest V. kerület, Belváros

157 000 000 Ft

402 000 €

  • 163m²
  • földszint

BELVÁROSI ÜZLET ELADÓ

Megvételre kínálom ezt a 163 négyzetméteres kiváló minőségű felújított üzlethelyiséget pár perc sétára a Szervita tértől.
Elosztását tekintve:
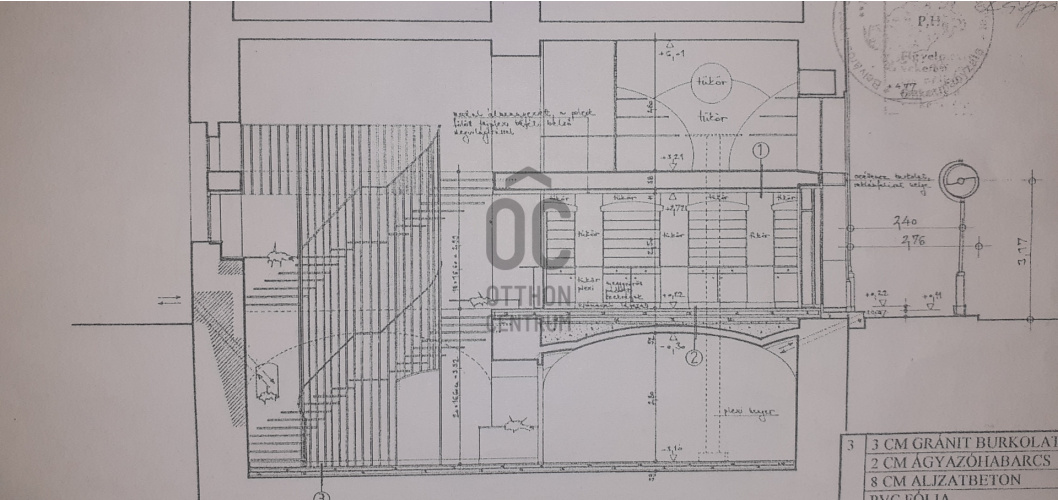
Földszint, 42 nm-recepciós eladó tér, plusz kettő helyiség! Gránit burkolat.
Galéria: 40 nm - három helység található
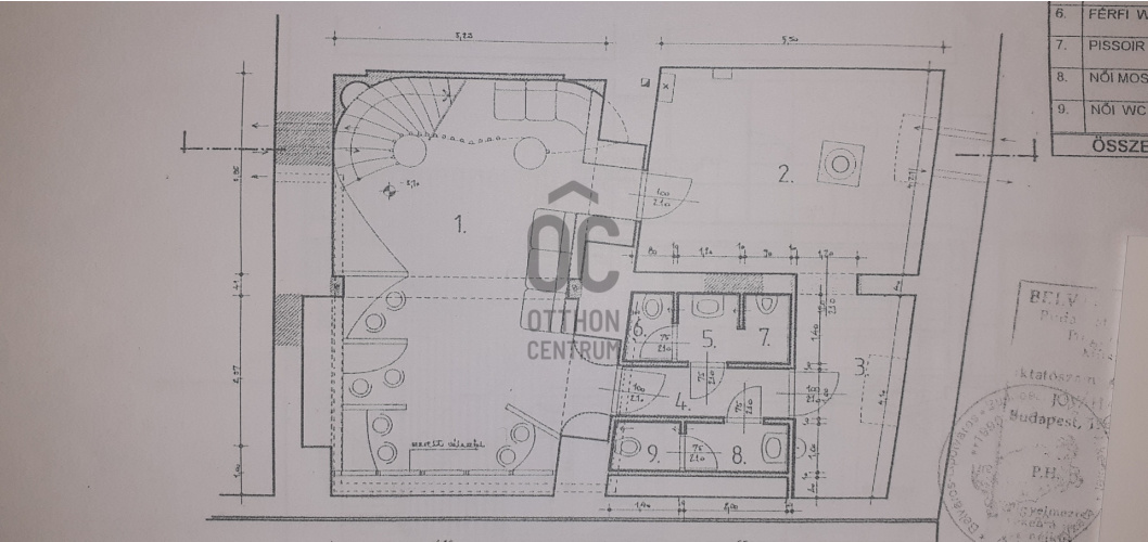
Alagsor; 81 nm - itt található női és férfimosdók, női és férfi WC, plusz négy helység, konyha.

Kitűnő választás lehet irodának, kávézónak, reggeliztetőnek, szépségszalonnak, egyéb szolgatatásnak mivel a lokáció tökéletes!

Remek a közlekedés: M2, M3, buszok több irányban, villamos pár lépésre!

Amennyiben lenne még kérdése, várom megtisztelő hívását.

Regisztrációs szám

UZ015901

Az ingatlan adatai

Értékesités
eladó
Jogi státusz
használt
Jelleg
üzleti célú
Típus
épületrész
Építési mód
tégla
Méret
163 m²
Föld feletti nettó méret
80 m²
Belmagasság
300 cm
Lakáson belüli szintszám
3
Állapot
Homlokzat állapota
Lépcsőház állapota
Építés éve
1920
Víz
Van
Gáz
Van
Villany
Van
Csatorna
Van
Lift
van

 

Lehetséges funkciók
kiskereskedelem, iroda, iroda és bemutatóterem, vagy üzlet, iroda és raktár, bemutatóterem, egyéb
Megközelíthetőseg
Mellékutcára nyíló bejárat
Hasznosítás
üres
Örvössy Tamás
Örvössy Tamás

Hitelszakértő

Irodánk kínálatából - XIII. kerület - Katona Six

for sale apartment

Index image
data_sheet.details.realestate.section.main.otthonstart_flag.label
44

for sale apartment

Index image
13

for sale panel apartment

Index image
data_sheet.details.realestate.section.main.otthonstart_flag.label
12

for sale apartment

Index image
data_sheet.details.realestate.section.main.otthonstart_flag.label
13

for sale apartment

Index image
13

for sale apartment

Index image
25

for sale apartment

Index image
9

for sale apartment

Index image
data_sheet.details.realestate.section.main.otthonstart_flag.label
19

for sale apartment

Index image
22