245 000 000 Ft
648 000 €
- 350m²
BEFEKTETŐK, VÁLLALKOZÓK, KIVÁLÓ LEHETŐSÉG!
Fedezze fel Zircen található, kiváló állapotú ingatlant,amely ideális választás üzleti célú felhasználásra.
Ez a 350 nm alapterületű családi ház nemcsak minőségi kivitelezésével, hanem a környék nyújtotta le-
hetőségekkel is lenyűgöző.A telek mérete 1799nm, amely bőséges teret biztosít a jövőbeli fejlesztések-
hez vagy bővítésekhez.
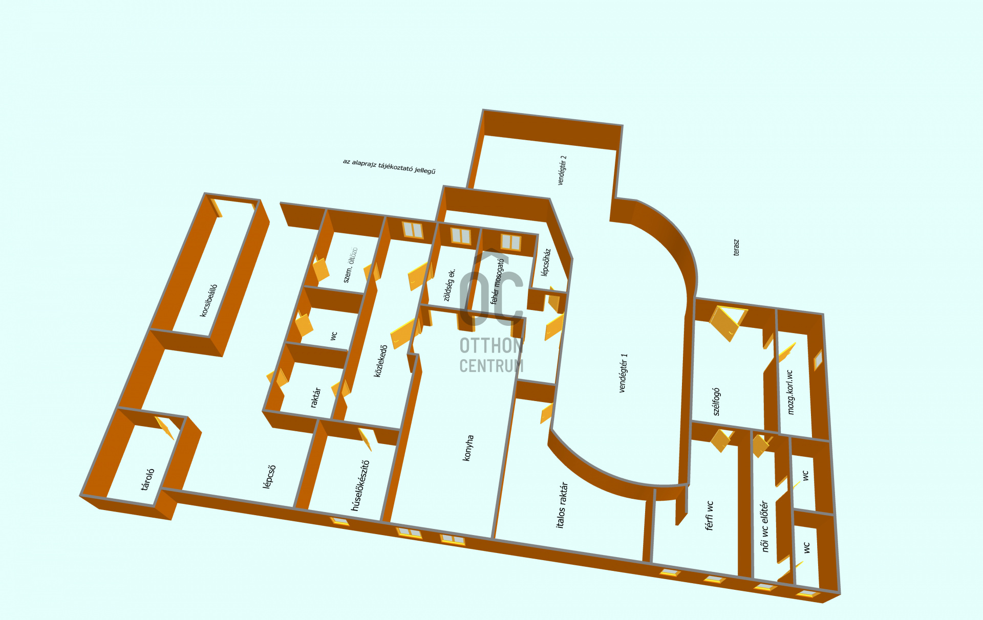
Az ingatlan földszinti részén szakmailag elismert, igényes 50-60 fő befogadására alkalmas étterem mű-
ködött egy szintén 60 fő befogadására alkalmas gyönyörű panorámájú terasszal.
Az ingatlanban található berendezési tárgyak alku tárgyát képezik.
Zirc városa gazdag kulturális örökséggel rendelkezik és a helyi közösség aktív élete mellett rengeteg ki-
ránduló keresi fel a környéket.
A vendéglátóipari egység adottságai révén könnyen átalakítható más üzleti célokra is,mint például
IRODÁK,MAGÁNRENDELŐK,SZÉPSÉGSZALON,BEMUTATÓTERMEK, akár SZÁLLÁSHELYEK kialakítására.
Az épület felső szintjén egy külön bejárattal rendelkező,minden szempontból igényes lakás található,
melyben konyha-étkező-nappali,3 szoba,2 fürdőszoba és egy gardrob kapott helyet.Az ingatlan erkélyéről
gyönyörű kilátás nyílik a Zirci Apátságra.
A tulajdonos a minőségi anyagok mellett törekedett az energiafogyasztás minimalizálására, ennek érde-
kében 2023-ban:
- a régebbi tetőablakok helyett,esőzajcsökkentő Velux tetőtéri ablakok kerültek beépítésre,külső-belső
rolókkal
- az ereszek alatt lévő faburkolatok egy része színezett alumínium borítást kapott
- 2 db Immegras Magis Pro 14 v2 T hőszivattyú, valamint egy Immergas Victrix Tera 35 Plus fali kazán,indirekt
melegvíz tároló került beszerelésre
- az egész rendszert PLC digitális rendszerszabályozó irányítja
- a ház kapott egy dryvit hőszigetelést, valamint új színezést
Az ingatlan alápincézett,tárolóhelyiségek kerültek kialakításra.Az épület részét képezi a fedett kocsibeálló,
valamint az épület mellett garázs is található.
Ne habozzon kapcsolatba lépni velünk,segítünk Önnek megtalálni a tökéletes helyszínt üzleti elképzelései megvalósításához!
Ez a 350 nm alapterületű családi ház nemcsak minőségi kivitelezésével, hanem a környék nyújtotta le-
hetőségekkel is lenyűgöző.A telek mérete 1799nm, amely bőséges teret biztosít a jövőbeli fejlesztések-
hez vagy bővítésekhez.
Az ingatlan földszinti részén szakmailag elismert, igényes 50-60 fő befogadására alkalmas étterem mű-
ködött egy szintén 60 fő befogadására alkalmas gyönyörű panorámájú terasszal.
Az ingatlanban található berendezési tárgyak alku tárgyát képezik.
Zirc városa gazdag kulturális örökséggel rendelkezik és a helyi közösség aktív élete mellett rengeteg ki-
ránduló keresi fel a környéket.
A vendéglátóipari egység adottságai révén könnyen átalakítható más üzleti célokra is,mint például
IRODÁK,MAGÁNRENDELŐK,SZÉPSÉGSZALON,BEMUTATÓTERMEK, akár SZÁLLÁSHELYEK kialakítására.
Az épület felső szintjén egy külön bejárattal rendelkező,minden szempontból igényes lakás található,
melyben konyha-étkező-nappali,3 szoba,2 fürdőszoba és egy gardrob kapott helyet.Az ingatlan erkélyéről
gyönyörű kilátás nyílik a Zirci Apátságra.
A tulajdonos a minőségi anyagok mellett törekedett az energiafogyasztás minimalizálására, ennek érde-
kében 2023-ban:
- a régebbi tetőablakok helyett,esőzajcsökkentő Velux tetőtéri ablakok kerültek beépítésre,külső-belső
rolókkal
- az ereszek alatt lévő faburkolatok egy része színezett alumínium borítást kapott
- 2 db Immegras Magis Pro 14 v2 T hőszivattyú, valamint egy Immergas Victrix Tera 35 Plus fali kazán,indirekt
melegvíz tároló került beszerelésre
- az egész rendszert PLC digitális rendszerszabályozó irányítja
- a ház kapott egy dryvit hőszigetelést, valamint új színezést
Az ingatlan alápincézett,tárolóhelyiségek kerültek kialakításra.Az épület részét képezi a fedett kocsibeálló,
valamint az épület mellett garázs is található.
Ne habozzon kapcsolatba lépni velünk,segítünk Önnek megtalálni a tökéletes helyszínt üzleti elképzelései megvalósításához!
Regisztrációs szám
UZ015467
Az ingatlan adatai
Értékesités
eladó
Jogi státusz
használt
Jelleg
üzleti célú
Típus
teljes épület
Építési mód
tégla
Méret
350 m²
Telek méret
1 799 m²
Terasz / erkély mérete
66 m²
Föld feletti nettó méret
350 m²
Belmagasság
270 cm
Lakáson belüli szintszám
2
Panoráma
városi panoráma, Zöldre néző panoráma
Állapot
Kiváló
Homlokzat állapota
Kiváló
Garázs férőhely
1
Fedett beállók száma
1
Víz
Van
Gáz
Van
Villany
Van
Csatorna
Van
Lehetséges funkciók
vendéglátóipari egység, iroda és bemutatóterem, vagy üzlet, panzió, hostel, egészségügyi központ, oktatási központ
Megközelíthetőseg
Nagy gyalogosforgalmú utcára nyíló bejárat
Hasznosítás
tulajdosnos használja
Szabóné Sipos Krisztina
Hitelszakértő