169 000 000 Ft
431 000 €
- 140m²
- 4 szoba
Discover your dream home in Telki – a 3-room house where comfort meets tranquility!
Discover this exceptional house in Telki, which offers an ideal home not only for young adults!
The 140 square meter family house, completed in 2025, is in excellent condition. With its perfectly designed interiors and spacious living room, it provides comfort and a modern lifestyle. The house features three bedrooms, offering ample space for family members or even guests. The two bathrooms provide a practical solution for the morning rush, while the American kitchen with an island is an ideal setting for shared meals and friendly gatherings.
The 540 square meter plot is well-maintained and includes storage, providing opportunities for recreational activities, relaxation, or even creating your own little garden paradise. The 14 square meter terrace and 6 square meter balcony offer the perfect spots for unwinding on summer evenings, all while enjoying the quiet and peaceful atmosphere of the neighborhood. The property’s security is ensured by an alarm system, allowing you and your family to enjoy your home with peace of mind.
The house is also excellently located in terms of transportation, with nearby bus stops and railway connections making it easy to reach downtown Budapest and surrounding towns. The city offers numerous services, shops, and restaurants that further enhance convenience. The area is safe and family-friendly, which can be especially important for young adults looking for a place to call home.
This house is not just a property; it is a lifestyle that combines modern comfort with proximity to nature.
If you have any questions or would like to view this wonderful property, please feel free to contact us!
The 140 square meter family house, completed in 2025, is in excellent condition. With its perfectly designed interiors and spacious living room, it provides comfort and a modern lifestyle. The house features three bedrooms, offering ample space for family members or even guests. The two bathrooms provide a practical solution for the morning rush, while the American kitchen with an island is an ideal setting for shared meals and friendly gatherings.
The 540 square meter plot is well-maintained and includes storage, providing opportunities for recreational activities, relaxation, or even creating your own little garden paradise. The 14 square meter terrace and 6 square meter balcony offer the perfect spots for unwinding on summer evenings, all while enjoying the quiet and peaceful atmosphere of the neighborhood. The property’s security is ensured by an alarm system, allowing you and your family to enjoy your home with peace of mind.
The house is also excellently located in terms of transportation, with nearby bus stops and railway connections making it easy to reach downtown Budapest and surrounding towns. The city offers numerous services, shops, and restaurants that further enhance convenience. The area is safe and family-friendly, which can be especially important for young adults looking for a place to call home.
This house is not just a property; it is a lifestyle that combines modern comfort with proximity to nature.
If you have any questions or would like to view this wonderful property, please feel free to contact us!
Regisztrációs szám
U0049568
Az ingatlan adatai
Értékesités
eladó
Jogi státusz
használt
Jelleg
ház
Építési mód
tégla
Méret
140 m²
Bruttó méret
140 m²
Telek méret
540 m²
Terasz / erkély mérete
20 m²
Fűtés
Gáz cirkó
Belmagasság
280 cm
Lakáson belüli szintszám
1
Tájolás
Dél-nyugat
Panoráma
Zöldre néző panoráma
Állapot
Kiváló
Homlokzat állapota
Kiváló
Pince
Önálló
Környék
csendes, jó közlekedés
Építés éve
2025
Fürdőszobák száma
2
Társaház kert
igen
Garázs
Benne van az árban
Garázs férőhely
1
Víz
Van
Gáz
Van
Villany
Van
Csatorna
Van
Tároló
Önálló
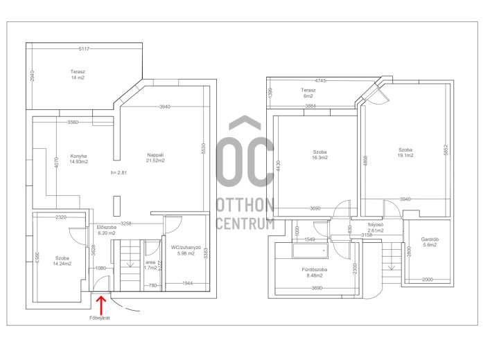
Helyiségek
előszoba
6.2 m²
konyha
14.93 m²
nappali
21.52 m²
dolgozószoba
14.24 m²
fürdőszoba-wc
5.98 m²
kamra
1.72 m²
hálószoba
19.1 m²
hálószoba
16.3 m²
fürdőszoba-wc
8.48 m²
wc-kézmosó
2 m²
gardrób
5.6 m²
pince
9 m²
terasz
14 m²
erkély
6 m²
közlekedő
2.61 m²
Pfeffer Kinga
Hitelszakértő