Elérhető Otthon Start hitellel
Eladó újépítésű családi ház,
U0049425
Debrecen, Felső-Józsa
149 900 000 Ft
389 000 €
- 125m²
- 4 szoba
Otthon, ami nem kompromisszum – hanem döntés kérdése
Mi lenne, ha nem egy kész házhoz kellene alkalmazkodnia, hanem a ház alkalmazkodna Önhöz?
Felső-Józsa egyik legkedveltebb részén, egy 720 m²-es telken most olyan új építésű családi ház valósulhat meg, aminek a belső kialakítását még teljes mértékben az Ön igényeire lehet szabni.
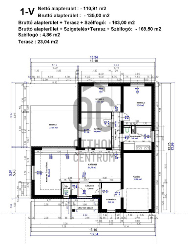
A jelenlegi koncepció egy nettó 125 m²-es, földszintes, önálló családi ház:
- Amerikai konyhás nappali + 3 hálószoba
- Külön WC, fürdő, háztartási helyiség
- Padlófűtés minden helyiségben
- Kondenzációs gázkazán (Bosch vagy Ariston)
- 3 rétegű, hőszigetelt nyílászárók
- Nappaliban inverteres hűtő-fűtő klíma
- Választható burkolatok, beltéri ajtók, szaniterek
Masszív, időtálló szerkezet, modern megjelenés, energiatudatos kialakítás – de nem túltechnologizálva, érthető, élhető megoldásokkal. A telek 720 m², 22,5 méteres utcafronttal – impozáns megjelenés, kényelmes kertméret, igazi családi élettér. És ami igazán különleges: a 30%-os beépíthetőség miatt akár egy nagyobb, 216 m²-es, egyszintes vagy kétszintes, többgenerációs otthon is tervezhető ide.
Képzelje el, hogy:
- Ön dönti el, hol legyen a nappali és mekkora legyen a gardrób
- A burkolatok valóban az Ön stílusát tükrözik
- Nem kell kompromisszumot kötni egy „majdnem jó” alaprajzzal
- Egy új építésű lakópark igényes környezetében élhet
- 10 perc sétára van Józsa központja, óvoda, iskola
Ez nem egy sablonház. Ez egy lehetőség arra, hogy az otthon tényleg az Öné legyen – már a tervezőasztaltól kezdve.
Ha szeretne egy olyan új építésű családi házat Józsán, ahol még beleszólhat a részletekbe, és nem utólag kell alkalmazkodnia – érdemes most lépni.
További részletekért, személyes egyeztetésért keressen bizalommal, és nézzük meg együtt, mit lehet kihozni ebből a kivételes adottságú telekből.
Felső-Józsa egyik legkedveltebb részén, egy 720 m²-es telken most olyan új építésű családi ház valósulhat meg, aminek a belső kialakítását még teljes mértékben az Ön igényeire lehet szabni.
A jelenlegi koncepció egy nettó 125 m²-es, földszintes, önálló családi ház:
- Amerikai konyhás nappali + 3 hálószoba
- Külön WC, fürdő, háztartási helyiség
- Padlófűtés minden helyiségben
- Kondenzációs gázkazán (Bosch vagy Ariston)
- 3 rétegű, hőszigetelt nyílászárók
- Nappaliban inverteres hűtő-fűtő klíma
- Választható burkolatok, beltéri ajtók, szaniterek
Masszív, időtálló szerkezet, modern megjelenés, energiatudatos kialakítás – de nem túltechnologizálva, érthető, élhető megoldásokkal. A telek 720 m², 22,5 méteres utcafronttal – impozáns megjelenés, kényelmes kertméret, igazi családi élettér. És ami igazán különleges: a 30%-os beépíthetőség miatt akár egy nagyobb, 216 m²-es, egyszintes vagy kétszintes, többgenerációs otthon is tervezhető ide.
Képzelje el, hogy:
- Ön dönti el, hol legyen a nappali és mekkora legyen a gardrób
- A burkolatok valóban az Ön stílusát tükrözik
- Nem kell kompromisszumot kötni egy „majdnem jó” alaprajzzal
- Egy új építésű lakópark igényes környezetében élhet
- 10 perc sétára van Józsa központja, óvoda, iskola
Ez nem egy sablonház. Ez egy lehetőség arra, hogy az otthon tényleg az Öné legyen – már a tervezőasztaltól kezdve.
Ha szeretne egy olyan új építésű családi házat Józsán, ahol még beleszólhat a részletekbe, és nem utólag kell alkalmazkodnia – érdemes most lépni.
További részletekért, személyes egyeztetésért keressen bizalommal, és nézzük meg együtt, mit lehet kihozni ebből a kivételes adottságú telekből.
Regisztrációs szám
U0049425
Az ingatlan adatai
Értékesités
eladó
Jogi státusz
új
Jelleg
ház
Építési mód
tégla
Méret
125 m²
Bruttó méret
139 m²
Telek méret
720 m²
Terasz / erkély mérete
23 m²
Fűtés
Gáz cirkó
Belmagasság
270 cm
Tájolás
Dél
Állapot
Kiváló
Homlokzat állapota
Kiváló
Környék
csendes
Építés éve
2026
Fürdőszobák száma
1
Garázs
Benne van az árban
Garázs férőhely
1
Víz
Van
Gáz
Van
Villany
Van
Csatorna
Van
Helyiségek
nappali
21.76 m²
konyha-étkező
13.44 m²
hálószoba
12 m²
hálószoba
11.34 m²
hálószoba
12.45 m²
fürdőszoba
7.4 m²
wc
1.23 m²
háztartási helyiség
5 m²
előszoba
4.89 m²
garázs
18 m²
terasz
23 m²
Czellér András
Hitelszakértő