Elérhető Otthon Start hitellel
Eladó újépítésű családi ház,
U0049393
Aba, Belsőbáránd
80 900 000 Ft
216 000 €
- 91,5m²
- 4 szoba
Fedezze fel álmai új otthonát Belsőbárándon – modern ház, kiváló elhelyezkedés!
Márvány Liget Lakópark Székesfehérvár közelében 4 szobás lakóház!
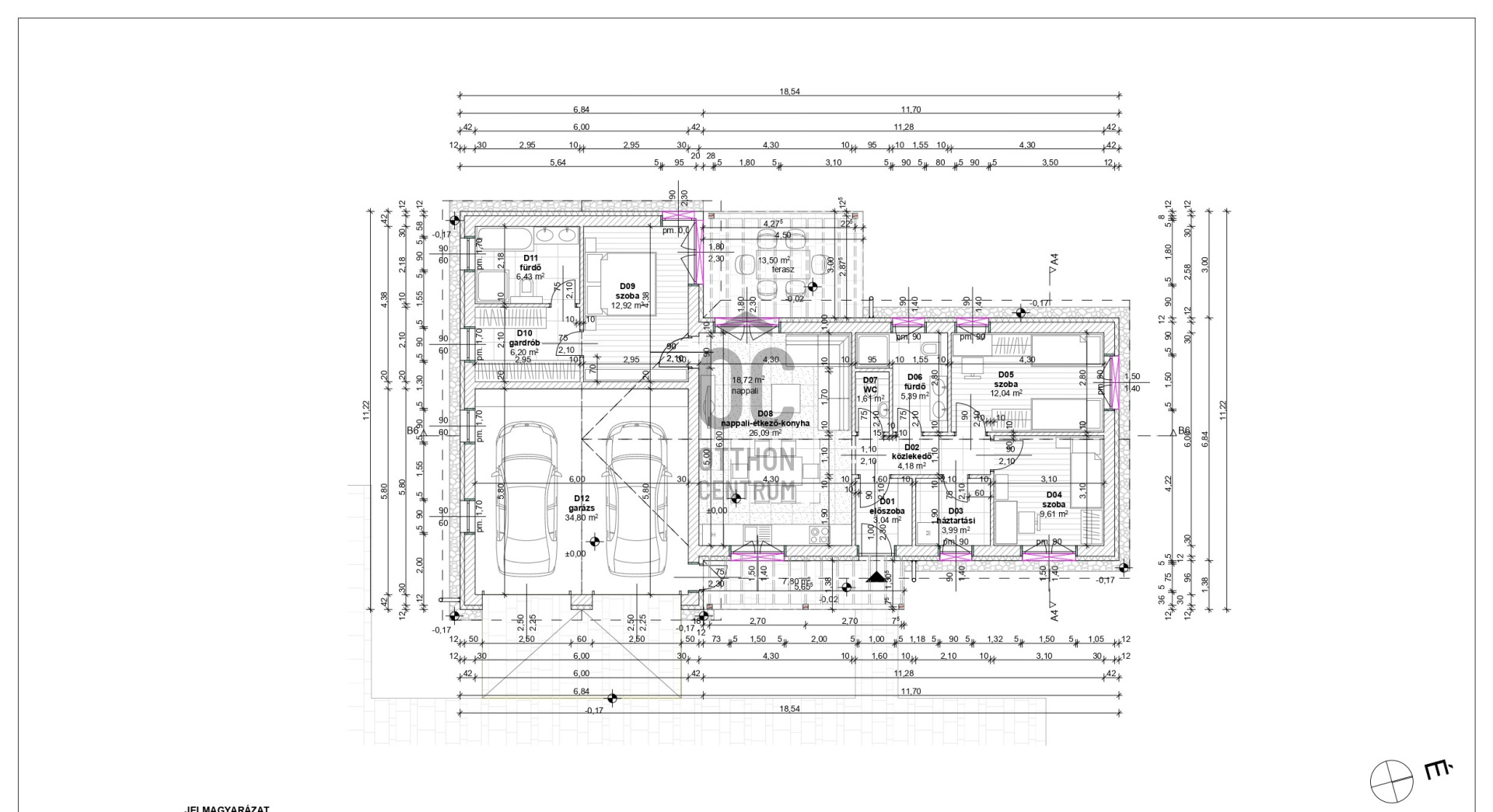
Székesfehérvár közvetlen közelében, az autópályától 8 percre található Belsőbárándon, rendkívül csendes környezetben épülő 4 szobás 91,5 nm hasznos lakóterű modern, téglából épült lakóház eladó!
Rövid műszaki leírás: 1. ház (9. épület)
* Telek 593 nm
* Amerikai konyhás nappali étkezővel, 3 szoba, 2 fürdőszoba + wc, külön illemhelység, gardrób, terasz + 2 beállásos garázs
* 91,5 nm hasznos alapterület + 13,5 nm-es pergolával fedett terasz
* A ház 30 cm vastag Leier 30 N+F tégla falazattal, 15 cm homlokzati hőszigeteléssel, 12 cm aljzatszigeteléssel, 30 cm üveggyapot padlásszigeteléssel épül
* Fűtés: padlófűtés, az épület hőellátása levegő-víz hőszivattyúról történik
* Tető 30 fokos nyeregtetős, fa födémes, beton tetőcseréppel fedett
* Igény esetén napelem rendszer is telepíthető
* Fehér 3 rétegű műanyag nyílászárók kerülnek beépítésre, redőnnyel, szúnyoghálóval felszerelve
* Elektromos hálózat 3*25A
* Burkolat: konyhában, közlekedő részen, fürdőszobában, mellékhelyiségben járólap, nappaliban, szobákban laminált parketta, terasz térkövezett
* Épület körül kavics járda szegélykő, külső terasz térkő burkolat.
* a házhoz 2 beállásos garázs tartozik.
Belsőbáránd közelében halad el a 63-as főút, így a falurész könnyen megközelíthető Székesfehérvár és Sárbogárd irányából is.
A részletekkel kapcsolatban keressen bizalommal!
Ha a vásárláshoz a jelenlegi ingatlana eladására van szükség, akkor abban is szívesen együttműködöm Önnel!
Amennyiben hitelre van szüksége, az Otthon Centrum az ország egyik legnagyobb és legmegbízhatóbb hitelközvetítőjeként, teljes körű és díjmentes hitel ügyintézéssel áll ügyfel
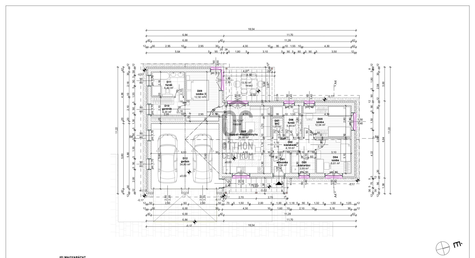
Székesfehérvár közvetlen közelében, az autópályától 8 percre található Belsőbárándon, rendkívül csendes környezetben épülő 4 szobás 91,5 nm hasznos lakóterű modern, téglából épült lakóház eladó!
Rövid műszaki leírás: 1. ház (9. épület)
* Telek 593 nm
* Amerikai konyhás nappali étkezővel, 3 szoba, 2 fürdőszoba + wc, külön illemhelység, gardrób, terasz + 2 beállásos garázs
* 91,5 nm hasznos alapterület + 13,5 nm-es pergolával fedett terasz
* A ház 30 cm vastag Leier 30 N+F tégla falazattal, 15 cm homlokzati hőszigeteléssel, 12 cm aljzatszigeteléssel, 30 cm üveggyapot padlásszigeteléssel épül
* Fűtés: padlófűtés, az épület hőellátása levegő-víz hőszivattyúról történik
* Tető 30 fokos nyeregtetős, fa födémes, beton tetőcseréppel fedett
* Igény esetén napelem rendszer is telepíthető
* Fehér 3 rétegű műanyag nyílászárók kerülnek beépítésre, redőnnyel, szúnyoghálóval felszerelve
* Elektromos hálózat 3*25A
* Burkolat: konyhában, közlekedő részen, fürdőszobában, mellékhelyiségben járólap, nappaliban, szobákban laminált parketta, terasz térkövezett
* Épület körül kavics járda szegélykő, külső terasz térkő burkolat.
* a házhoz 2 beállásos garázs tartozik.
Belsőbáránd közelében halad el a 63-as főút, így a falurész könnyen megközelíthető Székesfehérvár és Sárbogárd irányából is.
A részletekkel kapcsolatban keressen bizalommal!
Ha a vásárláshoz a jelenlegi ingatlana eladására van szükség, akkor abban is szívesen együttműködöm Önnel!
Amennyiben hitelre van szüksége, az Otthon Centrum az ország egyik legnagyobb és legmegbízhatóbb hitelközvetítőjeként, teljes körű és díjmentes hitel ügyintézéssel áll ügyfel
Regisztrációs szám
U0049393
Az ingatlan adatai
Értékesités
eladó
Jogi státusz
új
Jelleg
ház
Építési mód
tégla
Méret
91,5 m²
Bruttó méret
105 m²
Telek méret
593 m²
Terasz / erkély mérete
13,5 m²
Fűtés
hőszivattyú (levegő-víz)
Belmagasság
270 cm
Lakáson belüli szintszám
1
Tájolás
Dél-nyugat
Állapot
Kiváló
Homlokzat állapota
Kiváló
Építés éve
2026
Fürdőszobák száma
2
Garázs
Benne van az árban
Garázs férőhely
2
Víz
Van
Gáz
Utcán
Villany
Van
Helyiségek
nappali-konyha
26.09 m²
szoba
12.04 m²
szoba
12.92 m²
szoba
9.61 m²
fürdőszoba-wc
5.39 m²
fürdőszoba-wc
6.43 m²
előszoba
3.04 m²
közlekedő
4.18 m²
háztartási helyiség
3.99 m²
gardrób
4.2 m²
wc
1.61 m²
terasz
13.5 m²
garázs
34.8 m²
Várnai Zoltán Jenő
Hitelszakértő