185 325 000 Ft
491 000 €
- 87m²
- 4 szoba
- 5. emelet
READY TO MOVE IN | OVERLOOKING A GREEN COURTYARD
For sale in Budapest’s 9th district, in the Metrodom Green residential complex, a well-designed living room + 3 bedroom apartment with a corner terrace, overlooking a quiet, landscaped inner garden.
Thanks to its south-west orientation, the apartment is bright, calm and perfectly livable.
Key features:
- living room + 3 separate bedrooms
- 2 bathrooms
- separate utility / laundry room
- corner terrace
- ready to move in immediately
- excellent floor plan with well-separated private areas
THE PROJECT – A GREEN OASIS CLOSE TO DOWNTOWN
A modern, already completed premium residential complex where urban comfort meets nature.
The lush inner garden, green façades and thoughtfully designed community spaces create a true oasis – while the city centre is just minutes away.
Available brownfield benefits:
10% deposit – 90% payable within 15–45 days
legal fees included in the purchase price
BUILDING & AMENITIES
A modern, premium-category building with 513 apartments, designed with sustainability and comfort in mind.
Residents enjoy:
- green façades, rooftop gardens, decorative pool
- café, fitness centre, sauna
- community kitchen, BBQ and rooftop terrace
- smart app & smart home solutions
- electric aluminium shutters included in the price
- 24/7 reception & parcel service
- secure, gated residential environment
- Energy-efficient systems, solar panels and modern building services ensure low operating costs.
5 REASONS TO CHOOSE THIS HOME
✔ central location with excellent public transport
✔ green, peaceful surroundings – a true urban retreat
✔ premium on-site services
✔ low maintenance costs
✔ fully furnished, immediately rentable or move-in ready
DEVELOPER – A SAFE AND RELIABLE CHOICE
fixed purchase price, no hidden costs
in-house construction team
high-quality materials and execution
full warranty
favourable and fast payment schedule
TRANSPORT & ACCESSIBILITY
- Tram line 1 nearby
- Tram line 2 along the Danube
- Tram line 24 with direct access to Keleti Railway Station
- night buses (901, 908)
- GreenGo, MOL Bubi, micromobility hub
- covered bicycle storage, EV charging stations
Can you imagine yourself living here?
This is more than an apartment – it’s a lifestyle.
Call me for more information!
Thanks to its south-west orientation, the apartment is bright, calm and perfectly livable.
Key features:
- living room + 3 separate bedrooms
- 2 bathrooms
- separate utility / laundry room
- corner terrace
- ready to move in immediately
- excellent floor plan with well-separated private areas
THE PROJECT – A GREEN OASIS CLOSE TO DOWNTOWN
A modern, already completed premium residential complex where urban comfort meets nature.
The lush inner garden, green façades and thoughtfully designed community spaces create a true oasis – while the city centre is just minutes away.
Available brownfield benefits:
10% deposit – 90% payable within 15–45 days
legal fees included in the purchase price
BUILDING & AMENITIES
A modern, premium-category building with 513 apartments, designed with sustainability and comfort in mind.
Residents enjoy:
- green façades, rooftop gardens, decorative pool
- café, fitness centre, sauna
- community kitchen, BBQ and rooftop terrace
- smart app & smart home solutions
- electric aluminium shutters included in the price
- 24/7 reception & parcel service
- secure, gated residential environment
- Energy-efficient systems, solar panels and modern building services ensure low operating costs.
5 REASONS TO CHOOSE THIS HOME
✔ central location with excellent public transport
✔ green, peaceful surroundings – a true urban retreat
✔ premium on-site services
✔ low maintenance costs
✔ fully furnished, immediately rentable or move-in ready
DEVELOPER – A SAFE AND RELIABLE CHOICE
fixed purchase price, no hidden costs
in-house construction team
high-quality materials and execution
full warranty
favourable and fast payment schedule
TRANSPORT & ACCESSIBILITY
- Tram line 1 nearby
- Tram line 2 along the Danube
- Tram line 24 with direct access to Keleti Railway Station
- night buses (901, 908)
- GreenGo, MOL Bubi, micromobility hub
- covered bicycle storage, EV charging stations
Can you imagine yourself living here?
This is more than an apartment – it’s a lifestyle.
Call me for more information!
Regisztrációs szám
U0049323
Az ingatlan adatai
Értékesités
eladó
Jogi státusz
új
Jelleg
lakás
Építési mód
tégla
Méret
87 m²
Bruttó méret
105,4 m²
Terasz / erkély mérete
36,8 m²
Fűtés
hőszivattyú (levegő-levegő)
Belmagasság
265 cm
Lakáson belüli szintszám
1
Tájolás
Dél-nyugat
Lépcsőház típusa
zárt lépcsőház
Állapot
Kiváló
Homlokzat állapota
Kiváló
Lépcsőház állapota
Kiváló
Környék
jó közlekedés, központi
Építés éve
2025
Fürdőszobák száma
2
Fekvés
kertre néző
Víz
Van
Villany
Van
Csatorna
Van
Lift
van
Vízpart távolsága
500 méterre
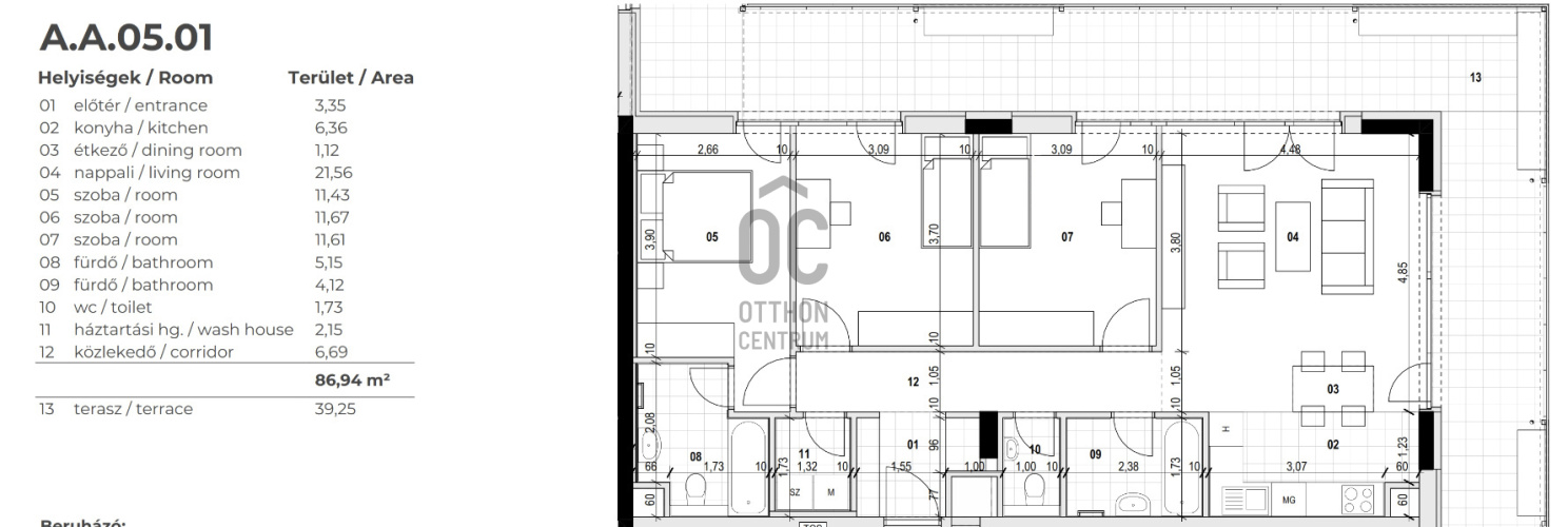
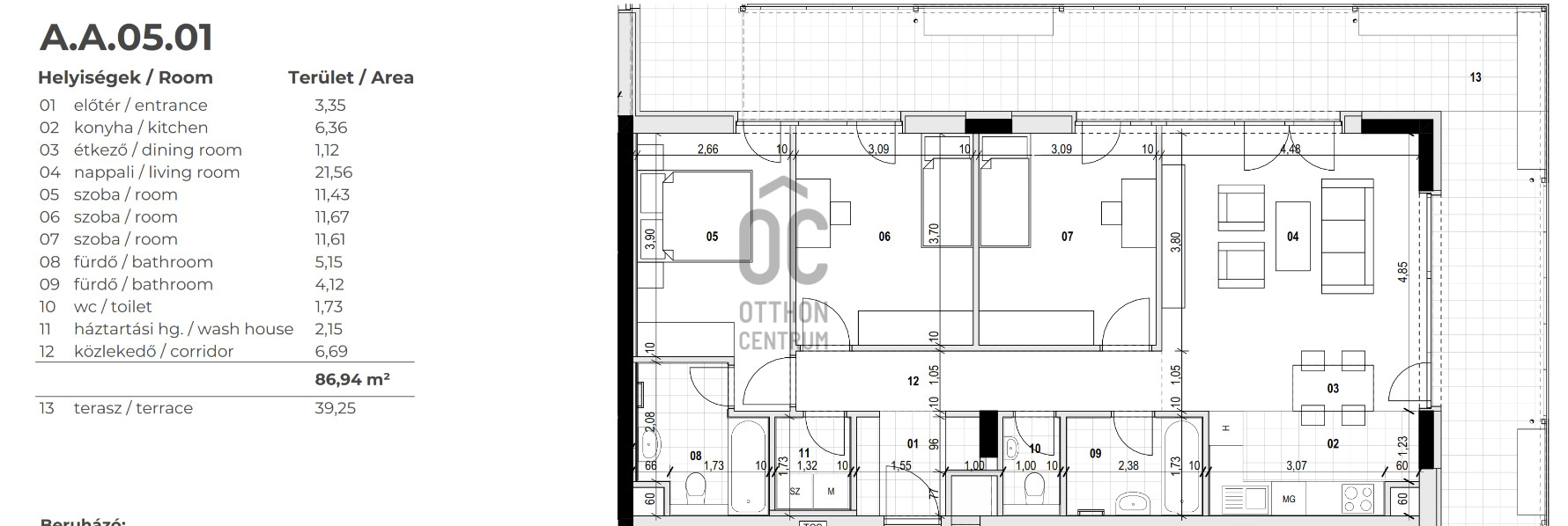
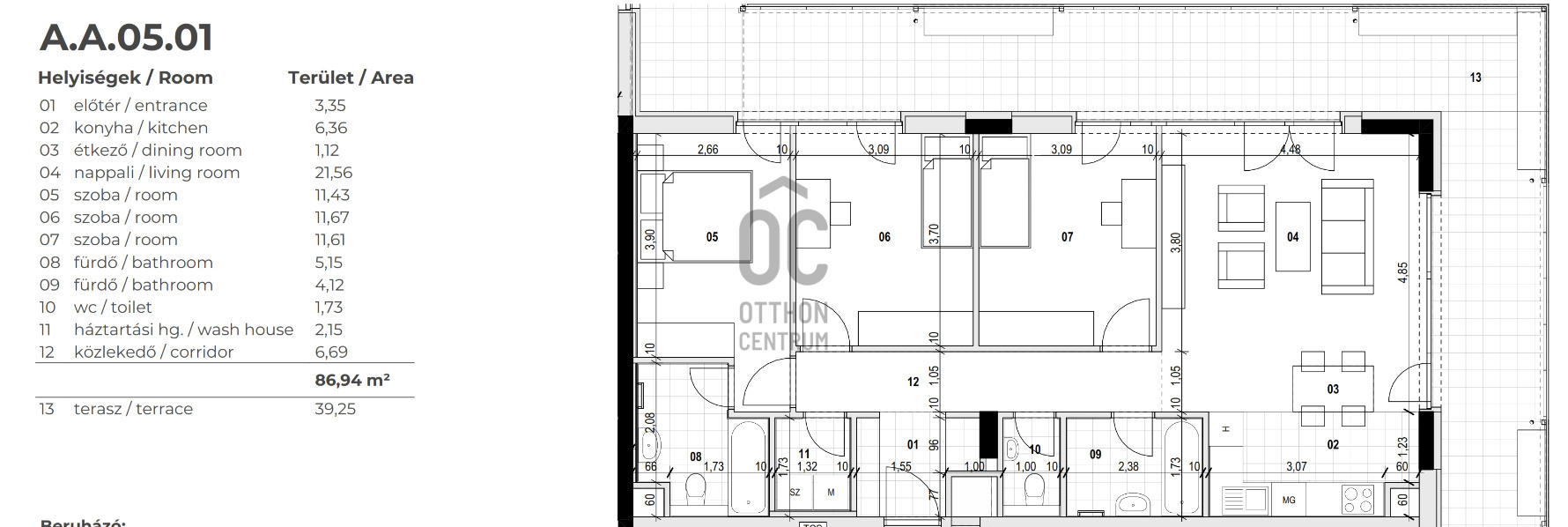
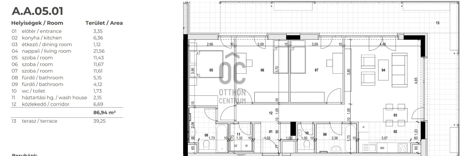
Helyiségek
nappali
21.56 m²
konyha
6.36 m²
ebédlő
1.12 m²
hálószoba
11.43 m²
hálószoba
11.67 m²
hálószoba
11.61 m²
fürdőszoba
5.15 m²
fürdőszoba
4.12 m²
wc-kézmosó
1.73 m²
háztartási helyiség
2.15 m²
közlekedő
6.7 m²
előszoba
3.25 m²
terasz
39.25 m²
Tóth Róbert
Hitelszakértő