Elérhető Otthon Start hitellel
Eladó újépítésű családi ház,
U0049198
Tököl
99 900 000 Ft
260 000 €
- 108,1m²
- 5 szoba
Tökölön eladó újépítésű önálló családi ház
• nettó 108 m2
• amerikai konyhás nappali + 4 tágas hálószoba
• fűtése: 10 kw-os, monoblokkos hőszivattyú, padlófűtés az egész házban
• törölközőszárítós radiátor a fürdőszobában
• beépített tartályos wc
• választható burkolatok (hideg-meleg: 6.500,- Ft / m2 segédanyagokkal együtt)
• riasztó rendszer alapszerelés, kábelezés
• kapcsolók, konnektorok 45 db, ezen felül 14.500,- Ft/db
• műanyag nyílászárók, műanyag ablakpárkányok
• 15 cm homlokzati szigetelés
• 30 cm födémszigetelés
• térkövezett kocsibeálló 40 m2 (4500ft/m2)
• szép, újépítésű környezet
Buszmegálló 400 méter
Átadás: 2026 május-június
• nettó 108 m2
• amerikai konyhás nappali + 4 tágas hálószoba
• fűtése: 10 kw-os, monoblokkos hőszivattyú, padlófűtés az egész házban
• törölközőszárítós radiátor a fürdőszobában
• beépített tartályos wc
• választható burkolatok (hideg-meleg: 6.500,- Ft / m2 segédanyagokkal együtt)
• riasztó rendszer alapszerelés, kábelezés
• kapcsolók, konnektorok 45 db, ezen felül 14.500,- Ft/db
• műanyag nyílászárók, műanyag ablakpárkányok
• 15 cm homlokzati szigetelés
• 30 cm födémszigetelés
• térkövezett kocsibeálló 40 m2 (4500ft/m2)
• szép, újépítésű környezet
Buszmegálló 400 méter
Átadás: 2026 május-június
Regisztrációs szám
U0049198
Az ingatlan adatai
Értékesités
eladó
Jogi státusz
új
Jelleg
ház
Építési mód
tégla
Méret
108,1 m²
Bruttó méret
130 m²
Telek méret
742 m²
Terasz / erkély mérete
21 m²
Fűtés
hőszivattyú
Belmagasság
265 cm
Tájolás
Dél-kelet
Állapot
Kiváló
Homlokzat állapota
Kiváló
Építés éve
2026
Fürdőszobák száma
2
Társaház kert
igen
Víz
Van
Villany
Van
Csatorna
Van
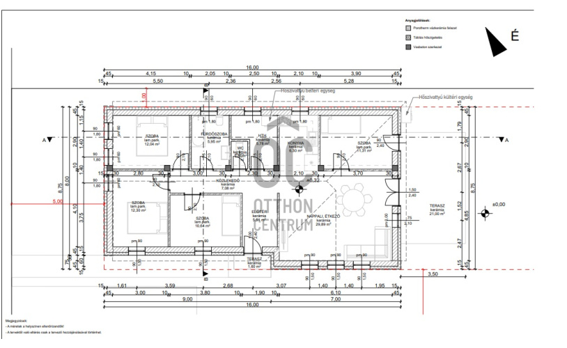
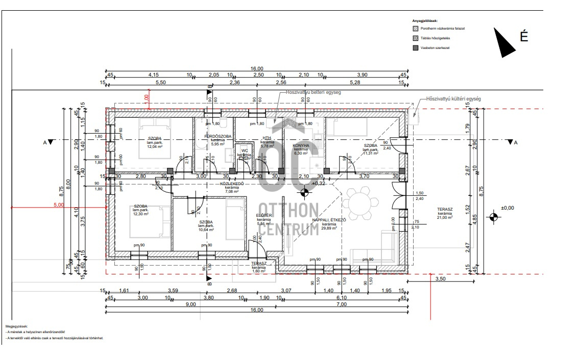
Helyiségek
nappali-konyha
36.19 m²
előszoba
5.51 m²
közlekedő
7.08 m²
hálószoba
11.31 m²
hálószoba
10.64 m²
hálószoba
12.3 m²
hálószoba
12.04 m²
fürdőszoba-wc
5.95 m²
wc
1.35 m²
háztartási helyiség
5.78 m²
terasz
21 m²
Joó Krisztina
Hitelszakértő