135 800 000 Ft
362 000 €
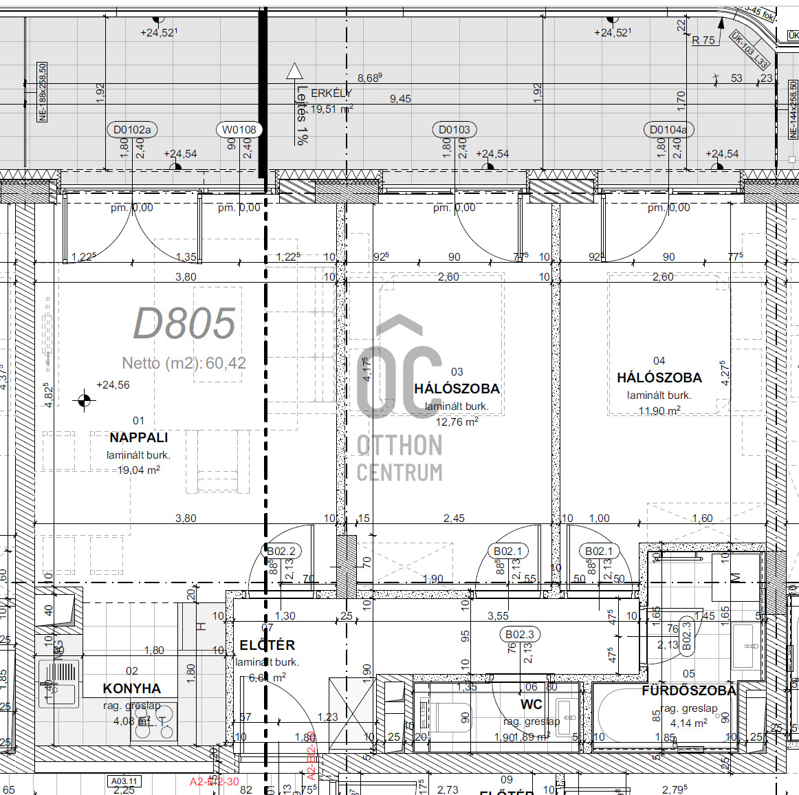
- 60m²
- 3 szoba
- 8. emelet
Fedezze fel új otthonát a Marina parton: magas emeleti 3 szobás lakás a Duna Parton!
A terület rozsdaövezeti besorolása miatt kb 5Mft visszaigényelhető a teljes vételárból!
A Marina-parton 60 négyzetméteres, három tágas szobával rendelkezik, amelyek ideálisak családok számára, vagy akár egy fiatal párnak is. A lakás kiváló állapotban van, modern kialakítása és funkcionális elrendezése minden igényt kielégít. A fürdőszoba egyedi tervezésű, amely a legújabb trendeknek megfelelően lett kialakítva. A lakás különlegessége a tágas, 19.51 négyzetméteres terasz, melyről városi panoráma tárul elénk.
A hőszivattyús mennyezet hűtés-fűtés révén az ingatlan egész évben kellemes hőmérsékletet biztosít, környezetbarát és alacsony költségen fentartható.
A Vizafogó - Marina part környéke nem csupán a modern lakóépületek és a rendezett környezet miatt vonzó, hanem a kiváló közlekedési lehetőségei miatt is. A közelben található busz- és metróállomás gyors és kényelmes hozzáférést biztosít Budapest belvárosához. A környék biztonságos és csendes, ideális választás családok, fiatal párok és befektetők számára egyaránt. A Duna part közelsége lehetővé teszi a vízparti sétákat, a sportolási lehetőségeket, valamint a számos étterem és kávézó felfedezését.
A közeli Duna Plaza bevásárlóközpont és üzletek minden szükséges szolgáltatást biztosítanak, így a mindennapi élet kényelmét maximálisan élvezheti. A környék zöldfelületei és parkjai pedig tökéletes helyszínt nyújtanak a pihenésre és a szabadidős tevékenységekre.
Várható átadás: 2026 nyár
Tágas parkolóhely elektromos töltő előkészítéssel további 9,5Mft-ért megvásárolandó.
A Marina-parton 60 négyzetméteres, három tágas szobával rendelkezik, amelyek ideálisak családok számára, vagy akár egy fiatal párnak is. A lakás kiváló állapotban van, modern kialakítása és funkcionális elrendezése minden igényt kielégít. A fürdőszoba egyedi tervezésű, amely a legújabb trendeknek megfelelően lett kialakítva. A lakás különlegessége a tágas, 19.51 négyzetméteres terasz, melyről városi panoráma tárul elénk.
A hőszivattyús mennyezet hűtés-fűtés révén az ingatlan egész évben kellemes hőmérsékletet biztosít, környezetbarát és alacsony költségen fentartható.
A Vizafogó - Marina part környéke nem csupán a modern lakóépületek és a rendezett környezet miatt vonzó, hanem a kiváló közlekedési lehetőségei miatt is. A közelben található busz- és metróállomás gyors és kényelmes hozzáférést biztosít Budapest belvárosához. A környék biztonságos és csendes, ideális választás családok, fiatal párok és befektetők számára egyaránt. A Duna part közelsége lehetővé teszi a vízparti sétákat, a sportolási lehetőségeket, valamint a számos étterem és kávézó felfedezését.
A közeli Duna Plaza bevásárlóközpont és üzletek minden szükséges szolgáltatást biztosítanak, így a mindennapi élet kényelmét maximálisan élvezheti. A környék zöldfelületei és parkjai pedig tökéletes helyszínt nyújtanak a pihenésre és a szabadidős tevékenységekre.
Várható átadás: 2026 nyár
Tágas parkolóhely elektromos töltő előkészítéssel további 9,5Mft-ért megvásárolandó.
Regisztrációs szám
U0049174
Az ingatlan adatai
Értékesités
eladó
Jogi státusz
új
Jelleg
lakás
Építési mód
tégla
Méret
60 m²
Bruttó méret
64 m²
Terasz / erkély mérete
19,5 m²
Fűtés
hőszivattyú
Belmagasság
270 cm
Tájolás
Kelet
Panoráma
városi panoráma
Lépcsőház típusa
zárt lépcsőház
Állapot
Kiváló
Homlokzat állapota
Kiváló
Lépcsőház állapota
Kiváló
Építés éve
2026
Fürdőszobák száma
1
Fekvés
utcai
Garázs
Külön vásárolható
Víz
Van
Villany
Van
Csatorna
Van
Lift
van
Helyiségek
nappali-konyha
23.1 m²
hálószoba
12.7 m²
hálószoba
11.9 m²
fürdőszoba
4.1 m²
Berkes-Jakus Kinga
Hitelszakértő